查看完整案例

收藏

下载
© Åke E:son Lindman
C.E:Son Lindman
架构师提供的文本描述。与阿尔玛,客户想要创建一个成员俱乐部和合作空间,目的是团结瑞典的创造性人群。它坐落在著名的贝克曼设计学院的前身,位于斯德哥尔摩经济和文化中心的中心。
Text description provided by the architects. With Alma the client wanted to create a members’ club and co-working space aiming to unite Sweden’s creative crowd. It is housed in the former premises of the celebrated Beckman’s design college at the heart of Stockholm’s economic and cultural center.
Tham & Videgård was asked to refurbish the entire building, dating from the early 1900s and originally built for a sewing machine factory consisting of two five level buildings around a covered atrium courtyard. Given the extensive construction work needed in combination with a short time frame, a challenge was to find a way to achieve the high quality architectural environment the clients wished for with relatively small means.
© Åke E:son Lindman
C.E:Son Lindman
作为回应,谭
As a response, Tham & Videgård proposed three elements that together form the base providing continuity throughout the entire space: a colored parquet pattern floor made of sawn ceramic tiles, a painted frame work structure to create partitions made out of standard wooden profiles, and a new circular pendant light to be used as a floating ceiling eliminating the need for a suspended ceiling.
Exploded Axonometric
爆炸轴测
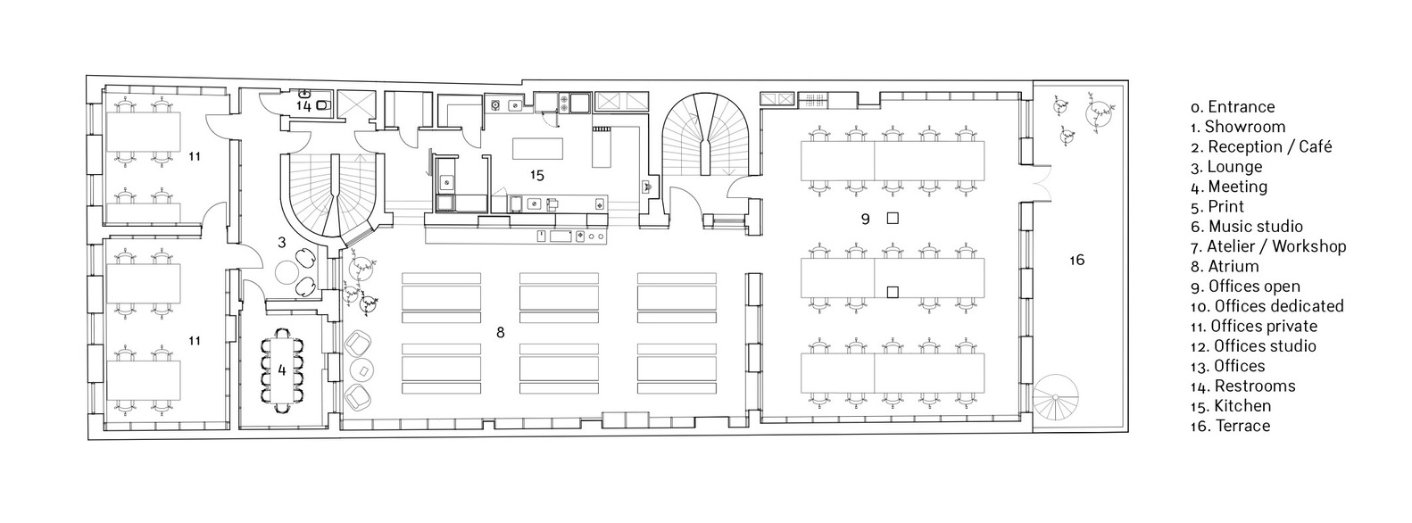
简报包括一系列不同的工作环境,从开放的社交休息室和公共办公桌,到更隐蔽的玻璃隔间和专用于一人或一组同事的私人办公室。除了办公空间外,五层高的场地还应举办活动、讲习班和展览以及租用会议室。正门既是设计店和咖啡厅,又是宽敞的中庭,既是由两位瑞典顶级厨师经营的会员餐厅,也是特别活动,包括策划的当代艺术节目。
The brief included a series of different working environments, from open social lounge spaces and communal work tables, to more secluded glass cubicles and private office rooms dedicated for one person or a team of co-workers. Alongside the office spaces the five-storey venue should also host events, workshops and exhibitions as well as conference rooms for hire. The main entrance doubles as a design shop and café and the spacious atrium functions both as a member’s restaurant run by two of Sweden’s best chefs, and for special events including a curated contemporary art program.
© Åke E:son Lindman
C.E:Son Lindman
除了整体的室内设计,Tham
© Åke E:son Lindman
C.E:Son Lindman
© Åke E:son Lindman
C.E:Son Lindman
其他陈设由阿尔马斯创意总监Fredrik Carlstr m(简朴)协调,来自Moa Ott、Sara S derberg、Christina Nordlind Hejdenberg、Rikard Palmquist och Kasper Friis Kjeldgaard、Erik J rkil以及若干当代瑞典和国际艺术家的定制设计和物件。
Additional furnishings were coordinated by Almas creative director Fredrik Carlström (Austere), with custom designs and objects by Moa Ott, Sara Söderberg, Christina Nordlind Hejdenberg, Rikard Palmquist och Kasper Friis Kjeldgaard, Erik Järkil as well as several contemporary Swedish and international artists.
© Åke E:son Lindman
C.E:Son Lindman
阿尔马项目获得瑞典建筑师协会2017年最佳室内设计金主席奖。
The Alma project won the Golden Chair Award for Best Interior of the Year 2017 by the Swedish Association of Architects.
Architects Tham & Videgård
Location Nybrogatan 8, 114 34 Stockholm, Sweden
Architects in Charge Bolle Tham and Martin Videgård
Area 2170.0 m2
Project Year 2017
Photographs Åke E:son Lindman
Category Refurbishment
Manufacturers Loading...
客服
消息
收藏
下载
最近

























