查看完整案例


收藏

下载
架构师提供的文本描述。马厩由一座两层高的砖砌建筑组成,最初是在1907年至1911年期间作为车库建造的。它在历史上与1905年建造的毗邻的豪宅联系在一起,在背景照片中可以看到它的后方。车厢坐落在一条小巷和一条主要的大街-佛罗里达大道-大楼和街道之间有一个庭院。
Text description provided by the architects. Coachhouse comprises a two-story brick building that was originally constructed as a garage between 1907 and 1911. It was historically associated with the adjacent mansion built in 1905, the rear of which is visible in the context photos. Coachhouse is situated on an alley and a major avenue -- Florida Avenue -- with a courtyard between the building and the street.
Before. Image © John Cole
之前。图像(约翰·科尔)
© John Cole
约翰·科尔
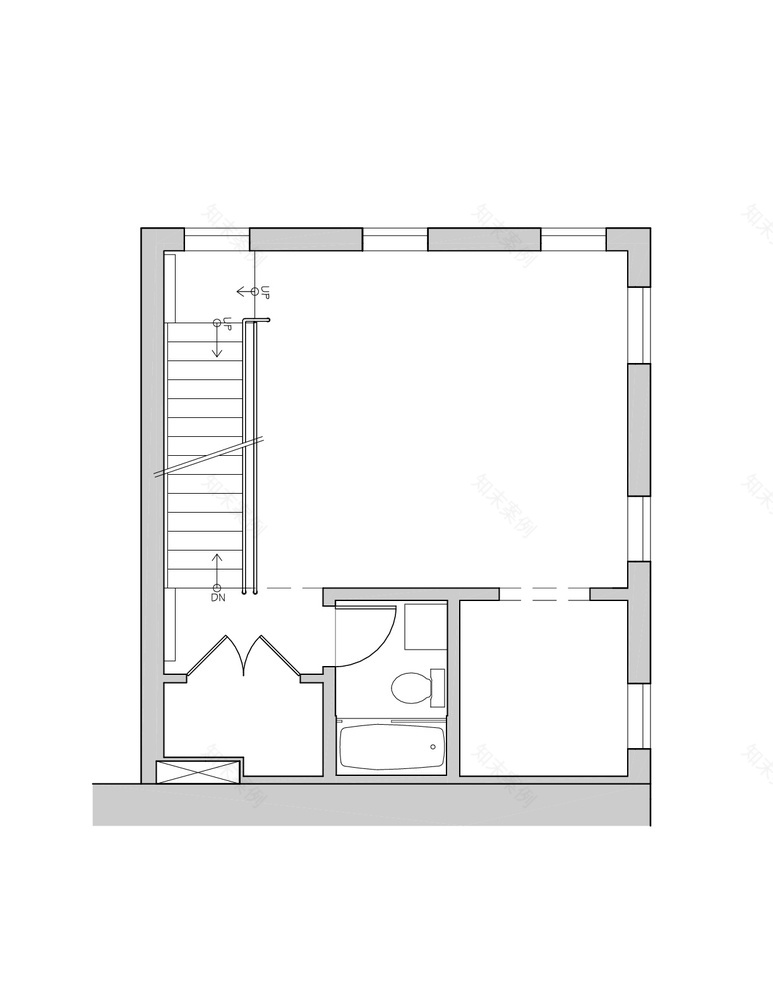
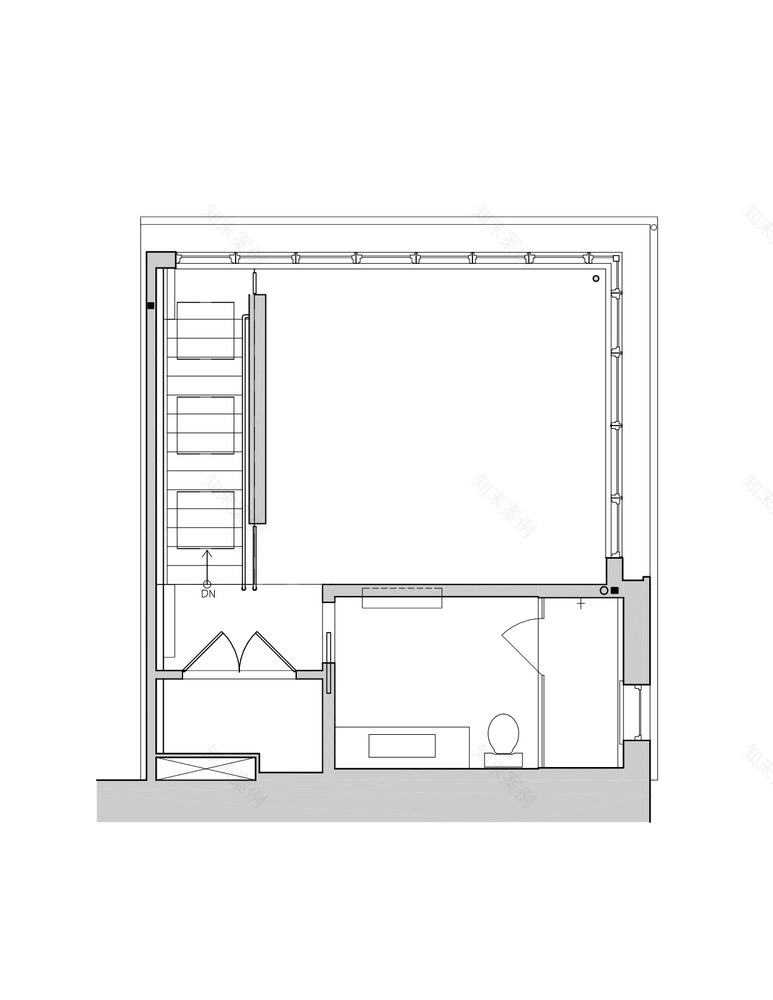
该建筑在计划中只测量了大约25‘x22’,是坚固的承重砌体和木框架结构。在1980年代指定它居住的历史街区之前,它被转换为住宅用途,并细分为属于自己的地段。
Measuring only approximately 25’ x 22’ in plan, the building is of robust load bearing masonry and wood frame construction. It was converted to residential use and subdivided to be on its own lot prior to designation of the historic district in which it resides in the 1980s.
© John Cole
约翰·科尔
这座建筑从地产线向后倾斜,院子里环绕着一堵6英尺高的砖墙;另一堵较低的砖墙将停车位与人行道隔开。在方向和距离上,车房都被完全从它所在的大道上移开了。此外,它没有后方庭院或窗户在后面的财产线,因此它是依赖于小巷和大道的光和景观。
The building is set back from the property line with its courtyard enclosed by a 6’ high brick wall; a second lower brick wall separated a parking space from the sidewalk. Coachhouse, in orientation and distance, is fully removed from the avenue on which it sits. Further, it has no rear yard nor windows on the rear property line, thus it is dependent on the alley and the avenue for light and view.
© John Cole
约翰·科尔
这座建筑的背景由面向22街和R街的大型联排别墅的小巷和后立面构成,高度在3到5层之间。在它现有的条件下,车场与它的环境相比显得相形见绌。
The building’s context is defined by the alley and rear elevations of large townhouses facing 22nd Street and R Street which range in height between three and five stories. In its existing condition, Coachhouse was dwarfed by its context.
我们的客户来找我们的目的是让马车成为他们的家。他们的节目还需要一层楼。通过分区和历史保护审查委员会的工作,我们获得了增加一层楼的许可。Coachhouse的设计目标包括以下内容。
Our client came to us with the goal of making Coachhouse their home. Their program required one more floor. Working through Zoning and the Historic Preservation Review Board, we gained permission to add one floor. Design goals for Coachhouse included the following.
© John Cole
约翰·科尔
1.遵循第二个人的原则,通过镜像邻居的固体质量和睡眠门廊,回忆起教练室对邻居的忠诚。2.加强邻里和大街上的小马车规模,把它放在以前很少或根本没有的地方。创建一个家庭,其角色与自己的几个身份相结合-一部分是马车,一部分是生的和暴露的;一部分是房主广泛而折中的物品收藏的存放库;一部分是现代睡眠门廊。通过创建一个滑雪楼梯区,沿着西面无窗的派对墙带来光明。用重新设计的庭院解决车房的前景,并驱车。拥抱一个可持续的议程,包括适应性再利用的建筑物,在庭院下的现场雨水管理,一个高效的建筑信封,所有的LED照明,和一个绿色的屋顶。
1. Follow the principle of the second man, recalling Coachhouse's allegiance to its neighbor by mirroring the neighbor’s configuration of solid mass and sleeping porch. 2. Enhance the diminutive scale of Coachhouse in the neighborhood and on the avenue, and give it presence where it had little to none before. 3. Create a home whose character marries its several identities — part coachhouse, raw and exposed; part repository for the homeowner’s extensive and eclectic object collections; and part modern sleeping porch. 4. Bring light in along the west windowless party wall through the creation of a skylit stair zone. 5. Address the foreground of Coachhouse with a redesigned courtyard, and drive. Embrace a sustainable agenda including the adaptive reuse of the building, onsite stormwater management under the courtyard, an efficient building envelope, all LED lighting, and a green roof.
客服
消息
收藏
下载
最近




































