查看完整案例


收藏

下载

翻译
Firm: Agis Mourelatos | Architects
Type: Educational › Elementary School Government + Health › Aging Facility Landscape + Planning › Public Park
STATUS: Concept
SIZE: 3000 sqft - 5000 sqft
BUDGET: $1M - 5M
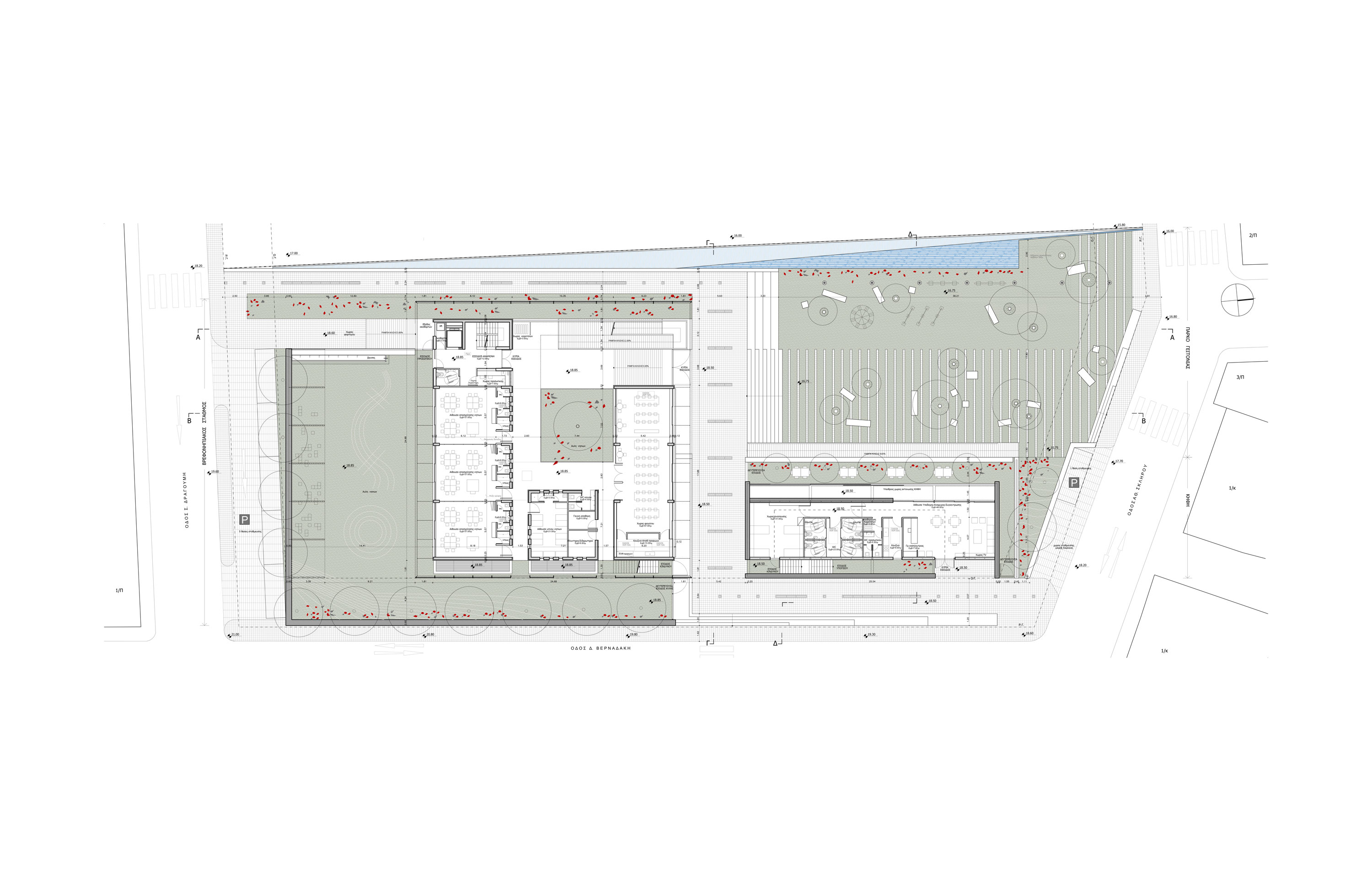
The project is an entry to a National Concept Design Competition for the design of care infrastructures and a neighborhood park in the Municipality of Chania, Crete, Greece. It takes place in Amperia district, a small neighborhood, which is characterized by a particularly irregular street plan and a strong micro-scale architecture. In the city block where the old hospital of Chania was previously located, a Health Center of urban style has already been built and in the remaining space, a Nursery School, an Elderly Care Center and a Park will be soon constructed.
Our aim is to create an exemplary public space characterized by simplicity in construction, dominating elements of nature and energy autonomy. We also aim to restore the spatial memory of the public space and to highlight the local elements in order to create a new unique experience for the residents and engage them to experience environmental education.
Finally, each building’s façade illustrates the age of the people it relates to, and together they bring the old world and the new world together as one.
TEAM:
Agis Mourelatos (principal architect)
Dionisios Koumouras (structural engineer)
Evangellos Kouris (building technology)
Mourelatos Filippopoulou Architects (consultants)
客服
消息
收藏
下载
最近





















