查看完整案例


收藏

下载
© Studio Bauhaus / Kenjiro Yoshimi
C.Bauhaus/Kenjiro Yoshimi工作室
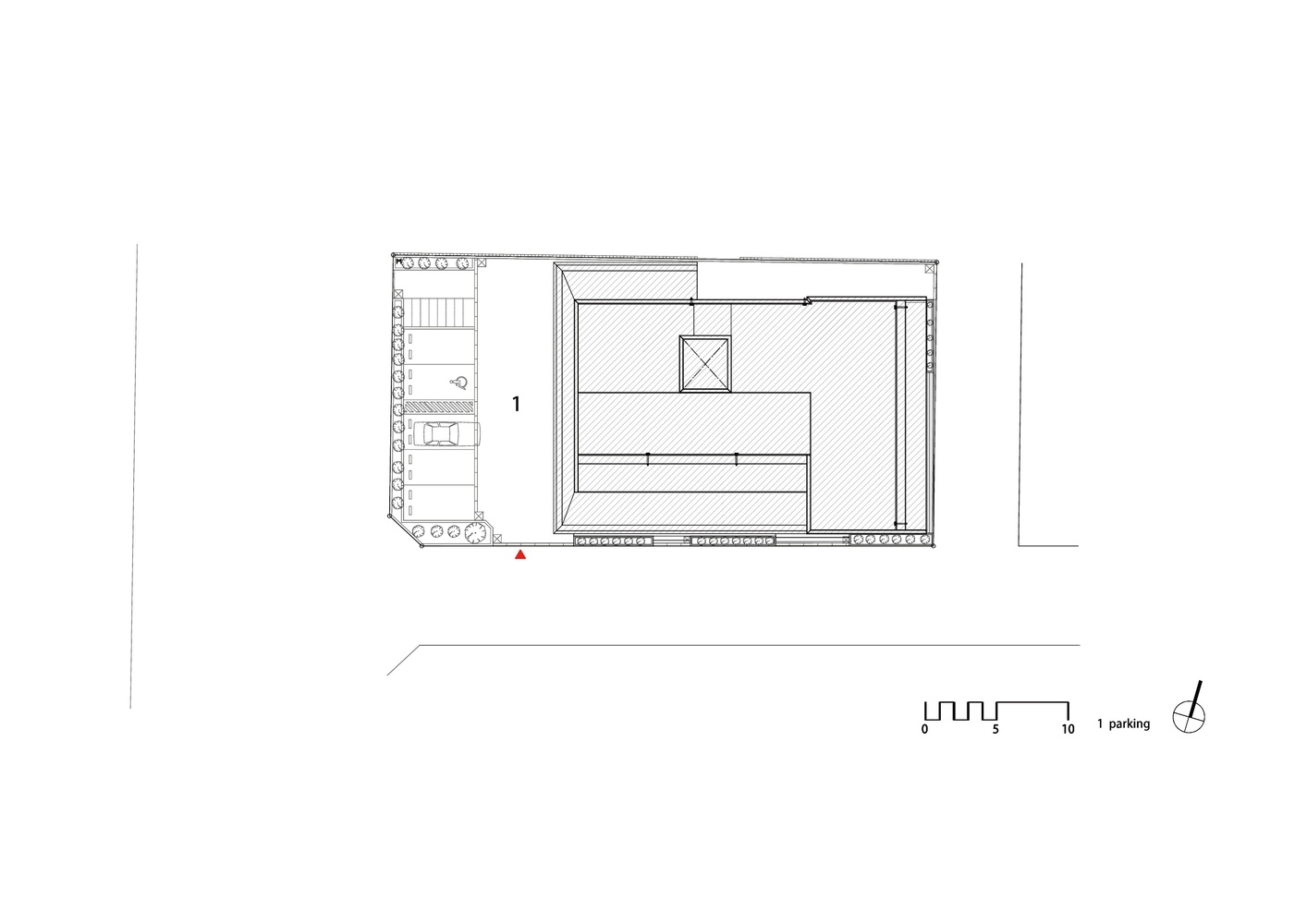
架构师提供的文本描述。它是位于Sagamihara市的B型工作支持设施和集体之家的复杂设施。在过去,这里附近有一所工业技术学校,那里有许多技术人员已经毕业,还有许多“中小企业(中小型企业)示范工厂”发展了制造业。作为制造业蓬勃发展的地区的一个制造设施,设计理念是“可见的、可展示的”,以便创造一个残疾人可以自豪地工作的环境。没有参与福利机构的人通常不知道残疾人的设施是如何的,因为这些设施是看不见的,不为人所知,这导致了错误的偏见,与当地社区的沟通减少了。这是一个需要解决的问题。
Text description provided by the architects. It is a complex facility of Type B Work Support Facility and Group Home located in Sagamihara city. In the past, there was an industrial technology high school near this site, where many technicians had been graduated, and there are many "model factories of SME (Small and Medium-sized Enterprises)" that has developed manufacturing. As a manufacture facility built in this area where manufacture flourished, the design concept is "Visible, Showable" so as to create an environment where people with any disability can work having pride. People who are not engaged in welfare facility generally don’t know how the facilities for the disabled are, because they are not visible, unknown, which leads to wrong prejudice, the less communication with its local community. It is a problem to solve.
© Studio Bauhaus / Kenjiro Yoshimi
C.Bauhaus/Kenjiro Yoshimi工作室
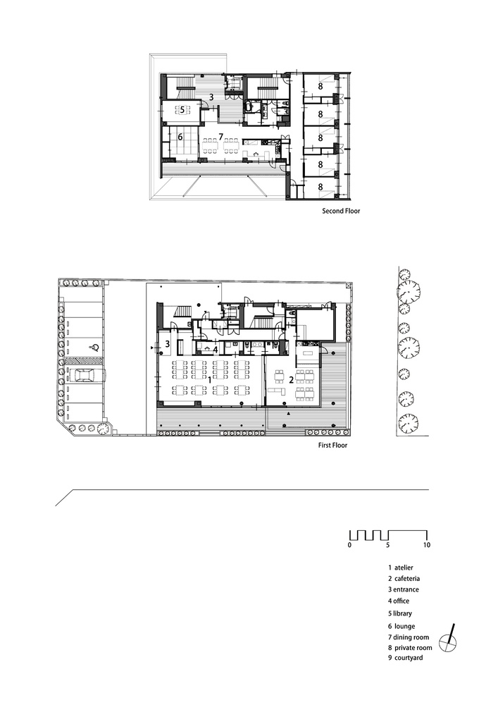
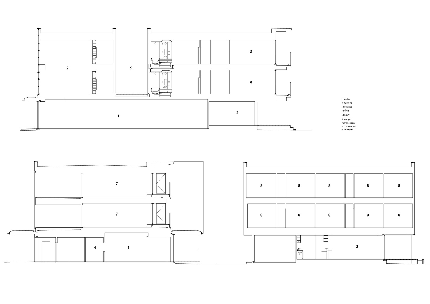
为了解决这个问题,重要的是要看到和展示,自助餐厅是开放的公园旁边的地点和工作室是开放的,可以从外面看到。它的广泛开放和良好的知名度给了邻居们思考福利和激励用户的机会,使他们对外部社会和工作产生了兴趣。我们希望这是用户独立的第一步。
In order to solve this problem, the important thing is to [see and show], the cafeteria is open to the park next to the site and the atelier is open enough to be able to be seen from outside. The widely opening and its good visibility give neighbors chances to think about welfare and motivate users, which makes them to get to have interest in external society and working. We hope it’s the first step for users’ independence.
© Studio Bauhaus / Kenjiro Yoshimi
C.Bauhaus/Kenjiro Yoshimi工作室
© Studio Bauhaus / Kenjiro Yoshimi
C.Bauhaus/Kenjiro Yoshimi工作室
在以前的设施中,二楼和三楼的集体之家与当地社区在乳品生活中没有任何关系,这曾经是一个问题,导致他们撤离。通过把它放在公园的东边,并接触当地的活动,他们将增加外出的意愿。
It used to be a problem in the former facility that the place of the group home on the 2nd and 3rd floor has no connection with the local community in dairy life, which has caused them withdraw. By placing it towards the park in the east side and touching the local activities there, they would increase willingness to go outside.
© Studio Bauhaus / Kenjiro Yoshimi
C.Bauhaus/Kenjiro Yoshimi工作室
Architects HIBINOSEKKEI
Location Sagamihara, Kanagawa Prefecture, Japan
Project Year 2017
Photographs Studio Bauhaus / Kenjiro Yoshimi
Category Community
Manufacturers Loading...
客服
消息
收藏
下载
最近




























