查看完整案例


收藏

下载

翻译
“Feel nature, grow sensitivity”
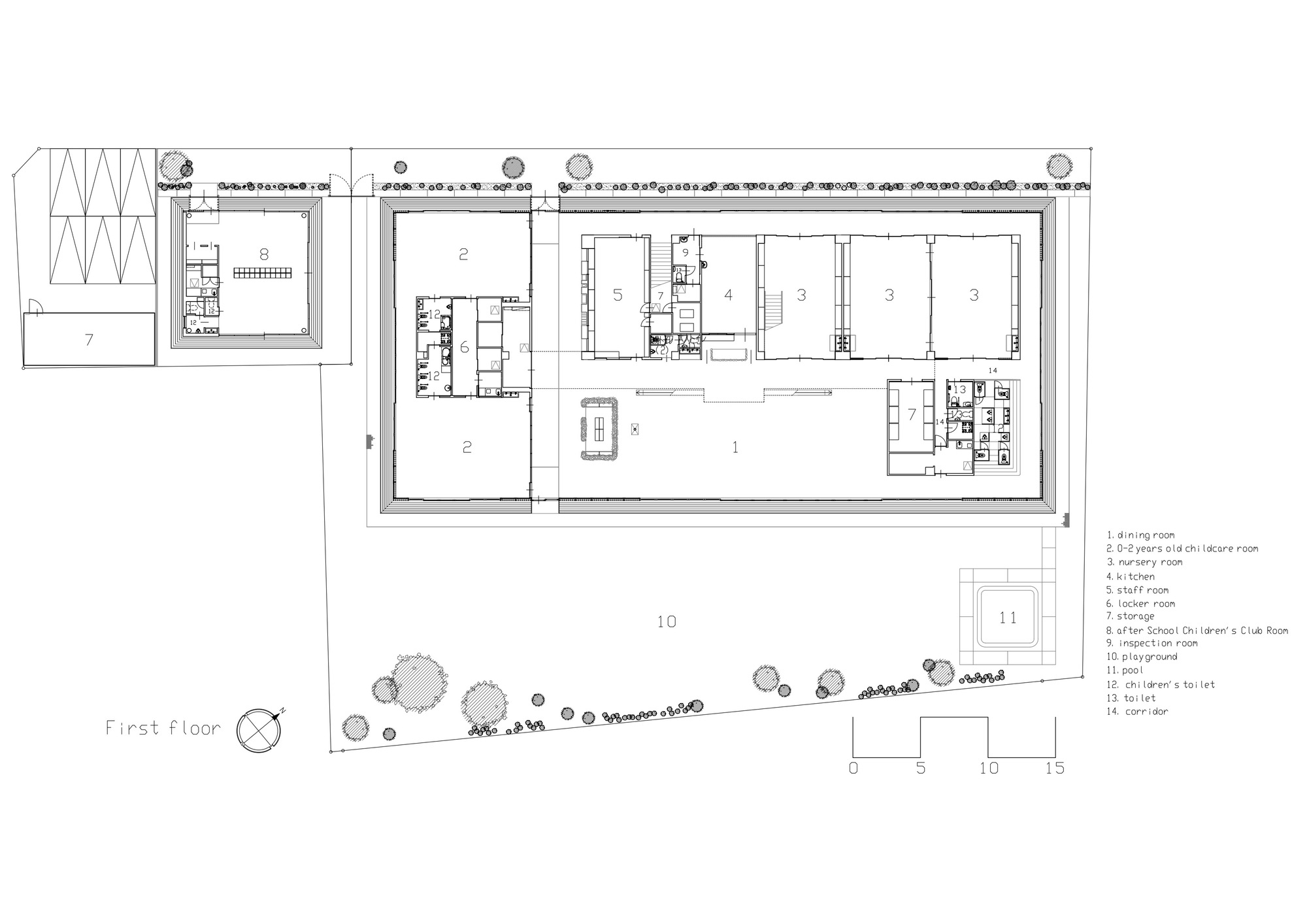
This is a nursery project in Yonago, Tottori, Japan. This site is surrounded by the environment rich in nature, sea as well as mountain. However, the environment of the former nursery is unvarying and not sensuous, same as general. Children couldn’t feel nature in spite of living with rich nature. Hence, we put it on the design concept, “Feel nature, grow sensitivity”. For children to feel nature in daily life, we focused on materials. Each material is meaningful and are chosen for children, which can be seen in the following 3 approaches. The possibilities of materials are discovered here.
1. Sensuous Materials for children’s development
First, to make children feel more nature, we use many natural materials. But it’s not only for this reason. The sensible stimulus taken by touching natural materials by hand and feet, stimulate their brain and it will have a good influence on their development. we also aimed to appeal to children’s sensitivity and development. Each wooden floor is different in tree species, shapes, layouting and looking, of course touching by foot. Additionally, in floor signs we use 4 kinds of metals. Each material has each sense of touching. Hence children can touch and feel many kinds of natural materials, their sensitivity will be grown, and also their imagination and brain development as well. Moreover, even toilet space could be a place to play for children. The partition of each toilet is made of stainless steel, whose looking is mirror. This design idea is come from the traditional pottery in this area, Kugogama.
2. Local Materials for Learning Local
Second, materials can give children chances to learn their local. The mud of the wall at the entrance and the rocks in gabion surrounding the building are partly from local. The wood used for handrails is called Chizu Cedar which is also from the local. In addtion, the class sign is made of Yumihama Gasuri, the traditional fabric here. Each of class name is named for the unique flowers which are bloomed in Mt. Daisen near this site. As children get older, the flowers of their class name are bloomed at the higher point in the mountain. With these flowers as motifs, the class signs are designed. Thus, children can get many chances to know about the local in their daily life with many natural materials.
3. Reuse Materials from Old Building
Third, to tell the history of this nursery, we reused some materials from old buildings. Rocks in the gabion are some from the local, and the others are from concrete wastes at the demolition of the former nursery. And the after-school day care center is built next to the nursery, whose floor, wall and ceiling are made of floor materials used in the old nursery. These materials have a warmth and make people recall the old scenery. What is more, for children it will be a chance to learn how we take good care of things.
客服
消息
收藏
下载
最近











































