查看完整案例


收藏

下载
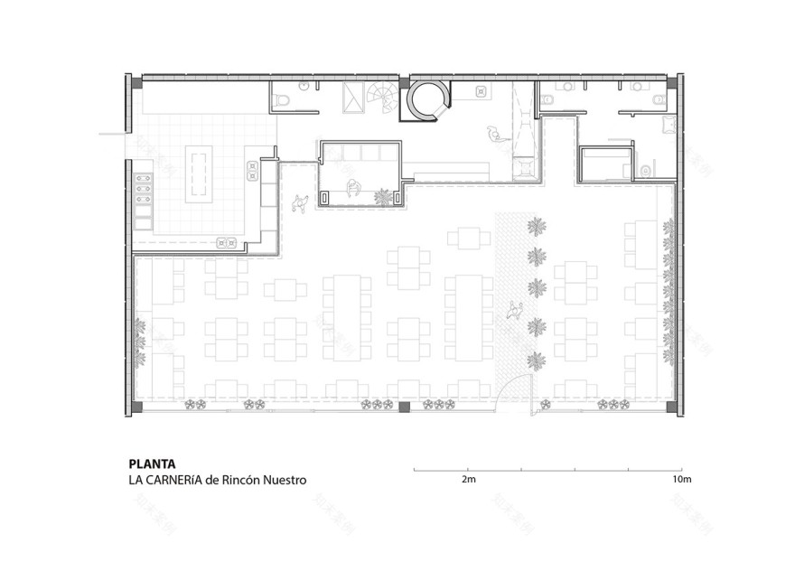
项目团队发送的描述。该项目的委托来自一位非常热情的客户,他在该领域拥有丰富的经验,并为他的工作做出了很多奉献,寻找能够反映出他最佳版本的空间。在乐观的合作伙伴的陪伴下,并希望制作这个项目,这个项目的各个方面都具有个性和品质。从所有这些推动力中,需要找到印记精华并合成它的印章诞生了。一切都把我们带到了火上。我们发现烹饪的精神,食物的变化,烧烤的灵魂,眼睛的吸引力,家庭的温暖,朋友的激情以及赋予当地建筑改造特色的品牌标准,在温暖和分离的空间,区别将邀请您留下,享受和庆祝。
用火作为一个伟大的主角,一个设计方案,从而表明它的工作:火盆和烧烤在程序的心脏,并查看所有的裸体和诚实的玻璃后面,成为从正门法郎重点,捕捉大厅的外观。其余的活动以简单的方式安排,并强调功能性。假想线将服务区域与服务区域分开。他们是由事故在这架飞机,其中交换发生连接:从厨房可用的地窖中烧烤,盒间隙饮料盒,vajillero地区一个大型酒吧和孵化服务食客。链接点邀请您靠近,查看详细说明过程,为什么不,与明星肉鸡,厨师及其所有者建立对话。
每个人都在寻求实现,以满足他们的需求。忠实材料的选择的主角,具有下包罗万象其最大的发展:矩形截面的铁管的涂层,具有随机终止范围是从黑色管在其原始版本,氧化和更精致的饰面,铜或金色清漆。一个简单的手势,但同时由于其规模而强加。其余的,选择了高贵而简单的材料:砖,深灰色微水泥,玻璃和铁。绿色似乎悬挂在天花板和侧壁以及窗户的线条中,以在调色板中赋予生命和对比。加强了家居的理念,帆布面料悬挂在双层高度,两侧有扶手椅和国内规模的靠垫。
建筑和功能提案附带的家具选择具有相同的前提:简单和质量。本地作者的产品,“2016年阿根廷优秀设计标签”,展示在结合了黑铁和天堂木材的桌子和椅子上。对于环境,寻求温暖的照明,集中一些区域和元素。最终的结果是回应了一个需要时钟功能的建筑派对,但这一点必须让客人的目光无法察觉。他们应该只有他们的感官才能享受到他们和他们的主人所拥有的空间所带来的愉悦和舒适。
客服
消息
收藏
下载
最近























