查看完整案例


收藏

下载
项目坐落于京南的一处产业园内,该地原属于城市更新项目的一部分,单层面积1600平米,挑高5.5米,为未来空间的延展提供了更多的可能性。业主东方启明星,是国内青少年篮球教育的龙头品牌,观町本次打造的便是其国内集团的公司总部。
东方启明星通过10年的积淀,提炼出“至善,奋进”的价值观。如何借助空间设计传达公司的价值观和理念?如何将课程培训及课程研发的球场区与办公区有机的结合?如何让大家在空间中塑造积极的工作氛围和创新的工作环境?这些都是一直萦绕在我们脑海中的疑问。
“The Force原力是所有生物创造的一个能量场,包围并渗透着我们,有着凝聚整个星系的能量。” — Obi-wan Kenobi《星球大战》
星球大战原力的概念与东方启明星的价值观不谋而合,以此为灵感,我们希望为所有启明星人打造一个具有正向能量场的“启明星球”,作为他们的共生家园。
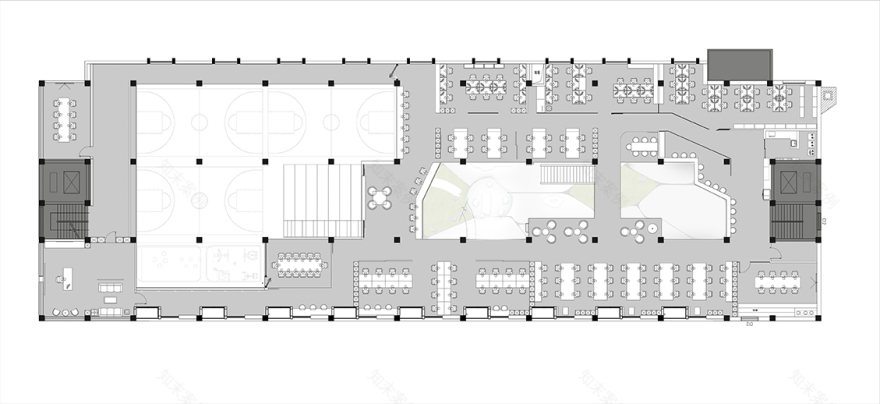
整体空间分为代表“奋进”的异星空间,和代表”至善“的启明星球绿洲两部分。我们在空间中重新架构了钢结构,将使用面积增加至2600平米,钢结构形似战舰骨架,将异星空间和星球绿洲进行串联。
“欢迎登陆启明星球。”将电梯厅打造成时空隧道,让来访者穿越平行时空登陆启明星球。
启明星球绿洲是为每一个启明星人打造的精神家园。在这里,创意得以汇聚,精神得以皈依。工作不止于工作,更是自我价值实现之地,共同族群的奋进之地。进入办公空间,观町保留了中庭区5.5米的挑高,还增加了大量的绿植。休闲区的设计具有灵活性,为团队小型会谈、头脑风暴等提供了多场景的可能。除了楼梯通行,还增加了滑梯和消防杆的趣味动线,增加了上下层空间的联动性,将这块核心的生态花园打造成启明星人的共生汇聚之地。
异星空间实为东方启明星的球场区及体适能区,业主方希望将篮球场与办公空间有机结合,分时分段进行课程培训及课程研发所用。除上述功能外,该区域也是大型会议及活动的场地,球场设计了多种灯光模式,满足不同场景下的需求。
项目名称:东方启明星办公室
设计方:观町创新研究所
项目设计 完成年份:2019.1~2019.7
主创及设计团队:石英喆、宋鸿、徐冉明、孙琳琳、张也
项目地址:北京市东城区光明西街1号4层
建筑面积:1600平米
办公室 现代 简约 自然
客服
消息
收藏
下载
最近


































