查看完整案例


收藏

下载
从0到1/商业策略咨询/品牌设计/空间设计这儿是当代中式精酿厂牌大酋的体验店是关于「中国精酿」空间体验的全新尝试《礼》有「大酋,掌酒官也」对啤酒的追本溯源和终极想象,是大酋创办的初衷与主张。
01
品牌营造
大酋作为新晋品牌,旨在向外界传达一个具有匠人精神,有幽默趣味的中国精酿品牌。能够在视觉发展过程中起到突出差异化、彰显独特品牌文化态度作用。
酋为「酉」上添「丷」,仿佛自由灵感也如酒水般溢出酒器。
图形层面我们从传统文化中寻找以神兽为文化母体的故事指向,国人对于神话故事相对熟悉,神明或神兽多为幸福、健康的寓意,可以赋予人们非凡的力量故事有趣,有代入感,且创作空间大
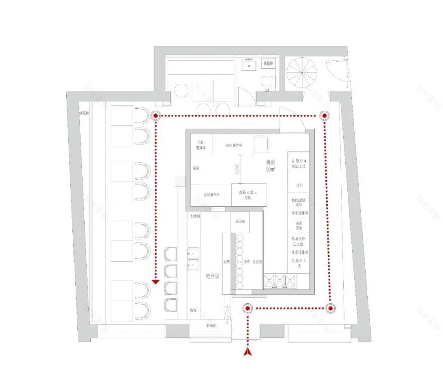
空间营造
回形动线
云雷纹是青铜器、陶瓷器上一种原始纹饰,图案呈圆弧形卷曲或方折的回旋线条,以连续的“回”字形线条所构成。
平面图
我们在小空间通过导线长度、空间变化幅度、经历的时间、体验速度来放大体验感受量。增强人在空间中的独特体验。
先秦风格,即是大酋厂牌体验空间的美学基调。
先秦建筑的艺术风格,是实践理性精神。平面整体、严格对称的土木建筑体制,蕴涵了入世的理智的因素。
青铜之风,肇始于禹,越千年不衰
先秦是意识形态领域最为活跃的开拓创造时期。先秦美学是中国古代美学思想的滥觞阶段,人文思潮与理性精神构筑出中国古典美学的框架。
而大酋的啤酒体验区处于中心殿堂位,采用走廊把各区域连接起来,即是沿袭了先秦建筑时间维度的观赏序列。
大酋酒肆选择青铜为空间灵魂元素,是融上古中国纯粹精神于一室。
我们在营造大酋酒肆的过程中,是尽力克制的,在隐秘中存有张力。
老子的美学观念,大音希声,大象无形,是诸子百家中大酋所最推崇。
这是宇宙之道的高度告知世人,车、器、室正因为有了虚空,才能去欣赏更本质的美。
大酋的第一家酒肆开设在渐成势态的京城东四胡同生活区,就是觉得大酋与老城有天然契合的日日如新。
这里饮酒纵歌,食香四溢,肆意欢脱。既有街市烟火,又迸发精致华丽。
我们更希望能用有「大酋」的美学打动新一代群体,用可口养眼的方式感受理解中国艺术。
中国酒的
新时代饮用场景
,是大酋孜孜不倦尝试的方向。
愿你在大酋酒肆 食得欢喜
项目名称:大酋酒肆
设计方:观町创新研究所
项目设计完成年份:2021.5
021.9
设计总监石英喆空间主创:贾小亮空间设计师:曲一恒品牌设计师高铭项目地址北京市东城区美术馆后街建筑面积:120平米摄影袁启峰、曲一恒
客服
消息
收藏
下载
最近













































