查看完整案例


收藏

下载
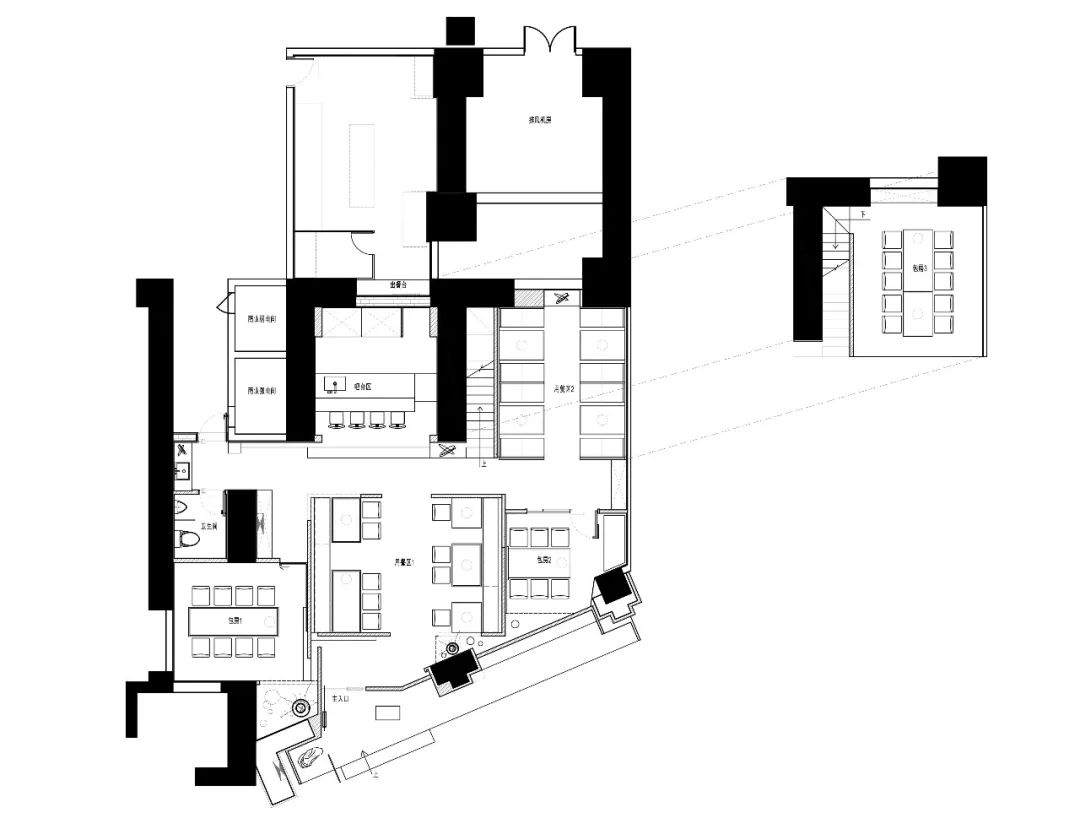
在外立面上我们用凹凸的立方体代替传统的大出挑屋檐,去形成几何化的硬朗外观。并在空间中不断对这种带凹凸的立方体进行反复地试验。中央大厅在方案阶段,就已经可以预想到这里将成为我们表现主题的中心。大厅中指向强烈的垂直空间和水平空间正交形成了空间的复合构成。人们随着流线穿越整个中央大厅,来自各个方向的视线在此交叉,使人与空间产生了积极的关联。景观也与客人的行动对应,根据流线,按时间顺序一步步展开变化多端的景致。平面是向内的,整个空间以中央大厅的界墙来分隔,入口及包间围绕着大厅,并利用空间的高低错落给人带来抑扬顿挫的空间体验。
项目名称:Lodestone吸铁石 日式烧肉餐厅
项目地址:深圳市后海香悦里
完工时间:2019.8
设计公司:埂上设计事务所
餐饮 现代 日式 高级黑
客服
消息
收藏
下载
最近




























