查看完整案例


收藏

下载
这是由Kuklica-Smerek设计的一座住宅,位于斯洛伐克Bratislava的中心位置,建筑原先为两间相邻的独立公寓,年轻的夫妇买下了这里后,将两间公寓的隔墙拆除,功能区全部重新调整,附赠的大露台,也被充分利用了起来。
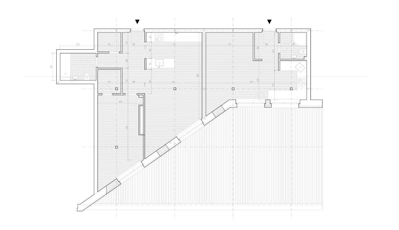
▲原先的两间公寓都十分狭小,居住起来不适感很强。
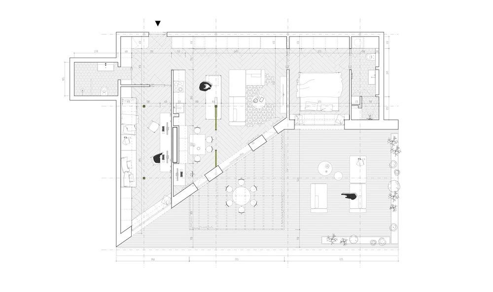
▲合并后的空间将功能区进行了彻底的调整,不规则的几何形加上超宽敞露台,让这个95平米的空间更加别致。
▲整个室内都被木质元素包围,因为设计师认为木料拥有非常强大的可塑性,不论是温暖、朴素、原始、时髦都可以信手拈来。
▲由于格局并不方正,所以设计师认为为了避免视线上的杂乱,应该多定制储物柜,所以自入口开始,整墙的柜体便延伸到空间的每一区域。
▲厨房共定制了两面储物墙,利用木色与黑色搭配,可以很好的平衡厚重与轻盈。
▲厨房的中岛吧台上有两根来自老建筑拆除时留下的金属支柱,设计师以全新的方式将它保留,并带来了独特的视觉效果。
▲看起十分平淡的吧台其实经过了许多精细的处理,例如圆滑的边角是为了防止碰撞,内部嵌入了酒柜、置物柜。
▲虽然都是统一的黑色调,设计师通过不同的方式进行了丰富处理,从材质的不同到纹理的变化。
▲虽然空间格局并不方正,但是由于设计师定制的柜体加上家具的合理摆放,整体看上去也十分宽敞舒适。
▲客厅摆放了灰色的模块式沙发,不仅坐起来十分舒适,并且非常灵活,屋主可以根据需求随时移动沙发。
▲厨房的顶端为通往露台的入口,多扇窗户也保证了光线可以充沛的洒向室内。
▲设计师沿着主卧的窗户定制了飘窗柜,增加室内的收纳空间,也方便屋主随手够取一些书籍进行阅读。
▲如今宽敞的洗浴室是曾经的洗浴室与厨房合并后的空间,足够的面积保证了使用的舒适性。
/Kuklica-Smerek
摄影/Lousy Auber
客服
消息
收藏
下载
最近





























