查看完整案例


收藏

下载

附件

翻译
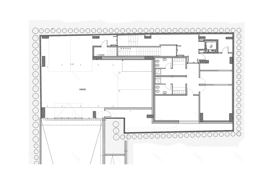
Clinica odontoiatrica di nuova edificazione con sala operatoria, sale consulenza, spazi comuni, corte interna. Il progetto, un nuovo edificio che accoglie una clinica odontoiatrica, è stato realizzato sulla strada principale di Sala Consilina, vicino a Salerno. Il corpo di fabbrica si articola attorno ad una corte affacciata alla strada: le aree di accoglienza e le principali sale di consulenza sono disposte al piano terra, gli studi medici e una sala riunioni per piccole conferenze si trovano al primo piano mentre il piano interrato ospita un piccolo garage e spazi di servizio. La sfida di questo progetto è stata l’integrazione tra il nuovo volume e il contesto esistente che vede la presenza di un autosalone e di una stazione di servizio.
La nuova facciata abbraccia tutto il fronte, autosalone compreso, ed è articolata secondo le diverse funzioni ospitate. Una parete in pietra su cui scorre una fontana verticale è il fondale dell’ingresso, in esterno, e degli spazi di distribuzione, in interno. Ampie vetrate cingono piano terra e piano primo laddove maggiore era la necessità di affaccio e osmosi con il contesto (ingresso e sala riunioni), mentre una parete a disegno in GRFC scherma ai piani terra e primo gli spazi che necessitano di maggiore privacy (sale consulenza e studi medici). Pietra locale, vetro e GRFC sono i materiali dell’esterno: longevi e integrati con il contesto. Legno, ancora pietra e vetro, e resina a colore quelli dell’interno, tali da rendere gli ambienti accoglienti, confortevoli, familiari.
客服
消息
收藏
下载
最近






















