查看完整案例


收藏

下载
“轻”生活
当代年轻人在达成自我实现自我超越的状态后更多追求的是精神层次的满足衣食无忧的他们舍弃许多物欲横流的羁绊,在轻生活的流行趋势下享受自由的生活方式。
01.
THE CUSTOMER DEMANDS
客户诉求
一家三口居住
屋主色彩接受度比较高
希望家里通透明亮、色彩鲜明
小孩上幼儿园,是位可爱小公主
希望有一个粉嫩的女儿房和自由的活动空间
02.
分析图
ANALYSIS DIAGRAM
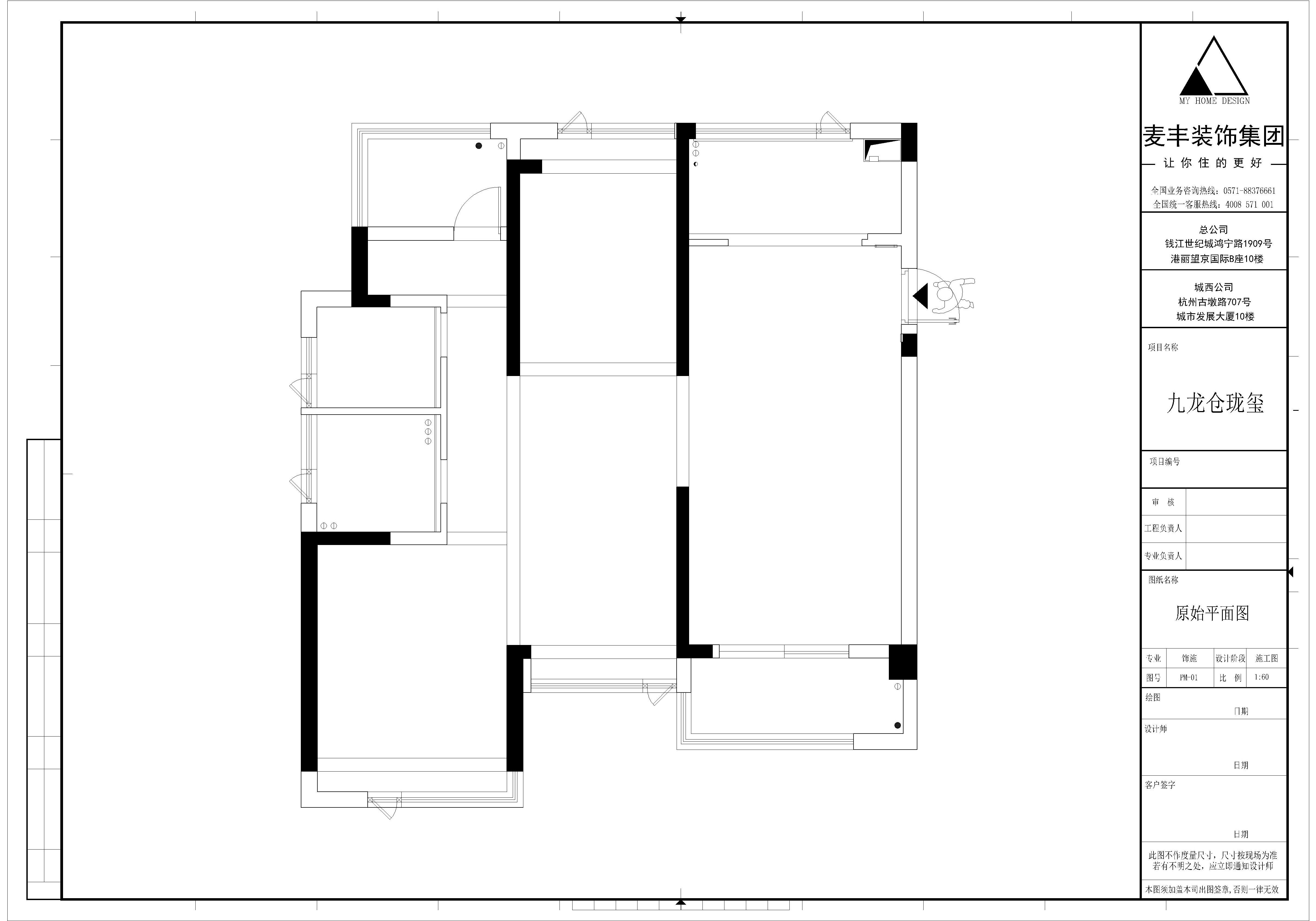
原始结构户型全明
南北通透
结构上没有不足的地方
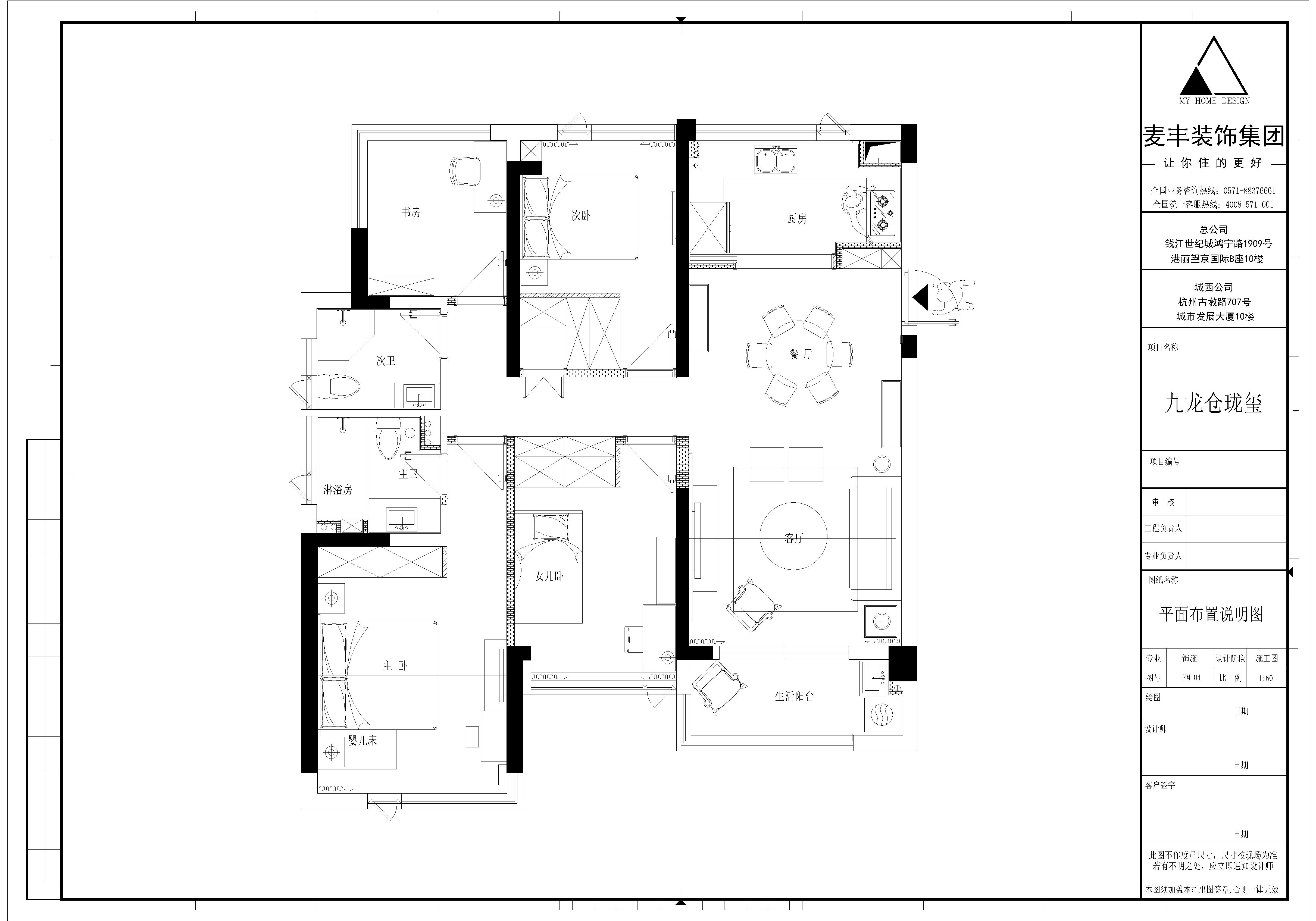
四室二厅的空间布局
次卧改造出一个对外的储藏间
北面书房以后会作为二胎的小房间
先暂时作为女儿的自由活动区
03.Living Room客厅
客厅删繁就简
创造生活美学与思想温度相互平衡的空间
无论是场景的塑造
软装陈设
还是细节的刻画
都在于传递优雅至纯的轻生活概念
奶白色皮质沙发让会客区域整体更纯净
加入了地毯和羽毛元素
营造出轻盈的视觉效果
让生活融入于居所
我们用简洁的设计语言
富质感的材料和至美的艺术家具
强调空间至纯至简的主题
“喜欢轻奢,但希望设计上不要太复杂”
基于业主的需求我们在硬装上清爽精练软装上强调风格与舒适性吊顶用金属框线描边上窄下宽的线条打造丰富的层次感大理石的天然质感和纹理打造通透洁白的“轻”空间
04. Dining Hall餐厅
折叠—伸展
入户顺延至客厅的区域设计成餐厅视觉上巧妙实现空间折叠
没有复杂的线条
清爽的配色与材质加强空间雕塑感
艺术挂画、造型简约时尚的桌椅家具
为用餐时光增添一份仪式感
05.Kitchen厨房
厨房打通了一扇超大窗户
隐形移门藏匿在隔墙中
不使用厨房的时候可以是敞开的空间
料理时可形成独立的封闭区域
06.Master Bedroom卧室
功能布局严谨、细节推敲考究
在为业主刻画雅致生活的过程中
不忘融入对现代理想家居生活的理性思考
“旧家具的环保再利用”为满足业主需求主卧我们利用旧家具根据整套欧式家具重新定义空间风格利用鱼骨拼和简洁的石膏线界定室内空间美学的平衡 07.
Children’s room
儿童房
家具的曲线拥有无限魅力
当其遇上多彩的动植物世界
更是充满浪漫童话感
些许粉色调的布艺装饰
让女孩儿安然进入甜美梦乡
08.Active region
活动区
装饰活动区的过道
用黑板增加和孩子的互动
留下每一刻幸福时光的印记
未来二宝的房间
秉承空间的可持续发展
将此处暂设为自由活动区
充足的采光打造温暖阳光房
09.Bathroom
卫生间
粉色被界定为少女的颜色,将其用在卫浴空间中也有不俗的效果。在实现功能的同时传递屋主的审美,HelloKitty 元素让次卫彰显更多的童趣。
屋主对浅色情有独钟
白色大理石纹砖+黑色防滑砖+金属门框
金属和石材的结合自然透露出轻奢感
10.Little Bing
案例信息丨
Case Information
项目地点:九龙仓珑玺
项目类型:住宅
项目性质:全包
项目面积:124㎡
项目风格:现代轻奢
设计施工:麦丰装饰
软装:东麦家居
主要用材:大理石,墙布,不锈钢,木饰面,石膏线,硬包
客服
消息
收藏
下载
最近
























