查看完整案例


收藏

下载
海洋之心
案例信息
项目地点:杭州·远洋心里
项目类型:住宅
项目性质:半包
项目面积:89㎡
项目风格:北欧复古混搭
设计+施工:浙江麦丰装饰设计工程有限公司
主要用材:乳胶漆、石膏线、木地板、胡桃木家
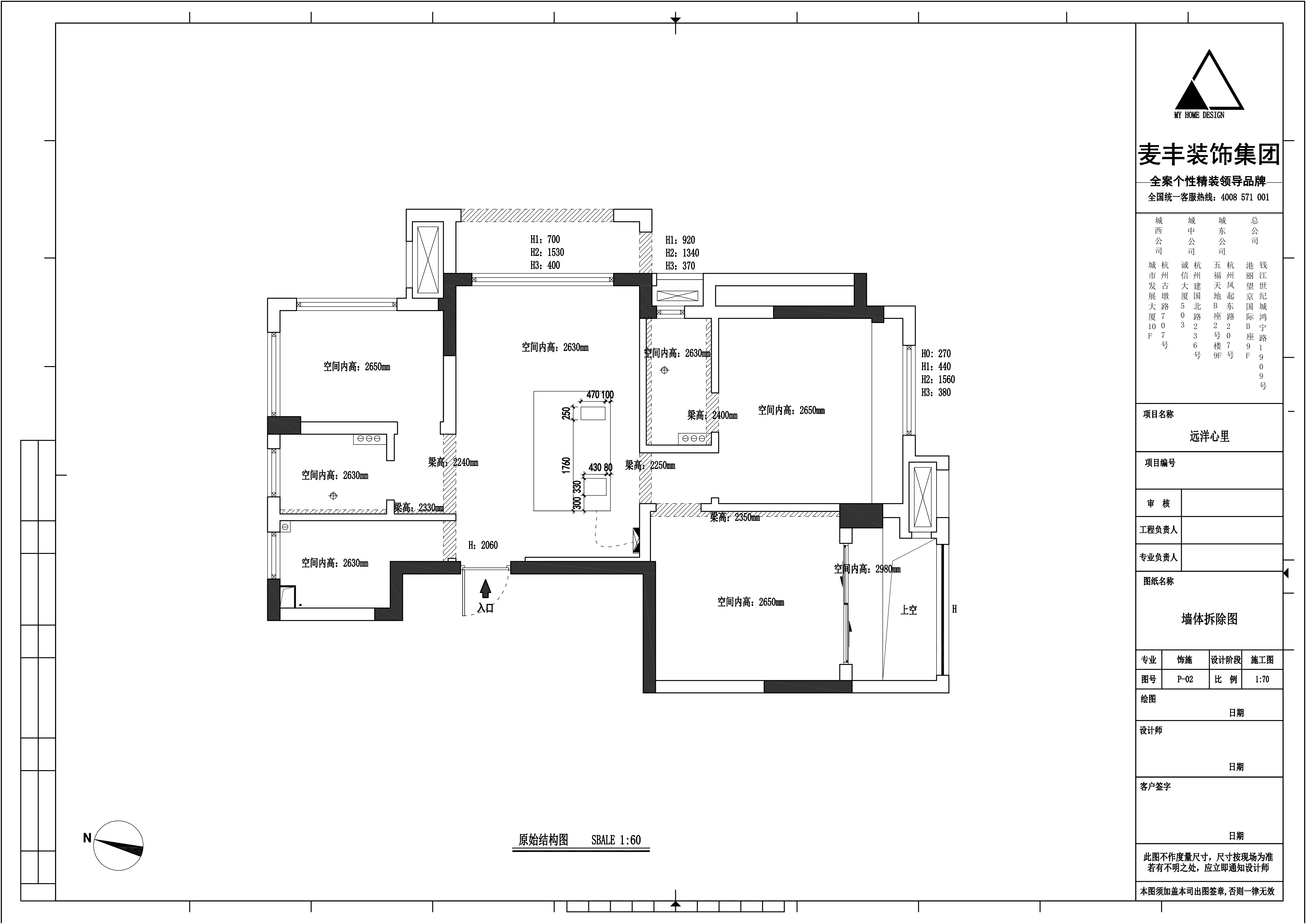
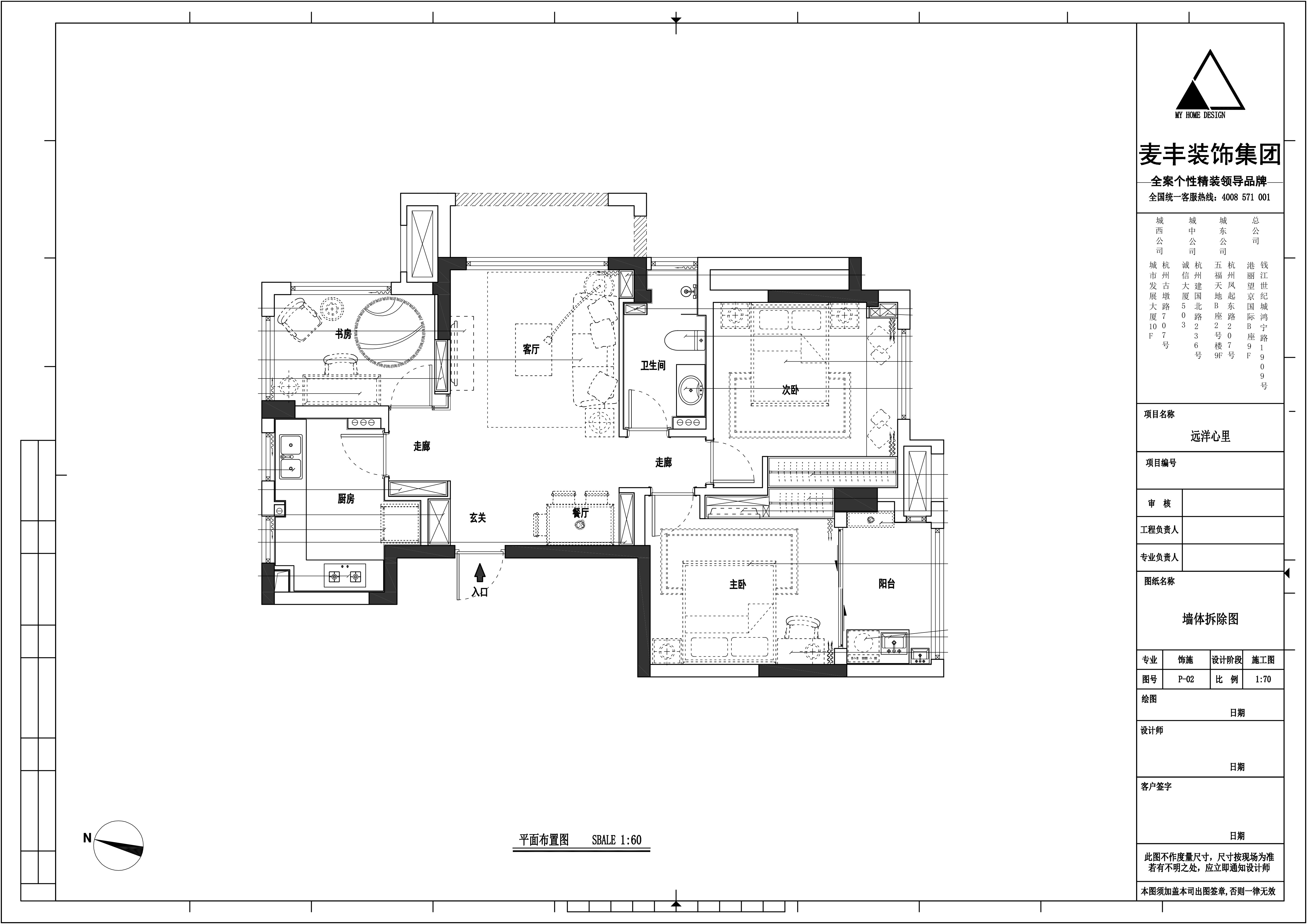
本案原户型厨房空间划分较不合理,公共空间面积过小,导致餐厅部位空间过于紧凑。设计师根据居住人口做出调整,将双卫改为单卫,扩大厨房使用面积,打通书房,并增加公共空间进深层次和采光效应。
设计方案(户型对比图)
▼客厅 Living room
整个公寓的采光比较好,设计师打破传统刻板僵硬的风格,以通透的空间和色彩丰富的装饰元素带来一个全新的居住环境。整个空间以白为主,地面大量使用浅色木地板,当中加入蓝灰色柔软的沙发,黄色的窗帘,点亮空间色彩。
▼餐厅 Dining room
客餐厅以开放式的布局处于同一空间内,利用独特木作加上金属质感的餐桌椅、旅行照片墙、金属置物架放入绿植,多样的质感增添艺术气息。
▼厨房 Kitchen
厨房墙面大面积使用白黑色哑光砖,香芋紫的柜体,让整个空间看上去干净整洁,极具北欧风情。
▼卧室 Master Bedroom
主卧色彩上以平和、古朴灰色系带给人温馨关怀的感觉,木质的清香深沉,在棉麻的柔软中,对比出一种宁静致远的闲适。柔和台灯营造静谧的休息氛围,又让人感觉温暖而不孤单。
▼次卧 Bedroom
纯净感是次卧给人的第一感觉,清爽的绿色系为基调,白色的家具,灰色系床品,组成了低调舒适的家。充分利用飘窗空间,在上面增设一排储物的抽屉,并且用隔板分隔出书架。打造功能齐全又美观的卧室。
▼书房 Study room
小书房,视野开阔,涵养生活,是爱看书的主人流连忘返的地方,让人沉静的墨绿色系,胡桃木元素的运用、造型简约的书桌书柜,让书房多了一份返璞归真的气质,主人心境更加豁达高远。
▼卫生间 Bathroom
清爽整洁成为卫生间的主基调,搭配白色的洁具,营造清新感。
客服
消息
收藏
下载
最近


















