查看完整案例


收藏

下载
你家房子里藏满了你的人生态度,认真生活的人最可爱!
世界太复杂,所以至少回到家的那一刻,家是舒服自在的,让我们可以脱下伪装,回到最初的模样。
案例信息
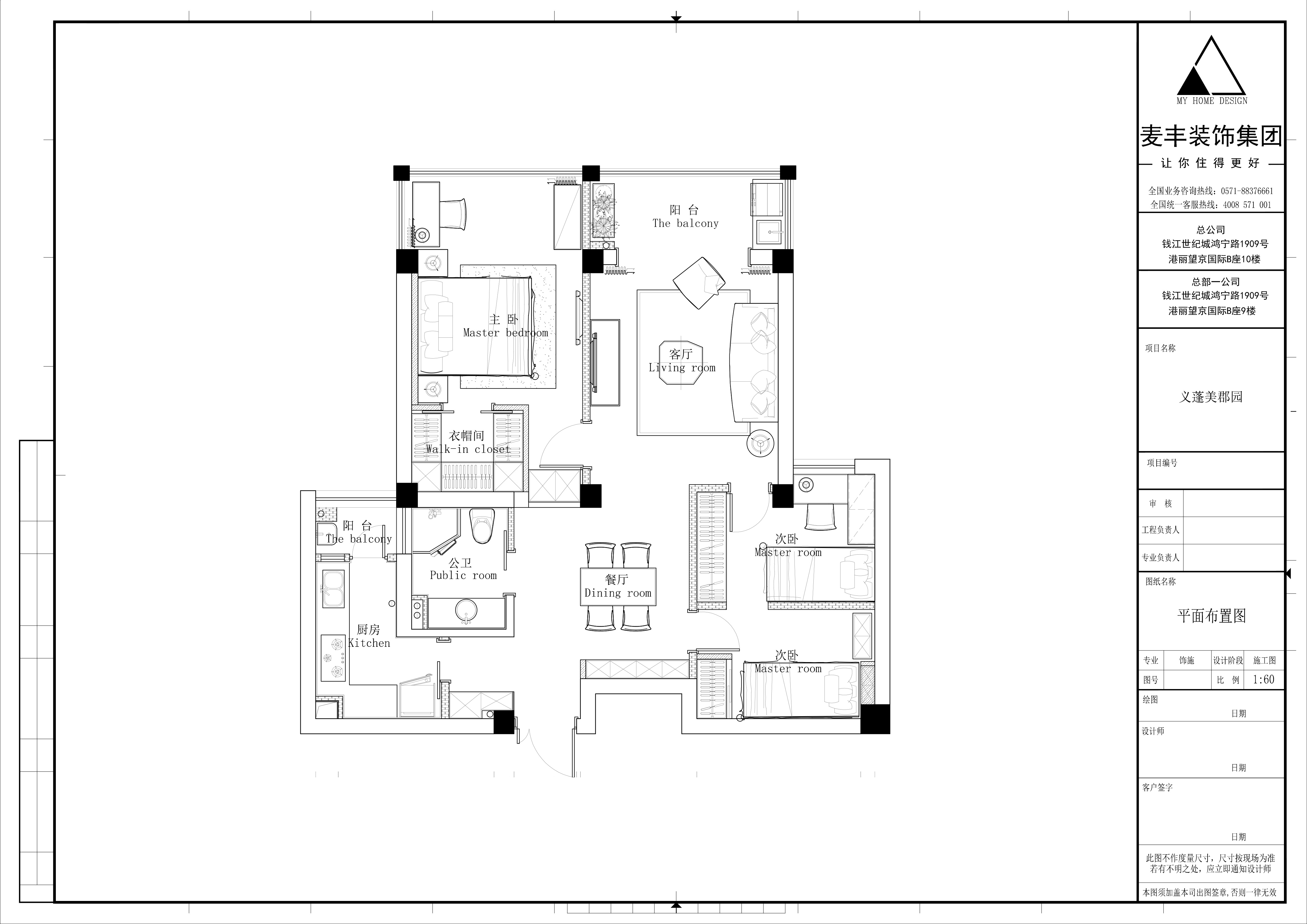
项目地点:杭州·义蓬美郡园
项目类型:住宅
项目性质:全包
项目面积:89㎡
项目风格:北欧
设计+施工:浙江麦丰装饰设计工程有限公司
软装:东麦家居
主要用材:地板,地砖,乳胶漆,大理石
摄影:林峰
客户需求
在业主看来,家应该是基于一套充满爱的房子,简洁、明亮、有质感;爸爸妈妈、哥哥妹妹在这里填充欢声笑语、幸福美好;等到哥哥妹妹长大成人闯荡世界的时候,这里将是他们的童年回忆,所以每一个物件都值得用心挑选。
设计方案
设计师整体优化室内流动线,使布局更合理;更改主卧进门方向,从而打造出一个衣帽间;考虑到家里有两个小朋友,设计师在次卧中间设置矮墙,分隔出两块独立的的房间,同时规避了一个房间通风不畅或光线不够的不足;选材和用色上巧用心思,使整个家里光线充盈,温馨如画。
设计方案(户型对比图)
▼玄关Hall
玄关是从户外到家中的缓冲点,是家的门面担当;
本案中,满足收纳的同时,简洁的漆色与暗藏小心思的花砖结合,营造了一个简约精致的玄关;别出心裁的户型方案装饰画悬挂于此,屋主对生活积极的态度一览无余。
▼客厅 Living room
将阳台包进客厅的好处除了为视觉增容之外,还能增强空间的通透性;材质上,皮质沙发与木质茶几、网红单椅的搭配清新时尚,渐变过渡的色调渲染着生活的精致与品质。
▼餐厅 Dining room
利用转角空间,打造出餐边柜,一柜、一桌、四椅,简单勾勒出一家人的用餐区;留白手法为丰富的生活常态埋下伏笔。
▼厨房 Kitchen
打通厨房外置区域,赠送空间包进厨房后呈”L”型,它也是最理想的“工作三角区”;充裕的空间完美满足收纳所需;橱柜高于地面,非常便于日常清洁。
▼卧室 Master Bedroom
更改进门方向,将阳台包进主卧,这样主卧的面积就足够大;所以在设计出一个衣帽间的同时,还能容纳一个衣柜的配置;软装上采用木色与绿色混搭,营造生机盎然的室内空间;没有繁冗的手笔,一切皆是恰到好处。
▼次卧 Bedroom
考虑到家中有哥哥和妹妹,设计师在次卧中间设置一堵半高墙,将空间性能划分;左边是哥哥的学习区域与休息空间;另一边空间则属于年纪尚小的妹妹;每一个小细节,都深藏父母对孩子的爱与期待。
▼卫生间 Bathroom
格子墙砖与方块地砖是小清新的标配;还有专门安放绿植的小架子,带来视觉上的舒适体验。
▼小景The scene
王小波说:“一个人只拥有此生此世是不够的,他还应该拥有诗意的世界。”诗意的生活不是矫揉造作,而是把庸常的生活分流出品质,将平凡的日子过的随性率真,不会太粗糙。
日子慢慢过,家具可以慢慢填充——业主说
家里常住4人,最初的想法是希望家里底妆清淡、硬装简洁;收纳功能强大;避免所有落灰的设计,不喜欢任何金属反光的材料,希望通过设计师之手打造出一个幸福感强的家庭居住空间。
最满意的地方是客厅,有充足的阳光、简单明了,浅灰色墙面搭一个深色皮质沙发,再配一点姜黄色,觉得很舒服;也庆幸选择了地板,庆幸最后时刻放弃让木工打一整面电视墙的柜子,等有需求的时候可以单独买那种复古的书柜,蜜糖色或者胡桃木色,日子慢慢过,家具也可以慢慢填充。
换位体会,使命感格外强——设计师说
记得有一天晚上收到业主介绍需求的PPT,在PPT的最尾页有一行大字让我感触很深,对我们而言可能一套房子意味着一程服务;但对于业主来说,他们心理期盼的房子、理想之屋是家庭未来可能居住十年甚至以上的地方;这样去换位体会,使命感就格外的强,我们必须全身心去对待。
客服
消息
收藏
下载
最近



















