查看完整案例


收藏

下载
颠覆
色彩,淡淡的就好,浅便是安稳;
生活,简单的就好,平淡才是真。
案例信息
项目名称:颠覆
项目地址:杭州·白鹭郡南
项目面积:180㎡
项目风格:北欧
项目户型:四室两厅
设计团队:麦丰装饰·城西全案设计六中心
施工单位:浙江麦丰装饰设计工程有限公司
主要用材:乳胶漆、成品饰面板、硅藻泥等
摄影师:林峰
本案业主钟爱北欧风格,希望回到家中能体验洁净、舒适的空间感受,设计师以贴近生活为出发点,在满足业主对空间功能性要求的基础之上,打造了一个干净、简洁、硬朗又富有节奏感的北欧之家。
户型的优缺点
户型较正,有个大庭院,适合打造休闲空间;另外,业主想把客餐厅厨房放在地下室,需要设计师解决光线问题。
客户需求
业主喜欢北欧风格,希望打造一个简洁、干净,舒适的居住空间;另外希望增加储物空间解决收纳问题。
设计方案
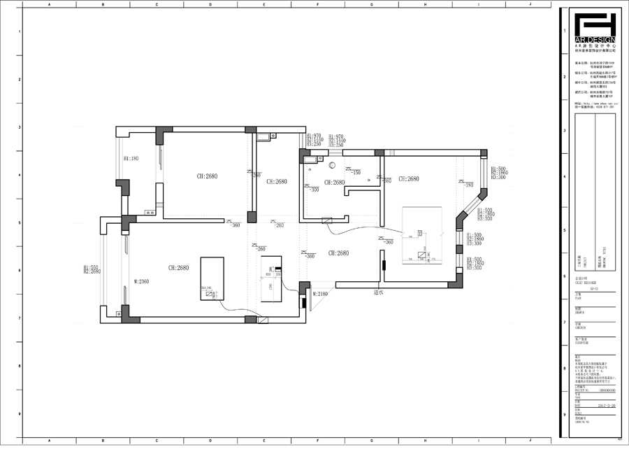
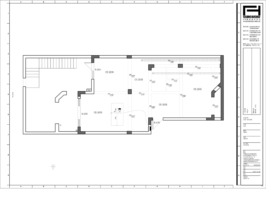
原始结构图
一层原始结构图
二层原始结构图
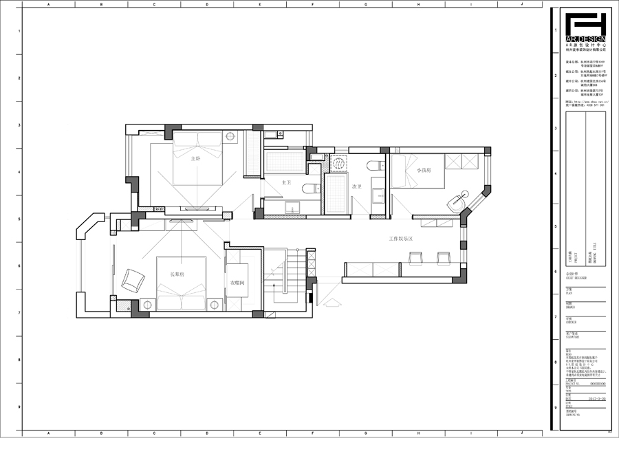
平面布置图
一层平面布置图
二层平面布置图
▼客厅 Living room
客厅以经典的白色作为主色调,营造简洁、干练的气息,加以明亮温暖的黄、蓝色调点缀,使得整个空间遒劲而富有节奏感,搭配集功能与审美于一体的特色家具,让人体验到自然、干净、舒适的美感。
▼餐厅 Dining room
餐厅整体用线条和色彩勾出强烈的设计感和温暖感。线条简约的餐椅与原木色的餐桌搭配,体现了现代与自然元素的结合,橙色吊灯和色调温暖的饰物相互搭配协调,让整个餐厅活跃而温和。
▼厨房 Kitchen
厨房选用简单干净的灰色和原木色,营造空间低调的宁静感,沉稳而内敛。
▼主卧 Master Bedroom
主卧以灰色为视觉中心,用中性原木色进行柔和的过度,渲染了淡雅、静谧的氛围,简洁而又富有设计感的背景墙搭造型简约的家具和灯饰,貌似不经意的搭配之下,一切又如浑然天成般精致绝伦。
▼次卧 Bedroom
次卧以色彩主导视觉中心点,颜色清新明亮的背景墙给人温馨、清爽之感,搭配色彩鲜明跳跃的床品和饰物,营造了活泼温暖的空间氛围。
▼书房
设计师充分利用空间,紧贴墙面定制了书桌和置物架,搭配线条流畅的书椅,瞬间提升了空间的格调与质感。
▼休闲区
设计师利用庭院打造出一个休闲区,白色的桌椅配上绿植,让人感到干净、清新,并在靠墙处栽植一排翠竹,低调地彰显了业主对自然情趣的追求。
▼卫生间 Bathroom
采用干湿分离的设计,简洁的墙面以拼花小砖点缀,营造了清新洁净的视觉感受。
▼楼梯
客服
消息
收藏
下载
最近





















