查看完整案例


收藏

下载
项目名称:瑞士化学家拜伦之家
位置:瑞士
建筑师:Olson Kundig
这座现代房屋位于瑞士日内瓦郊区一个传统的瑞士社区。精心整合到陡峭的场地中,房屋的设计平衡了现代建筑语言与温暖亲密感。设计负责人汤姆·昆迪格(Tom Kundig)与瑞士当地的建筑商和工程师紧密合作,结合了瑞士建筑闻名的高水平的工艺和精密度。这种合作还体现在外装材料上,外装材料包括昆迪格风格的钢和玻璃,但以陶土和欧洲松树等传统当地材料制成。利用三层楼高的山坡建筑,您可以欣赏到日内瓦湖和汝拉山脉的美景。大型采光井在每个楼层(直至地下半地下)都融合了自然采光。在北侧,一扇青铜色的主入口通向主层大厅,通向一个宽敞的起居/用餐/厨房区以及一个带顶棚的露台。安东尼·戈姆利(Antony Gormly)创作的抽象人物雕塑指挥着露台,将户外的景色引向游泳池,湖泊和其他山脉。在较高楼层,主套房还可以欣赏到原始风光,其形式是悬停在露台上方的挤压玻璃盒子的形式。顶层还有两间卧室,下层还有一间套房,桑拿浴室和健身室。一个平易近人但又精致的室内调色板包括混凝土,灰木和金属饰面以及天然石材和灰泥等材料。“这是我在瑞士的第一个项目,这令人兴奋,因为我是瑞士公民。我小时候在瑞士呆了几年,在那里与家人有着重要的联系。从某种意义上说,这是我的家乡,我很高兴能回到这个项目。” –汤姆·昆迪格(RIBA FAIA)
瑞士化学家拜伦之家外部实景图
瑞士化学家拜伦之家内部实景图
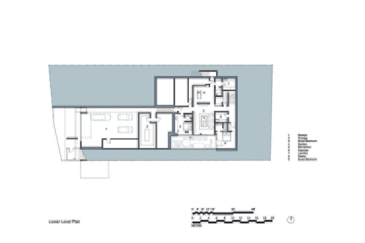
瑞士化学家拜伦之家平面图
客服
消息
收藏
下载
最近


























