查看完整案例


收藏

下载
项目名称:孟宅
位置:山东 济南
设计公司:陶磊建筑工作室
设计师:陶磊
孟宅是一个为私人住宅改建的项目,原建筑是刚交付的新房,位于山东省济南市的一个
联排别墅
社区的东端,不远的高处有山峰,这里可以形成一个不错的景观视角。该社区是随着中国商品住宅开发普遍模仿欧式建筑风格的风潮而兴建的典型性商品住宅,在此基础上,为了满足业主的实际需求和现状条件对原建筑和景观作了针对性的改建设计。仿欧式社区在整体风格和建筑的使用方式上与当地自然和人文并无必然的内在联系,改建设计本身并不带有过多的风格和样式的设定,只是对原建筑和外部环境进行了一次恰当的整合,使其具有更好的景观和室内外的活动空间,提升建筑的空间品质。
对于原建筑既定的事实,新加建的部分并没有在风格上去否定或者肯定,设计上既不迎合所谓的仿欧式风格,也没有在样式上标新立异。而是以并置的方式和温和的态度去营建新的空间形态,在不同的楼层加建出一个木盒子和一个玻璃盒子,这是室内空间向外的延伸,并试图发挥出该地段的全部地理优势,结合景观,让室内和室外空间互动起来,让室内空间向外延伸出来,并与东部不远的山峰相呼应,形成独特的内外关系,让内部空间放大到更远,让建筑的使用者拥有更丰富的活动空间的同时,建筑本身却保持简单和朴素。通过对新商品建筑的改建,重新审视建筑的风格和样式对人的生活的本质意义,并寻找一种符合个体真实生活内容的空间方式,在原建筑的基础上重建符合自身文化特性的生活理念和健康自由的起居方式。并以此为契机提出对中国商品住宅现状的一种质疑,质疑盲目简单模仿不明地域和时代的建筑风格对人居环境的意义。
济南孟宅实景图
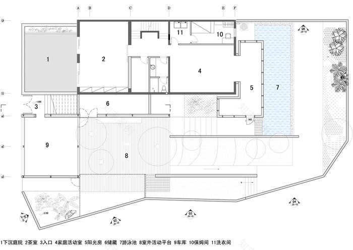
济南孟宅实景图平面图
济南孟宅实景图立面图
济南孟宅实景图剖面图
客服
消息
收藏
下载
最近











