查看完整案例


收藏

下载

翻译
Craig Tan Architects designed a socially thriving village-like atmosphere inspired by the street market experience to encourage communal interaction at the HWKR Food Centre in Melbourne, Australia.
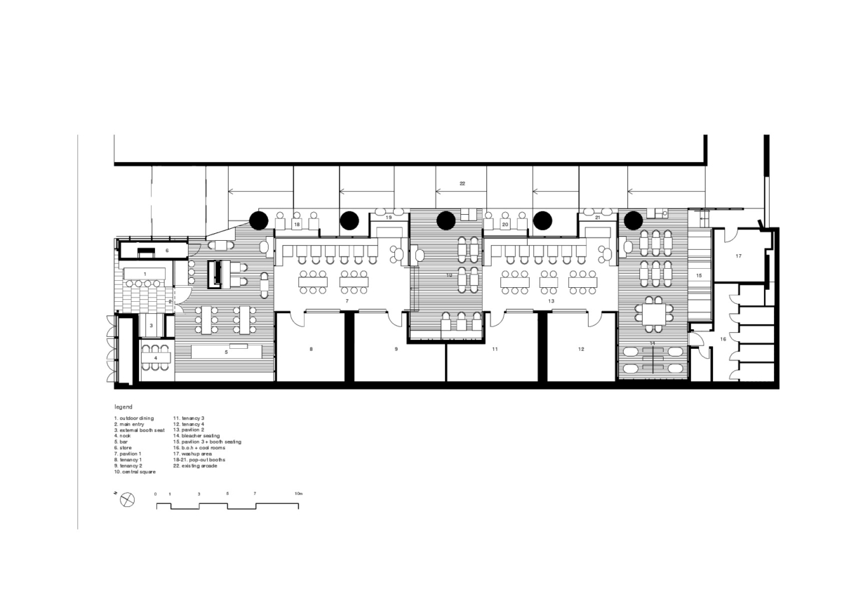
HWKR Food Centre is an innovative and futuristic 200 seat Asian food centre commissioned by ICD property and Brandworks to activate the public realm of the EQ Tower in Melbourne’s CBD. With a technological focus, and featuring four tenant kiosks on three-monthly rotations, HWKR provides a Melbourne twist on Hawker cuisine. Central to the design concept was creating a socially thriving village-like atmosphere to encourage communal interaction.
The key concept was to generate the social atmosphere and embodied experience of street markets. We believe that it is important to create an intimate, activated and layered experience of urban lane spaces.
By inserting a series of four volumes or ‘pavilions’ into the space we sought to create a permeable food centre, opening to the retail arcade, that offers the conditions of intimacy and an almost urban outdoor scale. The pavilions are then eroded and hollowed out, with the food tenancies located within, becoming part of the fabric of the pavilions. The spaces in-between the pavilions become pseudo urban squares. A sculptural bar and a terrace of bleacher seats are introduced into these spaces to further activate these zones. The ceilings in these areas are exposed to the existing soffit, celebrating the texture of the overhead exhaust ducts. Graphic colour fields derived from the branding colours extend out into these urban spaces, creating luminous colourful cloud-like canopies.
Design: Craig Tan Architects Photography: Jaime Diaz-Berrio
26 Images | expand images for additional detail
客服
消息
收藏
下载
最近




























