查看完整案例


收藏

下载
Vietnamese Hanoi flat Residential
设计方:Landmak Architecture
位置:越南 河内
分类:居住建筑
内容:实景照片
图片:19张
摄影师:Le Anh Duc
这栋住宅坐落在一个很糟糕的场址上,场址是从一大片土地的最狭窄的部分中分离出来的。它的形状很丑,而且极度的狭窄。在郊区,人们经常将住宅修建在面积非常大的场址上,因此,面积较小的区域(与这个区域中的土地相比)通常不被人们选择去修建住宅。这个场址差不多都快被抛弃了,直到有一天一个年轻人用极低的价格买下了这块地。这个年轻人是我的亲戚,他想要我为他设计这栋住宅。
我们面临的情况是项目的场址距离市中心很远、当地的建筑工人们并不是很专业、建筑图纸很难辨认等问题。在建筑设计的过程中,发展一个拥有很多细节的特殊理念对我们来说相当困难。在我们绞尽脑汁的思考设计解决方案后,我们选择了一个非常实用而且极简的理念。住宅是由砖块制成的,还带有空洞,以便于在位于场址前部非常尖的角落上创造空隙,这些空隙被用来种植树木,以便为内部空间提供隐私。
译者:蝈蝈
This house is built on a bad land shape which is separated from the narrowest part of a large land. It has ugly shape and is most cramped. In suburban, people often build houses on very large land plots, therefore, the small area (in comparison with the land in this area) is paid less attention to build a house.It is almost abandoned until a young man buys it at cheap price. He is my relative and he would like me to design it.
We face the situation that the land is located far from center and local construction workers are not professional and illegible with architectural drawings.It is really hard for us to develop a special concept with much details when implementing. We have considered the designed solutions so much and finally we choose a very practical and minimalist concept. A skin is made of brick with hollow to create the void in the most tapering angle in front of the land, it is used for planting trees to provide privacy to the interior.
越南河内平住宅外部实景图
越南河内平住宅内部实景图
越南河内平住宅剖面图
越南河内平
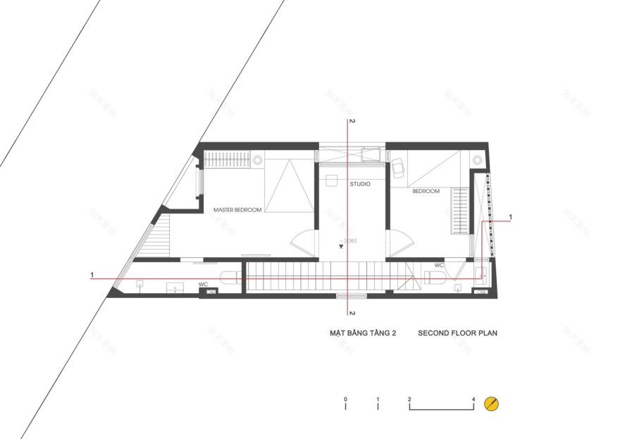
住宅平面图
越南河内平住宅平面图
客服
消息
收藏
下载
最近





















