查看完整案例


收藏

下载
Canada Fallsview Residential
设计方:Setless Architecture
位置:加拿大
分类:居住建筑
内容:实景照片
图片:18张
该住宅坐落与于布鲁斯步道的Tew瀑布和Webster瀑布交汇处,与独特的景观密切联系。布鲁斯步道沿着尼亚加拉断崖的边缘,尼亚加拉断崖是联合国教科文组织的世界生物圈保护区,布鲁斯步道从尼亚加拉河起,离布鲁斯半岛尖端托巴莫利将近900公里。这其中,步道穿过之处混合了省级土地、省市级环保部门和私人土地。场地包括延伸250英尺的私有道路,它连接两个频繁使用的城市公园。碗形斯宾塞峡谷的主要景色正好呈现在主要外部庭院前方。就此而言,项目看起来像世外桃源,在周末,成千上万的游客和城市居民使它变得热闹起来,他们会爬上200英尺的悬崖观赏广阔的风景。
建筑必须符合安大略省最严格的土地使用规定。项目进程始于一座废弃的房屋,它在汉密尔顿市保护局和尼亚加拉断崖委员会省级保护区内。我们有在紧密的城市环境中工作的经验,这有助于我们设计出满足规定的建筑,最终在1.5英亩的宽阔土地上开辟出小块建筑工地。房屋的主要公共房间敞向前面,以便充分欣赏景色和季节性薄雾。房屋后面是自带的景观。修长的卡罗莱纳州森林为林土层提供高高的树冠。卧室和中庭旨在享受隐秘的自然空间。住宅利用枝繁叶茂的树冠在夏天提供遮荫。在冬天,当树叶落下,高热阻玻璃让日光涌入。光线充满空间,与业主令人印象深刻的艺术收藏品相异成趣。在扎格罗斯山脉、印度和缅甸长期旅居收集的艺术品紧邻现代加拿大艺术品放置。
加拿大Fallsview住宅外部实景图
加拿大Fallsview住宅内部实景图
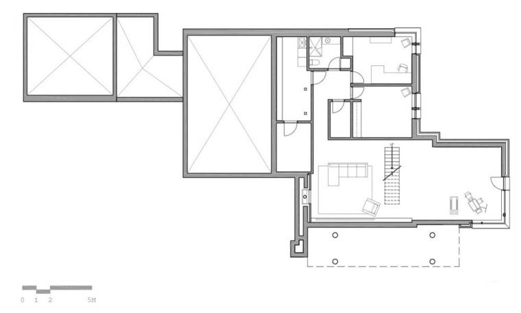
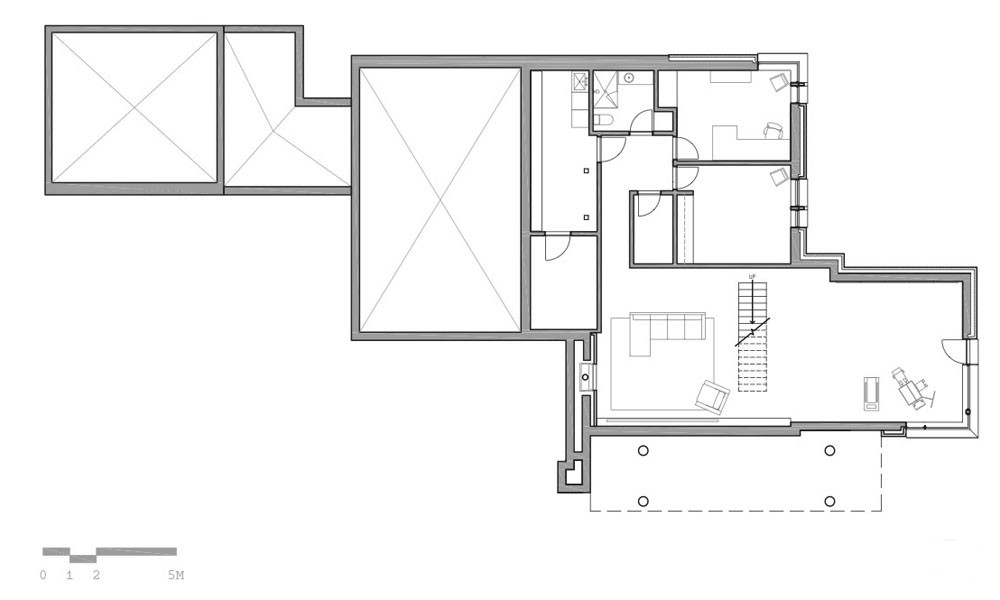
加拿大Fallsview
住宅平面图
加拿大Fallsview住宅平面图
加拿大Fallsview住宅立面图
客服
消息
收藏
下载
最近





































