查看完整案例


收藏

下载
在自由往复的空间中
肆意徜徉
In the free and reciprocating space, Roam freely
本案是位于【合肥金辉庐州云著】的一个 130㎡婚房项目。业主喜欢现代简约风的清爽整洁,也喜欢法式风情的浪漫优雅。于是设计师在整体把握空间功能的同时,将二者巧妙融合,塑造了一个简洁大方又温馨美妙的家居空间。
作品信息
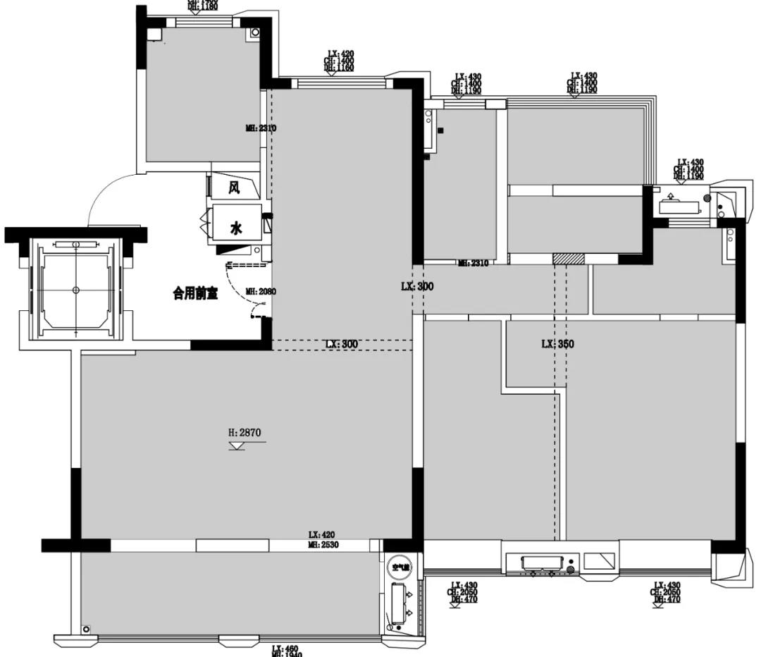
项目户型:130㎡三室两厅
设计风格:现代简约
项目地址:合肥金辉庐州云著
设计团队:深零设计
施工单位:合肥深零设计
▲before
▲after
设计亮点
阳台并入客厅,扩充活动空间。电视和投影兼具,沙发后设吧台和西厨区,丰富空间功能,增强互动感。
原始走廊较窄,改变卧室门洞朝向,洗手台外移,优化动线。
主卧进门处增设型衣帽间,扩大主卫空间,完成卧室套间功能。
北阳台并至室内,满足客房需求。
结合不同功能需求,在每个空间进行不同形式上的收纳设计。
触碰无界的层次感
自由之于人类,就像亮光之于眼睛、空气之于肺腑、爱情之于心灵。
英格索尔。
Freedom is to man what light is to the eyes, air to the heart, and love to the heart. ——Ingersoll.
社会生活,好像存在着许多界限,我们总是小心翼翼,害怕闯进未知陌生领域。而家,不用界限分明、也无须小心试探,自由徜徉、随心漫步即可。
Social life, it seems that there are many boundaries, we are always cautious, afraid of breaking into unknown and unfamiliar areas. And home, do not need to be clearly defined, do not need to be careful to explore, freely roam, stroll.
不拘一格的横厅空间里,无靠背沙发和相邻吧台诠释出静态的互动关系,像家人一般,彼此独立又相互依存,也算是一种意义上的相濡以沫了吧。
In the informal horizontal hall space, the backless sofa and the adjacent bar interpret the static interactive relationship. They are like family members, independent but interdependent, which can be regarded as a kind of mutual help in a sense~
清爽宜人的简约格调中,藏着无数让人心驰神往的美妙细节。浪漫与温情,在你目之所及的空间里,每一处,都被赋予了深意。
In the refreshing and pleasant simple style, there are countless fascinating details. In the space you can see, every place is endowed with deep meaning.
多层次灯光营造出静谧优雅的氛围,大理石和木质元素令空间质感升级。看似简单平静的客厅中,却蕴含着无穷魅力,赋予居者广阔的想象空间和生活态度。
Multi level lighting creates a quiet and elegant atmosphere. Marble and wood elements upgrade the texture of the space. The seemingly simple and calm living room contains infinite charm, which endows the residents with infinite imagination space and rich life attitude.
不论阅读、工作,还是游戏、观影,都能在家中尽情发挥与创造;与爱人执杯共饮,一杯咖啡、一壶清茶,亦或一盏醇酒,于怡然空间里,品生活百般滋味。
Whether it is reading, working, playing games or watching movies, you can make full use of and create at home; you can drink together with your lover, a cup of coffee, a pot of tea, or a strong wine to taste all kinds of tastes of life in a wonderful space.
于互动中感受温情
人间烟火气,最抚凡人心。
The world’s fireworks, the most touching people’s hearts.
香气馥郁的餐厅里,满足的是味蕾、照顾的是感情。开放式客餐厅空间中,流畅自如的洄游动线给生活加入更为温馨的互动模式,两代人、甚至将来三代人之间的情感,会在这里更上一层楼。
In a restaurant full of fragrance, the taste buds are satisfied and the feelings are taken care of. In the open dining room space, the smooth migration line adds warm interaction mode to life, and the emotion between the two generations is even higher here.
现代风格中融入一些浪漫复古元素,共同构筑出优雅出众的审美立场。
Some romantic retro elements are integrated into the modern style, and jointly build an elegant and outstanding aesthetic chapter.
设计不需要赘余,在有限的空间中展现该有的家居形态、优化生活体验,再从细节上勾勒一些不平凡的巧思,就完全足够。
Design does not need to be redundant, in the limited space to show some home form, optimize the life experience, and then outline some extraordinary ideas from the details, it is completely enough.
知微见著,感受极致美好
郑板桥说过:室雅何须大
花香不在多。
Zheng Banqiao once said: room elegant why big, flower fragrance is not much.
卧室因人而有了灵魂,因设计而有了高雅情趣。复古绿打底,却偏偏刻画出精致;石膏线调和,却处处彰显清新。花朵主灯在这个情境下也不显得张扬,好似秋日林间疏忽而起的一阵清风,舒适宜人、韵味十足。
Bedroom because of people and soul, because of the design and elegant taste. The base of Retro Green shows freshness; the gypsum line is harmonious, but it shows delicacy everywhere. In this situation, the flower main lamp does not appear to be conspicuous, just like a gust of careless breeze in the forest in autumn, comfortable and pleasant, full of charm.
进门的嵌入式衣帽间为精致生活再添一份仪式感,贴心的设计也让主卫得到良好采光。
The embedded cloakroom at the entrance adds a sense of ceremony to the exquisite life, and the intimate design also makes the master bathroom get good lighting.
快节奏生活之下,也要留出片刻闲暇来放松自我。寻一舒适角落,看城市车马喧嚣,也赏人间灯火璀璨。
Under the fast-paced mode of life, we should also set aside a moment of leisure to relax ourselves. Look for a comfortable corner, look at the city’s cars and horses, but also look at the world’s bright lights.
家的设计,不仅要满足当下的生活方式,更要留出一些弹性空间,去应对未来的更多需求。因此,设计师应站在更高的角度考量更多的可能性,从而才能做到,每一个细节背后,都有深远的意义。
Home design, not only to meet the current lifestyle, but also to set aside some flexible space to meet more needs in the future. Therefore, designers should consider more possibilities from a higher perspective, so as to achieve the goal. Behind every detail, there is a far-reaching significance.
深零专注于设计,致力于探究人与空间的关系、呈现更为精彩的生活模式,让居者在这独一无二的空间里,能够真正地享受生活、热爱生活。
Shenling focuses on design, and is committed to exploring the relationship between people and space, building more wonderful life patterns, so that residents can truly enjoy life and love life in this unique space.
世界很大,不如和深零一起,解锁新的美好里程。
The world is big. It’s better to open a new chapter with Shenling.
客服
消息
收藏
下载
最近




























