查看完整案例


收藏

下载
Israel Architects of the villa
位置:以色列
分类:别墅建筑
内容:实景照片
建筑师:Pitsou Kedem
设计团队:Noa Groman, Tamar Berger
图片:33张
摄影师:Amit Geron
建筑师Pitsou Kedem为自己及他的家人设计的别墅所在的街区建立与二十世纪五十年代,这个街区是又退伍的老兵建立的,这个街区中建筑物的特点是低的轮廓和水平的线,这个街区中还有很多桉树。Kedem的别墅被设计成混合其它房屋特性的形式,别墅所有的建设都使用了现代的建筑价值。别墅中包含的元素有一个混凝土天花板和连续的窗户,在修剪别墅时还使用了最原始的、未经过处理的材料:露石混凝土、铁、没有油漆过的木材和硅酸盐砖块。使用了这些材料的例子可以在漂浮在入口楼层之上的天花板中找到,这个楼层中有沿着楼层全长的连续的窗户。这个窗户使得天花板与建筑结构的墙壁分开,再加上白色的漆和铁扶梯,进而创造了一种空灵的感觉。
别墅的门位于建筑横截面的中部,也位于楼梯井的中间,门开向一扇固定的、没有框架的窗户。穿过窗户可以看见围绕着别墅场址的桉树。楼梯井是由金属制造的,它拥有一个独特的纹理,而且没有使用任何涂料。楼梯井将别墅的两个楼层分成了几个矩形,楼梯井被两堵墙壁界限着,这两堵墙壁支撑着别墅的天花板。别墅中的光线由天窗提供,从天窗中来的光线贯穿了别墅的整个长度,别墅的整个长度上都覆盖了一层木板板条。具有不同大小的圆形窗户被嵌进了墙壁之中,这些窗户使得从天窗中来的光线分散开来。
译者:蝈蝈
The neighborhood where architect Pitsou Kedem designed a home for himself and his family was established in the 1950’s by army veterans and can be characterized by buildings with low silhouettes and horizontal lines set in a rich grove of eucalyptus trees. Kedem’s home was designed to blend in with the architectural characteristics of the other homes, all built using modern architectural values.The home combines elements such as a concrete ceiling and continuous windows and also uses materials in their original, raw state: exposed concrete, iron and uncolored wood and silicate bricks. Examples of the use of such materials can be found in the concrete ceiling that floats above the entrance floor with a continuous window along its entire length. This allows the ceiling to be separate from the structure’s walls and creates a feeling of etherealness in the buildings mass and the white painted, iron ramp that leads to the floating entrance lobby.
The door is located in the center of the building at the cross section between the stairwell and it opens facing a fixed, frameless window. Through the window, we see the eucalyptus trees that surround the plot. The stairwell is constructed from metal with a unique texture and with no covering materials. It divides the two floors into rectangles and is delimitated by two walls constructed from exposed blocks that support the ceiling. Light is provided from the skylight that runs its entire length, covered by wooden slats. Set into the walls are round windows of differing sizes that allow the light coming through the skylight to disperse within the space.
以色列建筑师的别墅外部实景图
以色列建筑师的别墅外部侧面实景图
以色列建筑师的别墅外部局部实景图
以色列建筑师的别墅之庭院实景图
以色列建筑师的别墅外部夜景实景图
以色列建筑师的别墅内部实景图
以色列建筑师的别墅内部客厅实景图
以色列建筑师的别墅内部餐厅实景图
以色列建筑师的别墅内部局部实景图
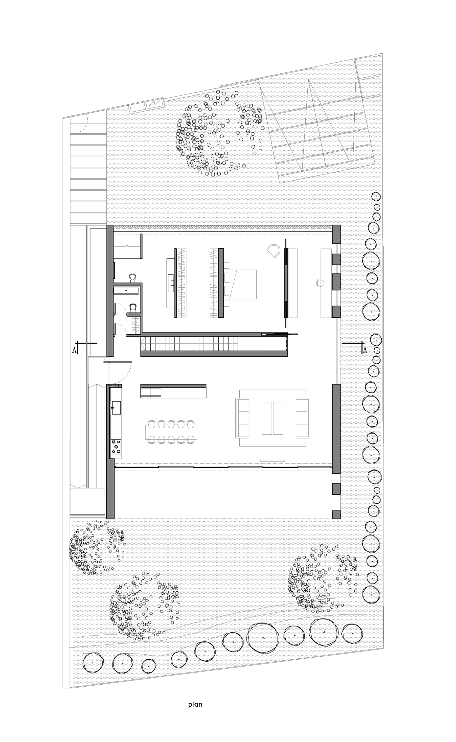
以色列建筑师的别墅平面图
以色列建筑师的别墅立面图
以色列建筑师的别墅剖面图
客服
消息
收藏
下载
最近



































