查看完整案例


收藏

下载
Belgium GFR villa
设计方:DE JAEGHERE Architectuuratelier
位置:比利时
分类:别墅建筑
内容:实景照片
图片来源:Steven De Jaeghere
图片:21张
摄影师:Hendrik Biegs , Courtesy of Steven De Jaeghere
客户要求别墅必须和周边环境清楚的连接在一起,还要比附近的城堡显得更特别,而且别墅的隐私要得到充分的保证。这就是别墅和它的庭院都被一堵封闭的墙围住的原因。有了这堵围墙,路过的人就看不见别墅里面发生了什么了。面积很大的二楼像浮在一个玻璃建筑上面。当走进入口处的大门,人们会逐渐看到光线和玻璃交织在一起的景象。
从生活区可以看见别墅外边的风景,还能看到附近城堡的全景。别墅白色的外墙反射着太阳光从而加深了别墅外表给人带来的印象。板岩石连接着别墅内部和庭院,从而使别墅内外部的界限变得模糊。别墅内的光线很充足,因为别墅的外形方便了光线的进入。庭院的围墙通过台球房和花园的围墙连在一起,从而加强了庭院和花园的联系。别墅的围墙不仅看起来很结实,还很好的保护了人们的隐私。围墙不是连续的,这使周围环境很突出。浴室也非常注重隐私和光线问题。别墅内外部的界限形成了内部露台,由规格石块的柱子支撑,里面有浴室和淋浴间。
译者:蝈蝈
The owner requested a clear link between his property and the surroundings, more specifically with the nearby castle, even though privacy ought to be guaranteed at every moment. This is why the villa is designed with a patio enclosed by a wall. Passers-by cannot see what is happening inside the house.The massive first floor seems to be floating on a glass construction. When walking through the entrance gate, one gradually discovers the mixture of light and transparency.
The living area permits residents to look outside and have a panoramic view on the nearby castle. The whited exterior wall reflects the sunlight and enhances the impression of exterior space. The slate stone links the interior with the patio and blurs the border between inside and outside. Light creates dynamism in the house, as architectural lines bring in natural light .The patio wall is connected to a garden wall with pool house and composes an intense relationship with the garden. The walls give a strong and solid impression but simultaneously they create a feeling of intimacy. They are discrete pillars that make the surroundings stand out.In the bathroom too, the question of intimacy and light was addressed: the border between inside and outside fades as a pillar of dimension stone, in which both the bath and the walk-in shower are organized, visually continues up to the interior patio level.
比利时GFR别墅外部实景图
比利时GFR别墅外部侧面实景图
比利时GFR别墅外部背面实景图
比利时GFR别墅内部客厅实景图
比利时GFR别墅内部过道实景图
比利时GFR别墅内部客厅局部实景图
比利时GFR别墅内部厨房实景图
比利时GFR别墅内部浴室实景图
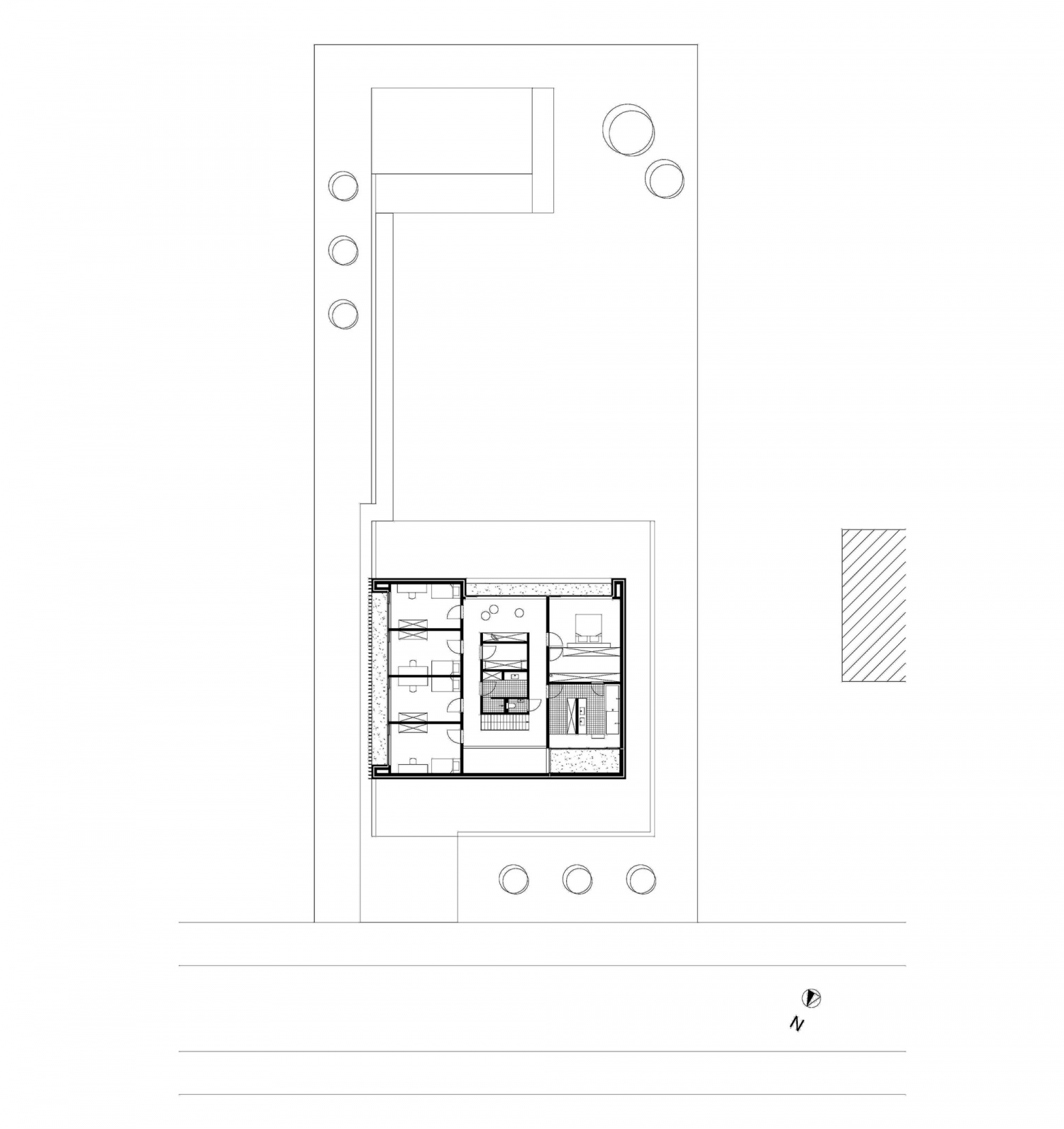
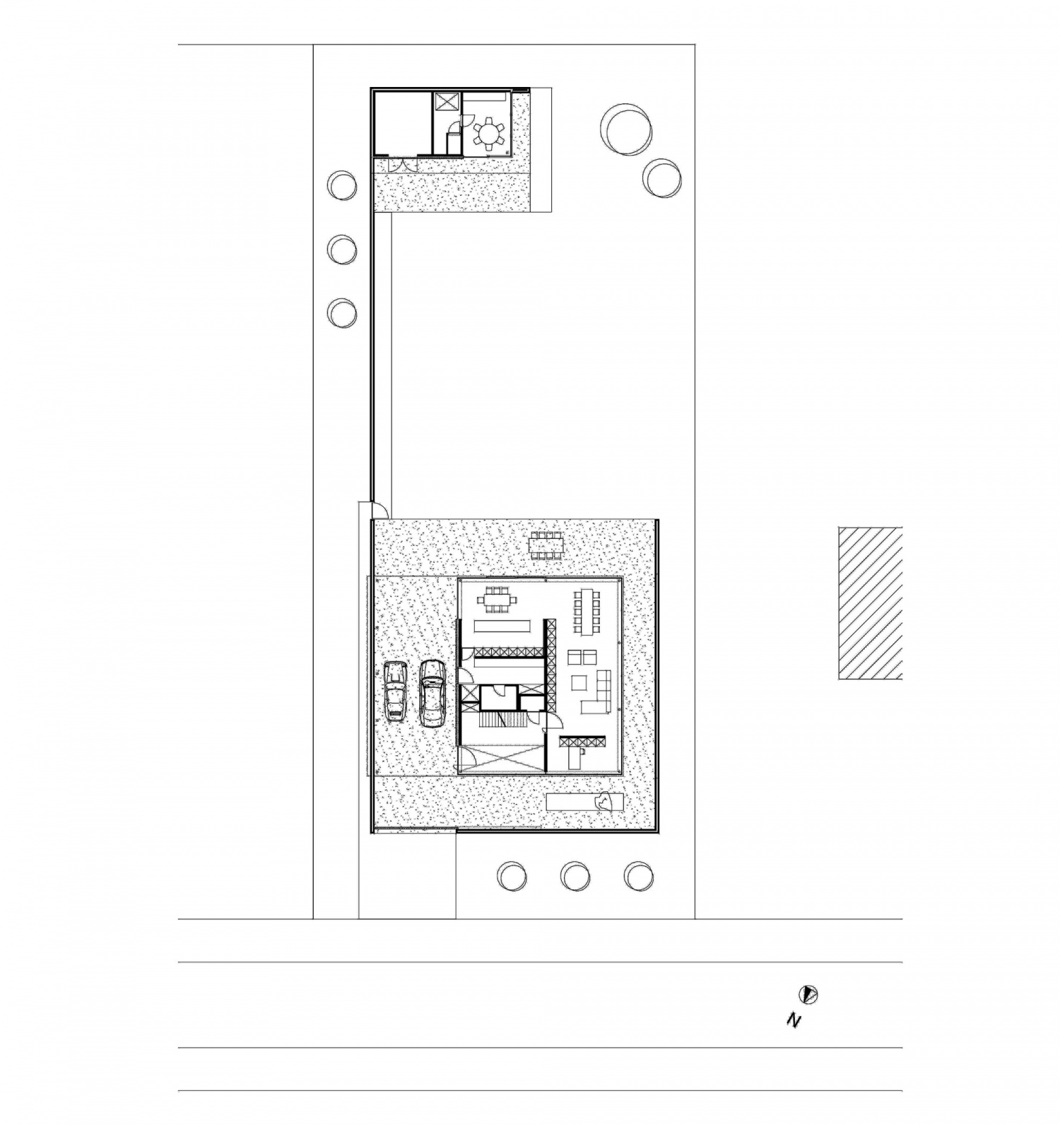
比利时GFR别墅平面图
客服
消息
收藏
下载
最近























