查看完整案例


收藏

下载
△ 相印成趣的枫叶和玻璃茶几倒影
案例背景
业主及需求:业主是一位成熟优雅的知性职业女性,她希望自己的家要耐看但不古板,且要符合自己年龄的时尚与审美,倾向于美式空间。
设计师思路:虽然业主喜爱美式,但业主给人的第一印象是端庄大气,有着东方知性美女的神韵与气场。所以在本案落地过程中,设计师悄悄地植入了一些东方元素,希望通过后期软装的加入,让这种元素相应的体现出来。
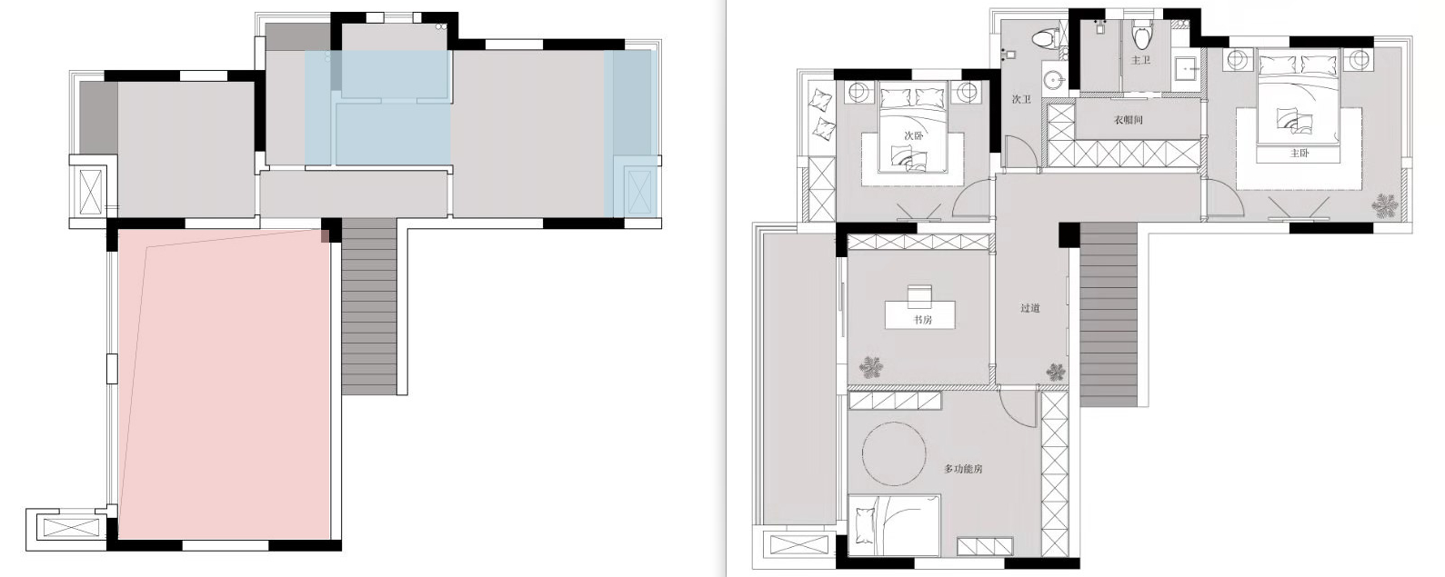
户型改造
黄色区域原始门厅较窄,设计师将进户左边的墙体向厨房内移,这样做了鞋柜后,门厅不再那么拥挤。为了增加鞋柜储藏量,右面客卫的墙体也内嵌了鞋柜。
绿色区域原始楼梯高度较陡,设计师将楼梯做了延长处理;一字楼梯视觉感太长,因此墙面做了护墙处理,护手用的是镂空铁艺,增加空间层次感。
紫色区域原始生活阳台需从厨房进去,但厨房空间狭长,橱柜位只能是一字形。设计师把阳台原始放空调的位置拆除,从景观阳台进入生活阳台,这样厨房可以做 L 型橱柜台面,增加厨房收纳。
粉色区域
原始客厅挑空,考虑到原始户型一楼没有休息房,所以挑空做了现浇,二楼增加的面积,划分为书房和一个客房空间。
蓝色区域
原始衣帽间太小,储藏不够,原始主卧室也不够宽敞,设计师拆除主卧室的飘窗和外机位,并且重新调整主卫和次卫的比例,相应的也扩大了主卧室和衣帽间的功能。
色 彩 搭 配
▃ 基础色++ 梅尔诺酒红
门厅
开门入户,干净利落的空间浮现而出,映入眼帘的楼梯颇具层次感。门厅左右都设计有鞋柜,增加储藏空间。
套装门和鞋柜柜门的线条自然流淌,显映四周以灰色为基底的低调搭配。
客 厅
客厅大面积的基础色搭配大气的酒红色,既有高级感和贵族范,又有红调东方气质,散发古典韵味,呈现别具一格的成熟魅力,与业主的气韵相宜。
客厅顶面雅致的雕花线条增加了空间的立体感,通过精细柔美的线条与干净硬朗的的石材对比,形成一个有层次又复古的空间。
电视墙的爵士白石材纹路有水墨的形态,优雅温婉。
△ 镂空的回字型铁艺楼梯扶手
餐 厅
应业主要求,餐厅放置了一款直径 1.2 米的圆桌,摆上柔和的餐椅和雅致的花束,烘托如画的诗意生活。
餐厅精致的线条,不仅呼应客厅的顶面设计,更带来一种视觉享受,在此聚餐谈天或独处片刻,皆能收揽到空间散发的和谐气息。
主卧
卧室背景墙选择具有中式味道的花鸟画,搭配酒红色的窗帘和床品,蓦然一抹酒红入目,嫣然一揽星河入梦。
吊顶和床头护墙都恰到好处地运用了金色金属线条,细致而不繁复。
次卧
次卧的飘窗和空调机位拆除后,有效利用起来做了飘窗柜和衣柜。墙面颜色选用了淡粉色和灰色,加上与其相呼应的软装搭配,勾勒出温柔多姿的浪漫空间,满足每个女生都有的粉色公主梦。
书房
二楼现浇部分设置为一个开敞式的书房和一个多功能房,这两个空间选择了稳重的水墨黑壁纸和黑框玻璃柜门,配上中式的书椅,端庄大气。
卫浴空间
二楼两个卫生间的基调是一致的,选择了仿爵士白石材文理的柔光砖,配上灰色混油漆的浴室柜,干净的乳胶漆吊顶,整个空间低调柔美,干净气派。
项目丨 Location:翠湖天地
面积丨 Square meters:150㎡
户型丨 House type:三室三厅
风格丨 style:美式混搭
硬装设计丨 Structure:DE 设计事务所-- 唐守蓉
软装设计丨 Decoration:D.ART 软装服务中心-- 周兰君
施工团队丨 Project:DE 工程中心
客服
消息
收藏
下载
最近






















