查看完整案例


收藏

下载
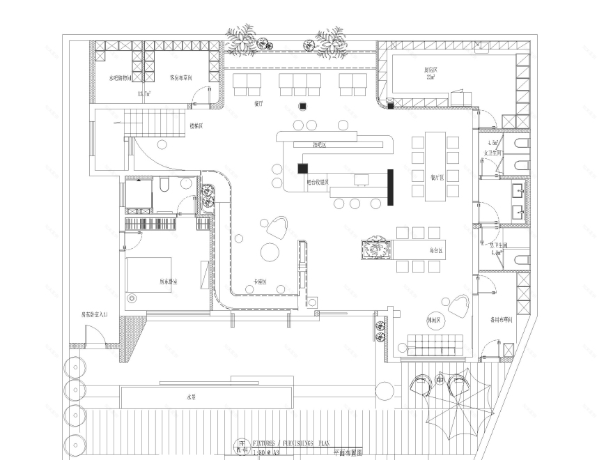
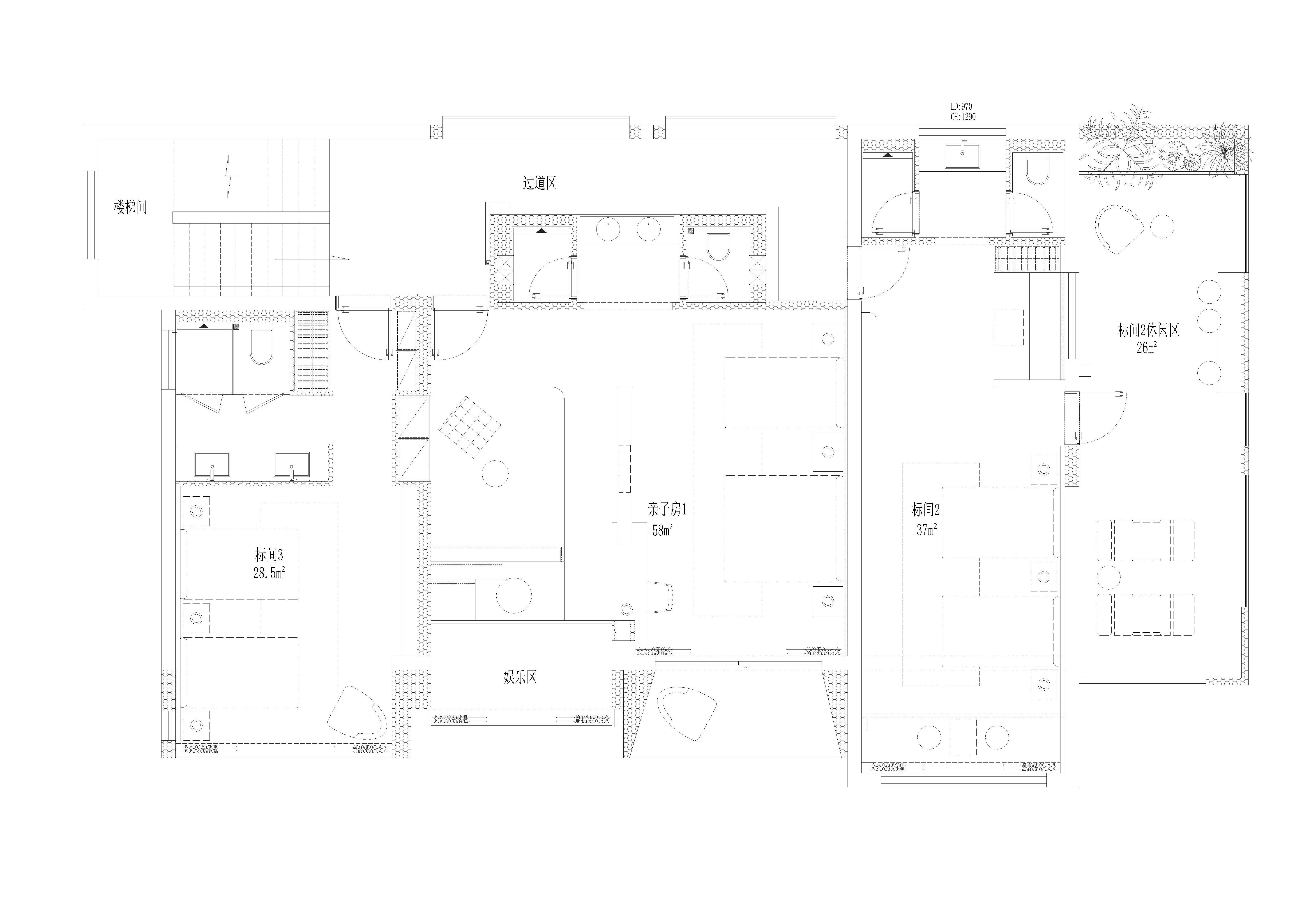
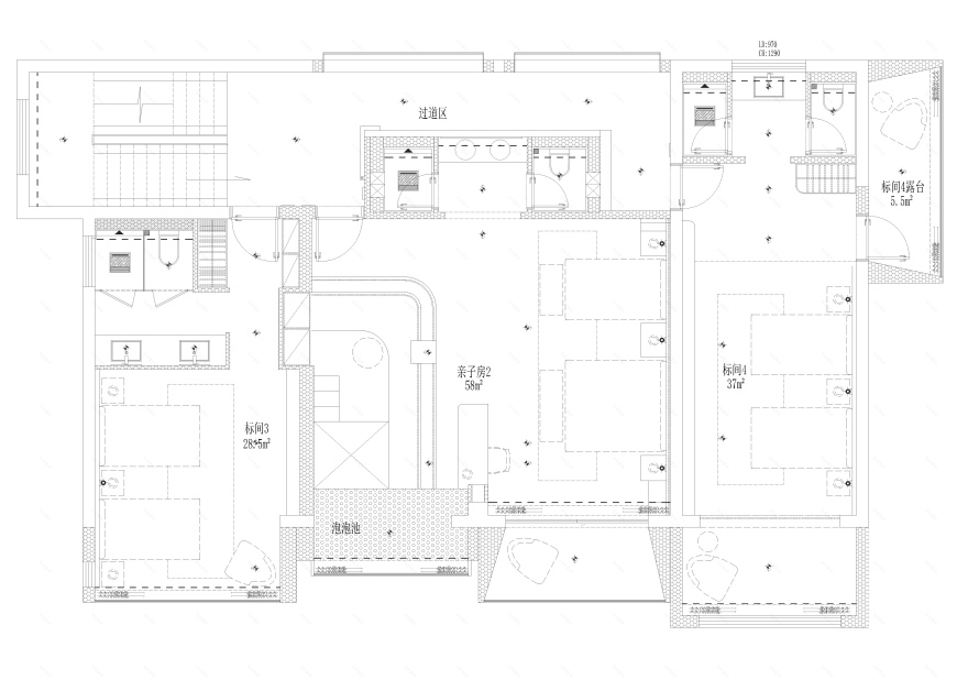
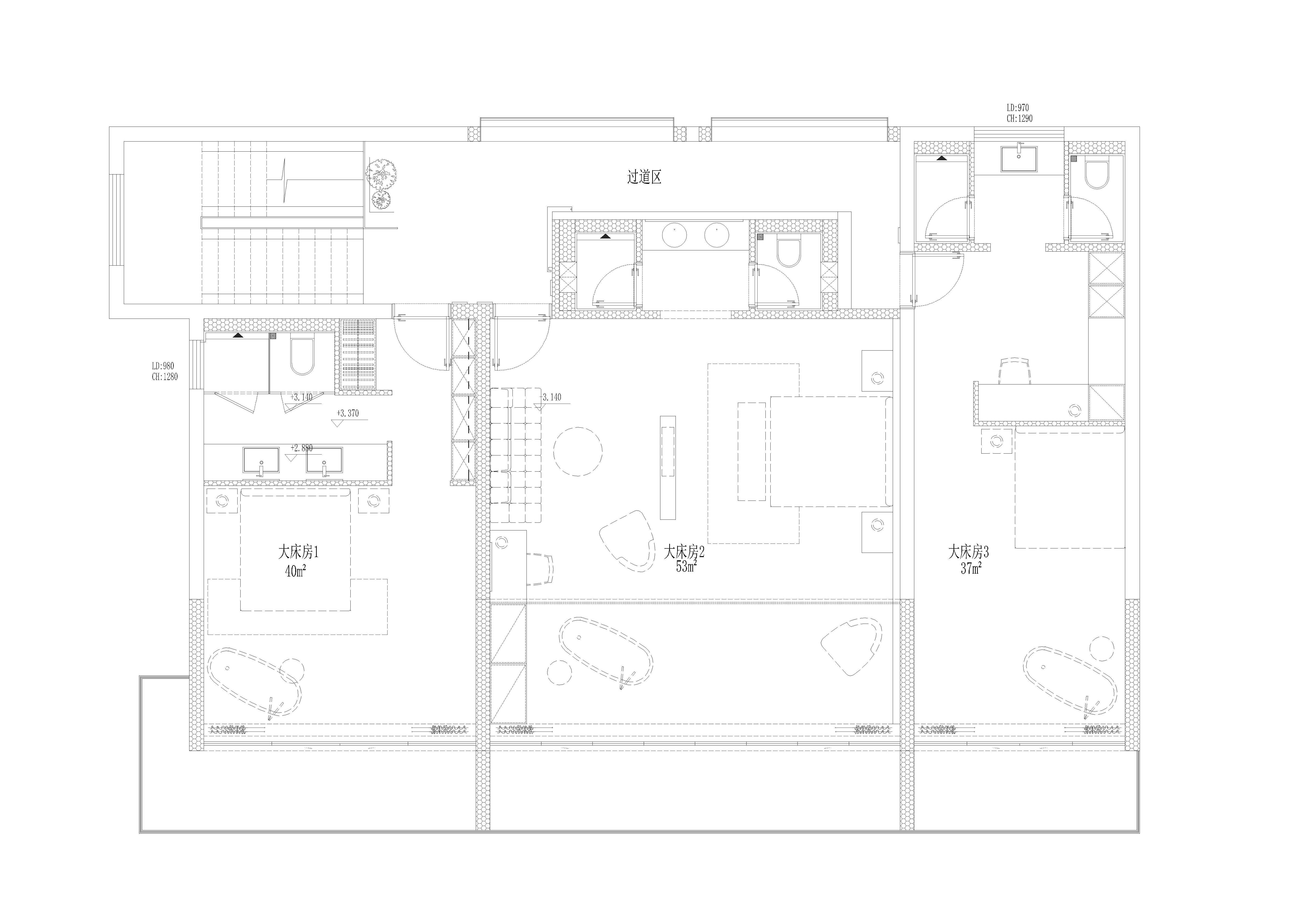
吉舍云上草原民宿位于浙江省湖州市安吉县,临近云上草原度假区,周边生态多为农村住宅建筑及山丘树林,几经旅游业发展带动,整个镇子呈现多态及有序的状态。
整个建筑的设计初,希望建筑以全新面貌屹立在这山丘地之上,不是繁琐的舔砖加瓦,而是拥有赋予“吉舍民宿”重新定义的现代建筑物,成为自己的标签建筑体,因此摒弃了传统民宿的固有概念,将黑白灰颜色作为建筑的主基调,同时延续甲方一代民宿店“老木头”元素融入其中,极简干练的建筑形态加入暖性肌理材质形成属性及色系的对立,以全新容貌建立,打开一种全新的民宿体验。
室内部分结合对质朴惬意生活的向往以及满足现代起居需求相结合,打造与自然,质朴宁静的美学理念,整个室内空间材质运用微水泥,木质,水磨石,艺术质感漆等元素。给予空间表面一层质朴宁静的视觉触感体验,同时现代起居功能的保障让现代与质朴的融合。
项目名称:商业建筑空间设计
设计单位:杭州民舍制作室内设计工作室
设计主创:贺赞辉,陈佳峰
项目地址:浙江 湖州
项目面积:900m²
吉舍云上草原民宿位于浙江省湖州市安吉县,临近云上草原度假区,周边生态多为农村住宅建筑及山丘树林,几经旅游业发展带动,整个镇子呈现多态及有序的状态。整个建筑的设计初,希望建筑以全新面貌屹立在这山丘地之上,不是繁琐的舔砖加瓦,而是拥有赋予“吉舍民宿”重新定义的现代建筑物,成为自己的标签建筑体,因此摒弃了传统民宿的固有概念,将黑白灰颜色作为建筑的主基调,同时延续甲方一代民宿店“老木头”元素融入其中,极简干练的建筑形态加入暖性肌理材质形成属性及色系的对立,以全新容貌建立,打开一种全新的民宿体验。室内部分结合对质朴惬意生活的向往以及满足现代起居需求相结合,打造与自然,质朴宁静的美学理念,整个室内空间材质运用微水泥,木质,水磨石,艺术质感漆等元素。给予空间表面一层质朴宁静的视觉触感体验,同时现代起居功能的保障让现代与质朴的融合。项目名称:商业建筑空间设计设计单位:杭州民舍制作室内设计工作室设计主创:贺赞辉,陈佳峰项目地址:浙江 湖州项目面积:900m²
客服
消息
收藏
下载
最近





































