查看完整案例


收藏

下载
项目名称:白鱼-旬八日料概念店
项目业主:成都井源记餐饮管理有限公司
项目地址:成都市高新区万象南路669号2栋附104
设计机构:BDD布道设计
服务内容:硬装设计/软装设计/照明设计
设计总监:刘万彬
软装总监:谢晓影(博士)
设计执行:硬装二组(刘宇/古昆)/软装卢琴
品牌顾问:成都遥光文化传播有限公司
项目监理:王瑜
照明顾问:石客照明
项目摄影:HB / 贺川(形在建筑摄影)
施工单位:四川标卓现代装饰工程有限公司
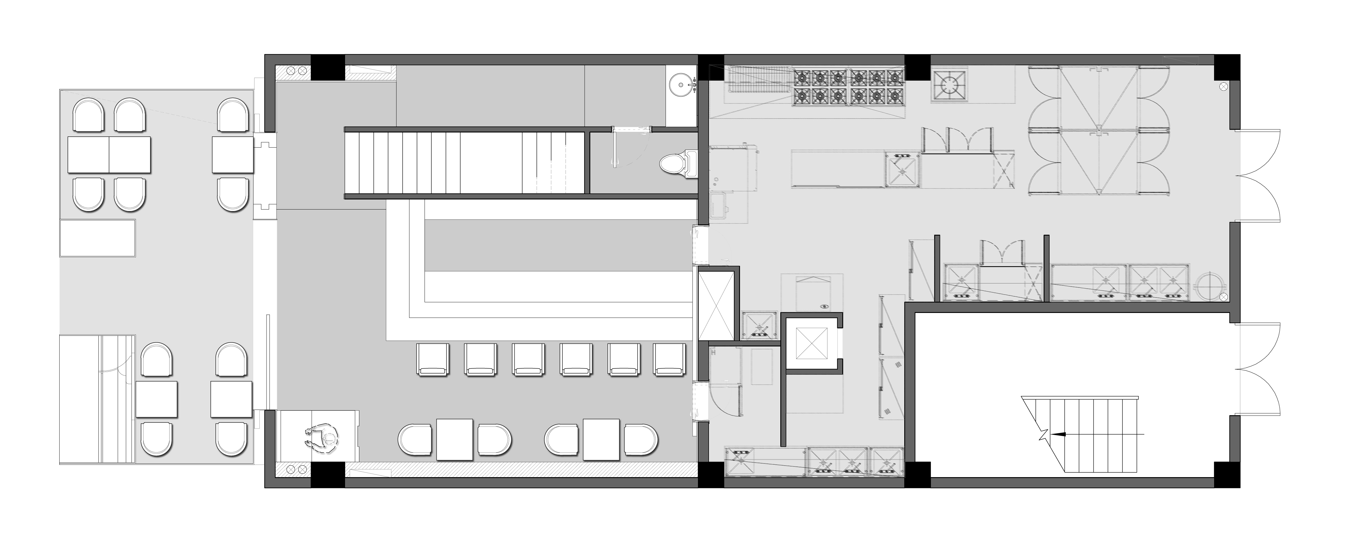
设计面积:420㎡
设计时间:2017年9月
设计周期:60天
施工时间:12个月
白鱼
大洋深处,终日无光,时有白鱼出没,
越深,越白,乃至透明,或自发光亮;
浅滩近海,水光交映,多有彩鱼群集,炫丽如幻;
一深一浅,一暗一明,一简一繁;
网红当道的“浅滩时代”
唯快至上
潮流瞬息万变,躁动刺激
快时尚备受追捧
一炮而红,却往往昙花一现
日料
谦逊精致的传统美食
从容笃定,朴素纯粹
如白鱼
White Fish
Deep into the Ocean, dark as can be. White fish is playing hide and seek.
The deeper the ocean, the whiter the fish. White to become even transparent, or have glistening skin.
Near the coast, in each shoal, among the reflected sunlight, there gathers colorful fishes.
White sand, shimmering water, beautiful coral, interlaced seaweed. The beauty is blinding.
In this era of shoal
Quick is our first goal
Nothing stays the same. Everything is breathtakingly colorful and excited.
The popular fast fashion
Disappears like a flash in the pan.
Japanese Cuisine
The exquisite, delicious and traditional food
Is always with its leisure pace, lisco and gorgeous style
Just as the white fish.
客服
消息
收藏
下载
最近




































