查看完整案例


收藏

下载
Section homestay
苏州伴宅
我对你们说过:一切都在我的眼底,从旅程第一步起。——阿多尼斯
Wutopia Lab 设计的白色苏州伴宅(林渡陶庐)Section homestay 于 2021 年十月在太湖之滨的西林渡村落成开放。它由同程旅行旗下景程文旅投资,由陶庐品牌民宿运营管理,属于同程旅行与横泾政府共同打造开发的乡村振兴项目林渡暖村里的第一个样板建筑。
|点击播放|我想轻松一点
看基地那天天气极好,我沐浴在金黄色的冬日里居然有些醉。我想在这样安静干净的村子里无所事事发呆,对我这个疲于奔命的中年人来说是多么有吸引力啊!我希望伴宅能够表达这种轻松又一丝慵懒的状态,而不是处处斤斤计较的精确。
伴宅是对原基地的已经危房状态的房屋修缮改造,建筑师不能改变建筑的平面轮廓线。有趣的是,苏州的郊区农村建筑并不是合院,而是一个反 C 的布局,看上去是合院的一半。这个一半激发了我的灵感。
一半就一半吧,我决定把西立面设计成剖面而暴露出内部的空间组织。伴宅仿佛是把一个完整的合院一分为二分家而留下的一半房子,这是伴宅 Section homestay 的由来。看得见的半宅和看不见的半宅才是完整意义的伴宅,一个典型的苏州合院。
既然是剖面,我决定把建筑的外轮廓线看成一个连续的有厚度的外壳。外壳从墙面到屋面的厚度控制在相同的 300mm。没错,要在西立面非常清晰地看到这个剖断。
为了保持这个连续的剖断,屋顶没有使用江南常见的青瓦,而是用白色铝盖板保持在视觉上和白色墙体的连续性。考虑到坡屋顶自由落水同时不能破坏剖面的连续,就特地在檐口设计了一个白色金属批水,帮助雨水抛离墙面。
然后我把建筑内部看成是腔体。任何腔体都不太会像现代建筑那样被各种功能空间挤得满满的。所以我决定释放首层空间,模糊室内外的界限,我把首层定义为腔体里的空。它可以用来休息、展示或者喝点什么。
那么二楼以上的民宿空间,我把它们看成腔体里的器官。我把每一个房间都看成独立的体积(器官),而不是把所有房间包括走廊看成一个统一的体积来安置在这个腔体之中。
形态生成
轴测图
1-1 剖面图
秋千
民宿有 6 间房子,就是 6 个体积。鉴于我对农村为数不多的记忆是学农时农场晒谷场的秋千,我决定在视觉上创造房间如同秋千是被悬吊起来,去填充腔体的,它们要在剖面上体现悬挂在大空间的首层上方,如果有些微微摆动感就更好了,但这给结构和设备造成了一定的难度。
胡文晓采用底部框架抗震墙砌体结构形式,来经济性地解决首层公共活动要求大空间与上部悬挂的民宿空间之间底部轴网错位的矛盾,在二层楼面采用钢筋混凝土悬挑梁加挂板,三层则外承重砖墙内收,最后在屋面钢筋混凝土板与外承重砖墙通过宽扁圈梁错位连接的方式帮助建筑师达到了在西侧剖立面上展示一种悬吊以及外壳和内腔体积具有空隙的效果。
剖面就是立面
最后当你从西立面进入建筑前,就可以在这个似乎被切开的断面上隐约洞悉这个建筑的组织结构了。
西立面图
刻意消失的猪圈
原建筑北侧有个独立的方形的猪圈,现在是餐厅的包间。我没法把它和主体建筑在视觉上连续成一体。那么我决定用反射的不锈钢板作为外立面,通过吸收周围的景色来让它消失,从而保证主体建筑的完整独立。
东立面
我在其他三个立面以及屋面维持了封闭感,来强化外壳的视觉特征以及整个建筑的体积感。其中东立面作为山墙尤甚。
长卷
不过东立面临水,于是我设计了一条长达 16.4 米沿着楼梯到达二层的长窗。于是窗外的风景便如画卷徐徐在游客的行进中打开。长卷不仅在水平方向跨过柱网,而且在竖向跨过楼层。结构工程师只能通过承重构件剪力墙竖向尺寸变化和窗顶以下范围墙体内收,做到不影响带窗的连续性。并在跨层处楼层结构主梁沿窗顶设计成竖向折梁,满足了长窗跨层连续的效果。
东立面图
调皮一下
长窗在东立面上太具有控制性了,甚至有些生硬。我临时决定改一下设计,把长窗的窗套做了延伸。顶板伸长到北立面后折而落地,南窗套板直接落地。两者之间的涂料在肌理和颜色上和主墙面用材形成一个细微的差异。这个不容易发现的不纯粹大约是我这个江南人内心深处对纯粹的几何体的一种欲拒还迎的怀疑。
那就改改其他
我继续修改东立面后,重新设计了东立面的排水口和厨房以及二楼公共休息区窗子的窗套。它们在满足功能的同时又要强化东立面的封闭感。
开窗分析图
还黑于地首层的地面包括庭院地坪,我统一使用了黑色火山岩。我解释是将屋顶的黑色用于地坪,实际还是出于避免彻底的白色以及我最近一直在尝试的水墨调子的实验。黑色地坪也成功地将二层空间以及外壳和地面剥离开,而强化了悬吊体验。
凿壁取光
我把院子和窗子看成民宿这个连续的外壳上被凿出来的洞口。你可以坐在阴影里,看着光线从洞口倾泻而下,一切都很安静。南面白色小院子里的紫薇则把这种安静变得生动。
江南在哪里
这个白色的房子在效果图上会让人觉得有些不江南,但建成后从鸟瞰来看,并无违和感。事实上,吴冠中提炼的那个三分黑七分白的江南视觉已经离我们有些远了。不仅房屋形制改了,甚至屋顶的青瓦也被当地居民放弃了。当代的江南有些斑驳,而吴冠中的那个江南则在记忆中。
我选择完整的白色不过是想做个减法,去消弭那个斑驳的江南的迷乱而已。我在三楼的客房选用了红色,则是我另外一种遗憾。如今江南的普通人饭桌上都充斥着白酒。袁枚热爱的黄酒几乎消失在主流的江南饭桌上了。黄酒虽然是米酒,但用麦做曲,所以呈现琥珀色。西林渡村有过相当知名的酿酒历史。我于是用了酒糟的红色来粉饰了三楼的两间房。大约算是对某些消亡事物的倔强表达吧。
万物静默如谜。
我原没有在房间安置电视机,是因为我从自己的体验出发,想营造一种静默的气氛、颜色、光线、封闭感,对风景的限制性使用。我们在日常中声色太过丰富,以至于心神不安。我希望在这里,外挂的设备都可以暂放一边。阳光会微微灼热你,空气有些缓慢,偶尔有些虫鸣。我或者你可以懒洋洋地无所事事,然后有了兴趣,这万物为何静默如谜。
每一个瞬间,灰烬都在证明它是未来的宫殿——阿多尼斯
总平面图
一层平面图
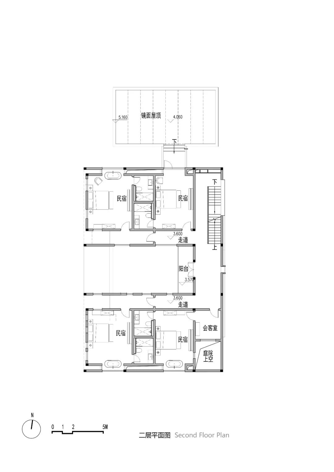
二层平面图
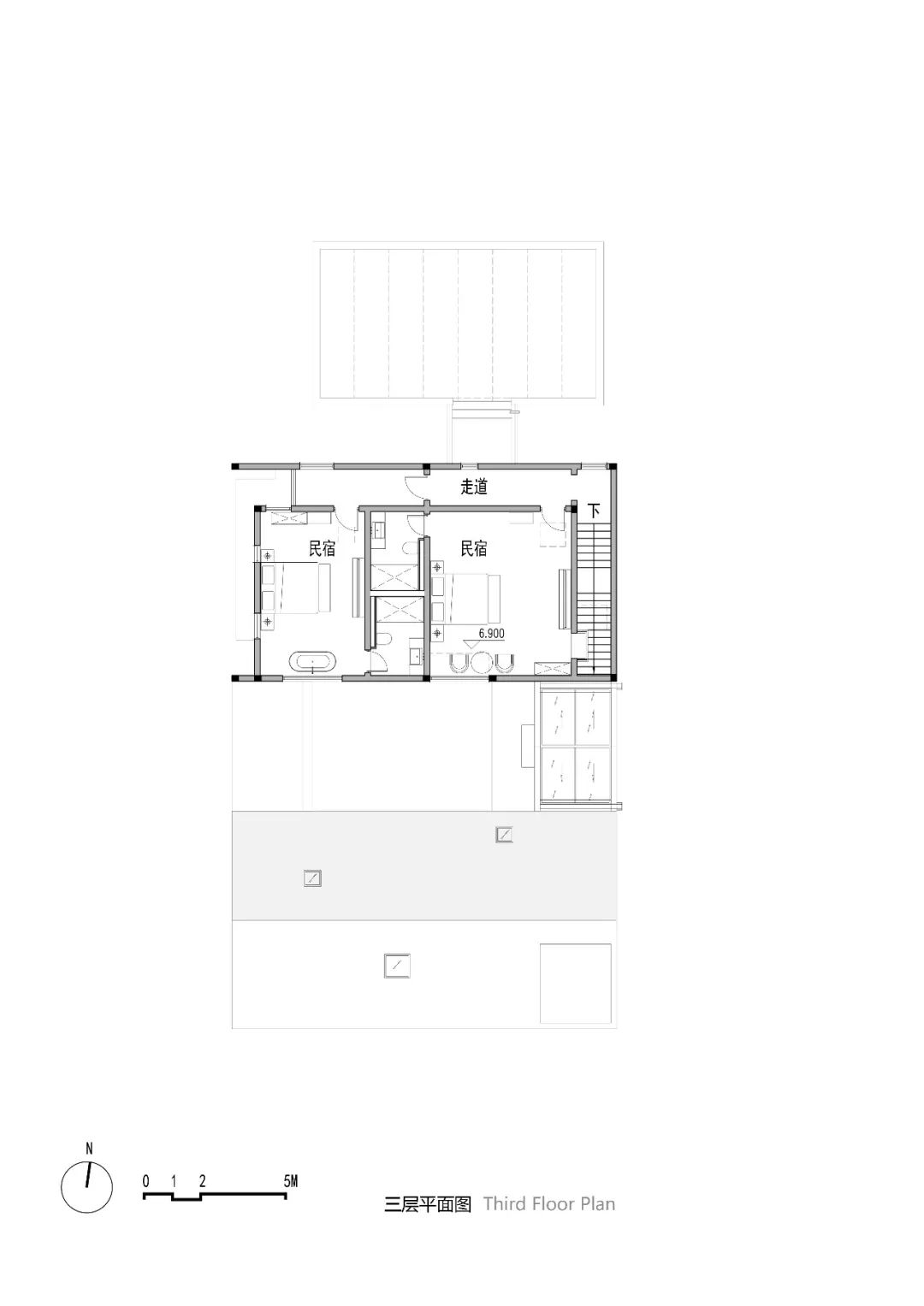
三层平面图
项目信息
ABOUT THEPROJECT
设计公司:Wutopia Lab
主持建筑师:俞挺
项目建筑师:黄河
设计团队:李子恒、庄寅霏(实习)深化公司:上海三益建筑设计有限公司
深化团队:祝宇梅、胡文晓(结构)、石佳莹、毛浡、茅娅倩、王粲、于兵、沈睿
照明顾问:张宸露、尉诗羽、陈幸如、刘雪怡
植物顾问:刘悦来、谢文婉
业主:景程文化旅游发展(苏州)有限公司
地点:江苏省苏州市吴中区横泾街道上林村西林渡 1 号
面积:556 平方米
建成时间:2021 年 10 月
材料:外墙涂料、铝单板、钢、铝塑板、火山岩、微水泥、水磨石等
摄影:CreatAR Images 视频:CreatAR Images
关于设计公司
ABOUT THE DESIGN COMPANY
Wutopia Lab
Wutopia Lab,由俞挺和闵而尼于 2013 年创立于上海,以魔幻现实主义,创造日常奇迹的全球本土化先锋建筑设计事务所。本案由 Wutopia Lab 提供,为授权稿件。POPULAR ESSAY RECOMMENDATIONS
首发 | 寓尚设计 & 泰睿软装:360m² 临江私宅,将浪漫化成流淌的旋律!
首发 | YuQiang & PP:时间造物馆
首发 | 龙湖×靳朝晖设计:邂逅优雅,浅醉勃艮第
# 投稿&商务
肥橘/莉莉/新叶/于向前/烈烈/嘎嘎
客服
消息
收藏
下载
最近




















































