查看完整案例


收藏

下载
庄周化蝶舞,梦随逍遥境。
都说大隐隐于世,而真正的凡世,却又有几何?
商场之境,亲子之所,举买之地,可得一时逍遥?
在商业方面,裸筑接到的设计命题,是在一个 10m 高的商场空间里,设计一处共享客厅。
这座商场的主题被定为“女主体验空间”。
功能:游乐地 + 商场客厅 + 亲子表演舞台 + 图书馆的 功能复合空间。
“柔”域
当曲线在三维空间组合的时候,“柔”往往更触动人心。入口楼梯的“柔”,“蝴蝶”的“柔”,曲线水磨石体量的“柔”。
原楼板边缘被“柔”化,边缘立面形成“迎”式的曲线。为“蝴蝶”空间提供了一个“看”的场所。新建的椭圆旋转楼梯连接 4-5F 的垂直交通,为整个场域提供了重要的通道及主视觉形象。
骨架曲线
这个“蝴蝶”里,我们用了 44 个钢管拱圈,按照原楼板造型,弯曲出一阵连拱,以这个场地的原垂直构筑-- 钟楼向外中心阵列。
曲率骨架的膜结构,是我们对“女性”这个词汇的象形定义。庄生晓梦迷蝴蝶,在这个语境里,蝴蝶即女性。不同色阶的灯光渲染下的膜结构,正是“女性”的“迷”与“幻“。
而在功能方面,曲线的落地钢构,有效的代替由于功能不同而理应产生的墙体隔断,柔美的空间语言被“光”与“曲线”解放。
曲线骨架所带来的向心力以及自由平面,重新定义了原本枯草的空间,形成了“女性”空间所有的场域精神。
“膜”有很好的阻热保温功能,是室内微气候的调节者。我们花了半年时间,来尝试和研究将“膜”结构置入室内空间所必要的,施工,建造顺序,节点连接,灯光配合,结构荷载等。结果令我们兴奋的是,“膜”材料所,衍生出的柔软的“肌肤感”,形成一种特殊的媒介载体。这与我们想表达“女性”的“蝴蝶魅”相得益彰。
空气,复杂的光环境穿越过“膜”,以漫反射的形式呈现,在静定的空间里随时随地带来情境内容的变化,跳跃以及臆想。自由是光,一定的透光量在膜的遮蔽下,人与光,人与人,人与影,在探索中穿梭,或者猫在角落,不同的体态组合,丰富不同的行为形式。
如果说裸筑以往的项目都是以小见大,用一个“设计点”来隐射出场域精神,那么这次我们尝试将场域转化为场所,以独立和优雅的姿态营造出一个个小的漫步空间,更注重的是人的临场感受,在场所中体验的过程。
项目名称 | 长风大悦城 —— 会员空间
项目地点 | 中国上海
完工日期 | 2018
基地面积 | 500 平方米
建筑面积 | 500 平方米
建筑及室内设计 | 主建筑师 | 柏振琦项目建筑师:盛朦萱设计团队 | 薛锦华,吴叶静,陈子酉,诸辰辰
结构工程师 | 吴传义
灯光设计 | 降昭龙(迈骏国际)施工顾问 | 张成华结庐装饰
业 主 | 中粮大悦城
ROARCHI RENEW
上海长风大悦城会员空间
图纸呈现
diagram-1
diagram-2
diagram-3
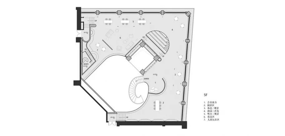
平面图
平面图
elevation-1
elevation-2
elevation-3
elevation-4
elevation-5
elevation-6
elevation-7
Gooobrand
品牌设计
供稿 /裸筑更新建筑设计事务所
客服
消息
收藏
下载
最近















































