查看完整案例


收藏

下载
西藏非物质文化遗产博物馆是由深圳市政府与万科集团出资,并由万科代建的深圳支援西藏自治区的重点项目。
项目鸟瞰
项目基地位于新开发的慈觉林文创园区,地处由拉萨河谷向南延伸形成的平缓地带,向北与拉萨老城隔河谷相望,而东西南三面,则被山体环抱。
项目区位
总平面图
我们希望这座博物馆能成为西藏新的文化地标,同时能以友善的姿态融于现有的自然环境和城市肌理之中;另一方面也能与布达拉宫、大昭寺等西藏重要的历史建筑产生文脉上的共生关系,从而形成一种跨越时空的对话。
博物馆、拉萨河谷与布达拉宫
博物馆远景
远眺拉萨河谷
西南侧视角
在拉萨这座及其特殊的城市中,自然与人文、历史与当下的种种要素相互交汇叠加,形成了我们设计的特定条件和思考原点。
远眺布达拉宫
西藏是人们心中接近天空的圣地,布达拉宫和大昭寺更是朝圣的目的地。我们以“天路”作为项目的基本设计概念,暗合了藏地的最独特的自然和文化基因。
概念草图——天路
博物馆与山脉遥相呼应
在设计之中,“天路”概念体现为三个层面:首先是物理层面的行走路径,它提取自布达拉宫之字形步道的原型,经过抽象的演绎,构成了从场地入口迂回上升进入建筑,以及在博物馆内部螺旋攀升的基本空间动线。
整体鸟瞰
场地入口视角
西侧视角
南侧视角
其次是空间叠加带来的特殊体验的路径:博物馆建筑原型从大昭寺主殿演化形成,当这种内向而稳定的空间结构和由天路概念形成的参观路径相叠加后,则在人与物理空间之间形成了非常多样化的关系,或高狭,或开阔,或幽暗,或明朗,仿佛在经历一段特殊的生命旅程。
体积生成
“天路”生成
空间体验
大堂及展厅
内院及坡道
而这种特殊的空间经验自然而然地引发了人们心理和情感层面的微妙变化,就成为“天路”的第三重意义——心路。
眺望布达拉宫
跨越时空的守望
建筑与远山
“致敬”参观者经过艰苦的攀爬,一路领略了藏地丰富的非物质文化遗产,最终达成和布达拉宫的跨越时空的对望。
这是一种对话,更是一种致敬,是向西藏伟大的自然地理和历史文化致敬,也是向每个人心中的那片圣地致敬。
不同视角中的建筑
晨光中的博物馆
局部特写
项目图纸
模型照片
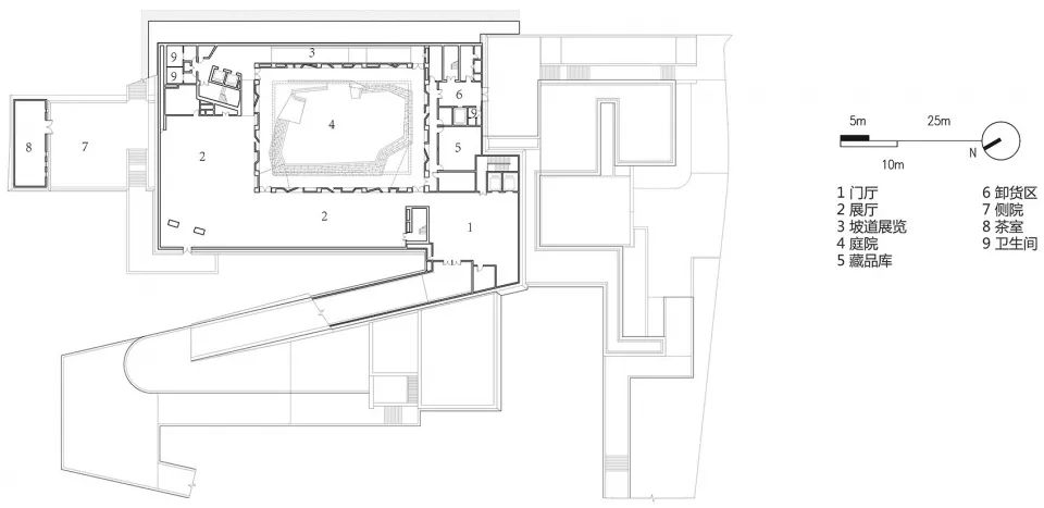
首层平面图
二层平面图
四层平面图
五层平面图
剖面图
墙身节点
地点:西藏拉萨
类型:文化/博物馆
主持建筑师:肖诚
设计团队:廖国威 朱琳 梁子毅 梁鉴源 徐牧
建筑面积:总建筑面积 6800 平方米
结构材料:钢筋混凝土,砌石,钢结构
设计时间:2016-2017 年
竣工时间:2018 年
规划及建筑设计:深圳华汇设计
施工图合作:中国建筑西南设计研究院
景观设计:朱育帆工作室
室内设计:共和设计
摄影师:姚力
▼ 网站最新 24 小时精彩项目集锦
客服
消息
收藏
下载
最近












































