查看完整案例

收藏

下载
©山兮建筑空间摄影
©山兮建筑空间摄影
©山兮建筑空间摄影
©山兮建筑空间摄影
©山兮建筑空间摄影
将空间作为砌块。我们将档案馆建筑的功能空间进行解构、分类与重组;并进一步将其或公共、或私密、或开放、或封闭的属性外化,形成大小不等、虚实相异的“空间砌块”,有序地砌筑在恰当的位置上。
©山兮建筑空间摄影
©山兮建筑空间摄影
©山兮建筑空间摄影
筑城的历史,我们也希望在这座建筑上可以被直观地阅读到。为此,我们选择了当代城市建设活动中,最具代表性的建筑材质:混凝土、石材、面砖、玻璃、金属板等;将其随机错落地附着在“砌块”表面,造成某种无序杂乱感;如实地展示出城市当下的状态。
立面分析
©山兮建筑空间摄影
©山兮建筑空间摄影
©山兮建筑空间摄影
我们从天一阁收藏的古铭文砖中得到启发,将宁波城历史各时期的行政名称,以篆书转译的方式,压印在“砌块”上,形成隐晦却又可读的纹饰系统。此外,为了增加玻璃砌块的质感,营造朦胧的内部光影效果,我们选取《考工记》中最早关于城市建设和《园冶》中关于园林营造的文字段落,以活字排版的方式,镜像印刷在建筑底层与空中的两片玻璃幕墙上。玻璃材料因此变成一种可以被解读的肌理,提示着建筑的功能与文化属性。
立面分析
©山兮建筑空间摄影
©行知影像
©小流影像
为了实现结构的“砌筑”,我们将整建筑的混凝土结构进行模块化切割,三层以上的结构构件,包括梁、楼板、柱、楼梯等,全部采用预制装配式施工。
©山兮建筑空间摄影
©山兮建筑空间摄影
©山兮建筑空间摄影
©山兮建筑空间摄影
©山兮建筑空间摄影混凝土构件在工厂预制并养护完成后,到现场只需要做相对简单的浇筑连接。施工的精度得到提高,施工的周期大幅度减小。本项目也因此成为宁波地区公共建筑施工技术领域的一大突破。
砌块分类
©山兮建筑空间摄影
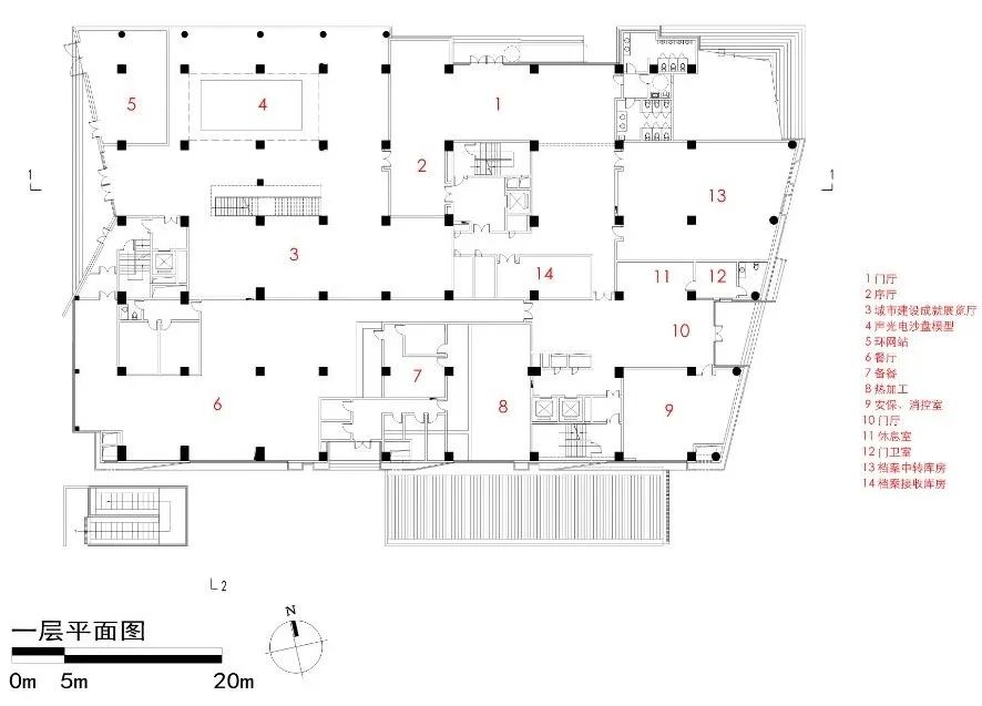
一层平面图
二层平面图
三层平面图
五层平面图
立面图
立面图
立面图
立面图
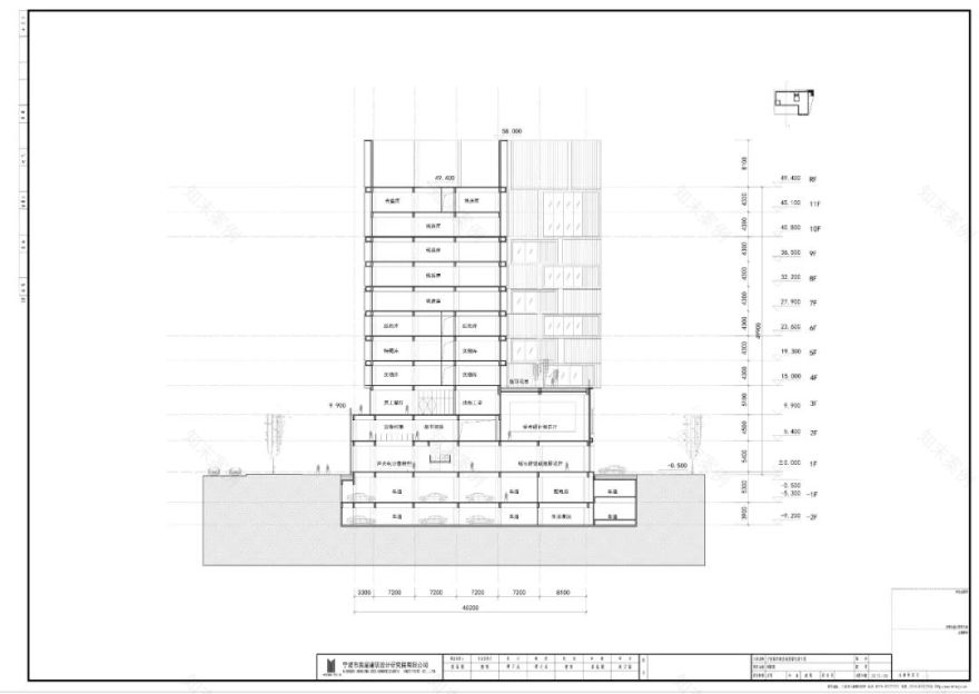
剖面图
剖面图
功能分区
项目信息:建筑师:DC 国际·c+d 设计研究中心
地址:百丈东路 2500 号,鄞州区,宁波市,中国
项目年份:2020
建筑面积:23688㎡
主创建筑师:董屹
设计团队:董屹,贺玮玮,章甲,张春伟,汤洁
委托方:宁波城市建设档案馆
摄影师:山兮建筑空间摄影,行知影像,小流影像
客服
消息
收藏
下载
最近




































