查看完整案例

收藏

下载

翻译
Architects:DC Alliance
Area :48522 m²
Year :2020
Photographs :Xunmei Media
Lead Architect :Zhe Cui
Design Team : Zhe Cui, Mingqi Li, Yiwei Huang, Hai Geng
Client : JOYSON HOLDING
City : Shanghai
Country : China
The project is located in Xinzhuang Industrial Zone, Minhang, Shanghai. The owner, Joyson Group, as a company with a German background, chose to build its office headquarters in Shanghai on the main axis of the headquarters economic group in order to highlight the corporate culture. This requires us to build a highly recognized building with a concise and dignified architectural image under the building height limits (less than 60 meters).
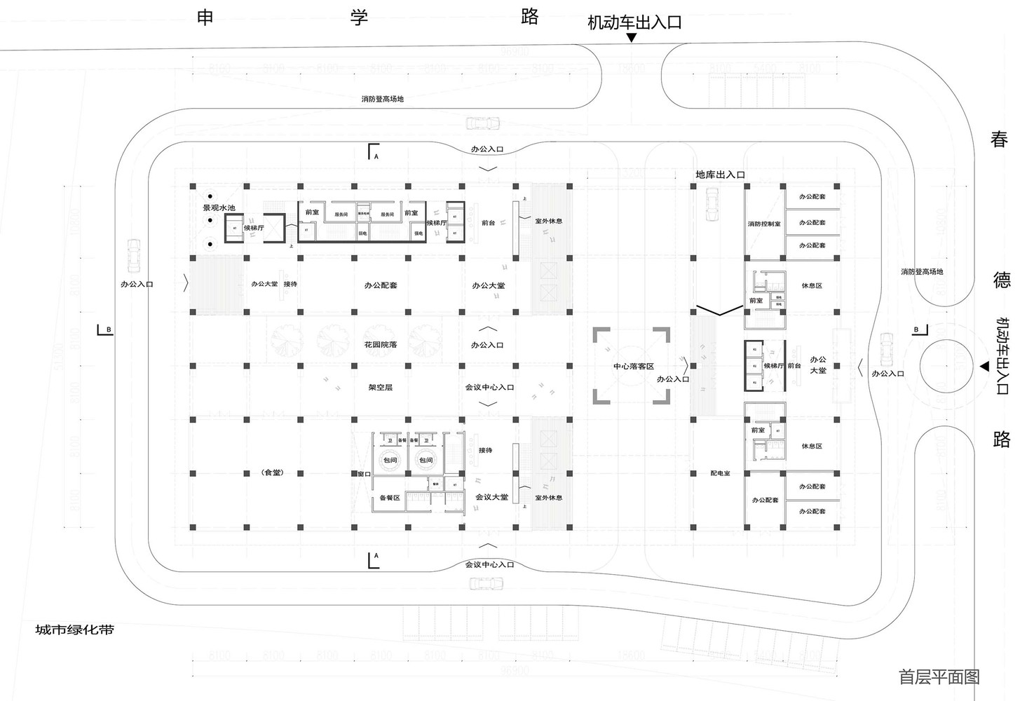
We set the functions with open attributes in the podium building area and the office area with high independence needs in the tower part. The first floor is mainly composed of elevated gray space and entrance space. Large spaces are arranged for conference areas and staff dining areas, on the second and third floors; On the fourth and fifth floors, relatively private guest room areas are arranged; While, on the sixth to fourteenth-floor tower areas, It is an office space where employees can stroll on the terrace and experience efficient and comfortable research and development environment.
In terms of space arrangements, we hope to set up corresponding spatial experiences for different functions. Large-scale elevated space is on the first floor, and the drop-off area was arranged around the central courtyard landscape; the podium building area forms a staggered roof terrace through the penetration of the mass; each floor of the tower area sets with a horizontal corridor platform to provide an interactive place for employees to rest and communicate.
When it comes to landscape, through three-dimensional greening, planting roofs, and courtyard greening, we immerse R & D park with nature to form a green and healthy R&D space so as to create an ecologically compound office building.
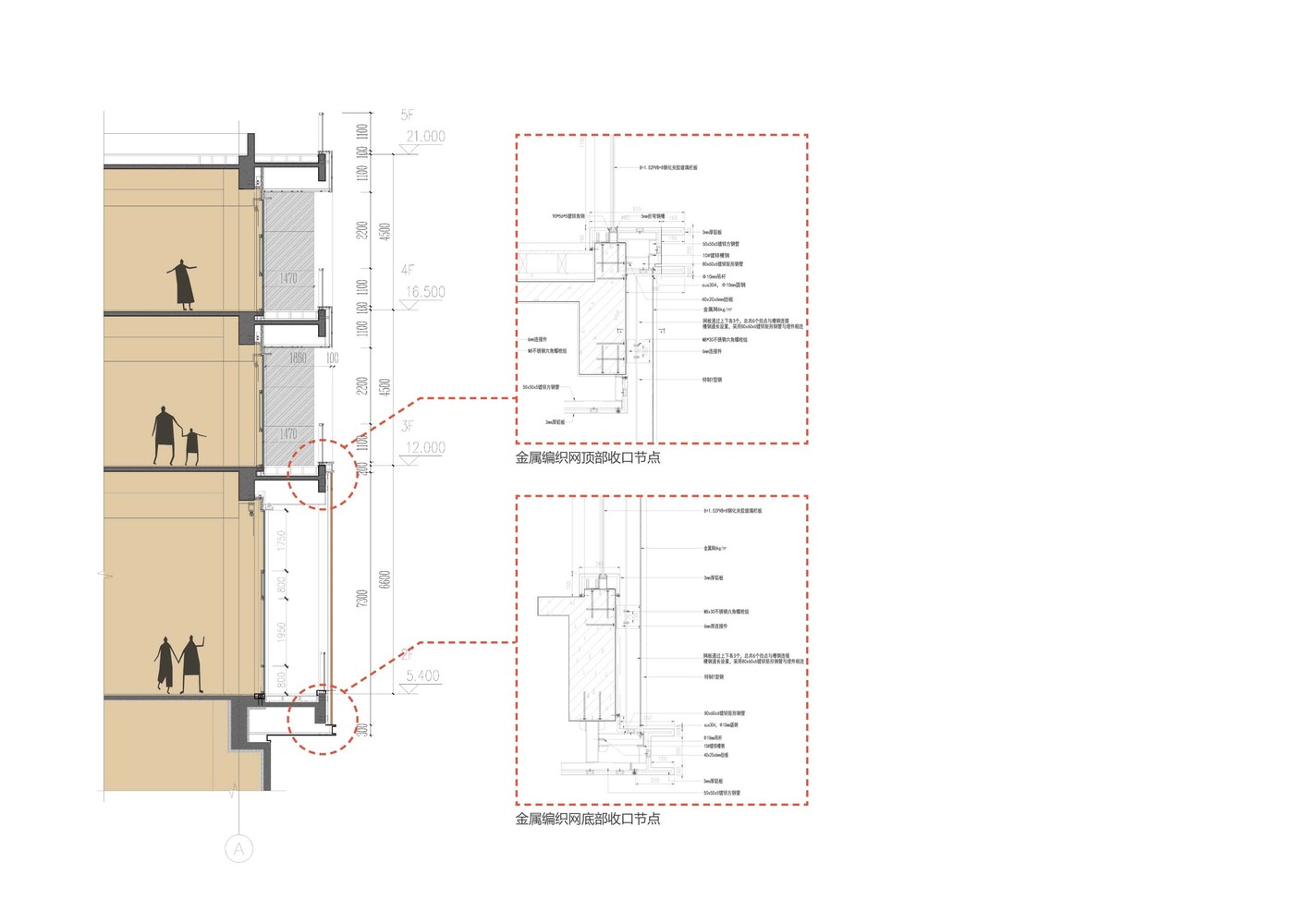
This case highlights horizontal lines to demonstrate its calm and elegance. The elevated ground floor is mainly colonnade and glass, which emphasizes the sense of transparency; the public podium area uses white metal mesh material to deliver a hazy and light visual experience, which increases the leisure and comfort of the area; the double tower area emphasizes the efficiency of the office, with light colors aluminum plate material to create stiff and bright horizontal lines. As a result, the whole building presents a concise, pure, sophisticated, and elegant architectural image.
After the project is completed, we hope that it will not only meet the material needs of users' office research and development, but also provide an open, inclusive, interactive, and innovative spiritual place for people who work here.
▼项目更多图片
客服
消息
收藏
下载
最近



































