查看完整案例


收藏

下载
©Tatsuya Tabii
位于广岛县东广岛市黑濑町。
该项目是对自1898年以来一直经营的金光酒厂的直销处进行改造。
当我第一次看到清酒酿造厂的大墙时,这个从国道上可以看到的注册有形文化财产,我觉得我仿佛看到了清酒酿造历史的一个层层叠叠。
Tatsuya Tabii
Tatsuya Tabii
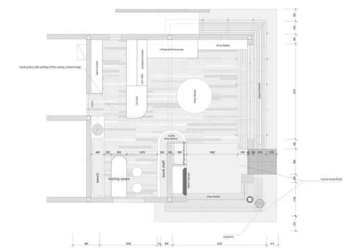
▲平面图
Tatsuya Tabii
碳化雪松的镶板,石膏,和红砖屋顶,这是小镇的一些特征。随着这三种材料的重叠,在它们之间的边界出现了两条线。通过长期保存和积累传统,创造了一条美丽的水平线。对于相邻的直销店,在牢记从清酒酿造厂引出的水平线的同时,创造了一条新的线,其中一部分建筑有机地上升了。
Tatsuya Tabii
现有建筑的屋檐略微突出,在向下的方向变得更加丰满,以创造一条新的线条。由于日本酒据说最早是为神灵制作的,所以我们用石膏来创造一个让人联想到神社或佛教寺庙的空间。通过提高入口处的线,也就是这个空间的起点,我希望它能成为所有参观者的起点,为酒厂的传统和历史增添新的一页。
Tatsuya Tabii
另一条线以入口为中心,将其功能分为左右两边。在入口的右侧,有一个L型的长椅,其功能与长廊相同,这是基于对明治初期一家酒类商店的参考,该商店有一个直接与街道相邻的长廊。在入口处的左侧,窗台被手工磨碎,原本要丢弃的玻璃酒瓶被粉碎、混合和磨碎,这样,现代的玻璃技术就像化石一样被封存在历史的地层里。
Tatsuya Tabii
▲立面图
在室内空间,不同的材料被用来形成一个有机的R线,表达了透明液体中无形的生命活力,当我看到发酵罐中的气泡重叠和繁殖时,我感受到了这种活力。酿酒厂使用的材料,如烟囱的砖头、toji(首席酿酒师)穿的靛青色围裙、铜板和玳瑁色金属网,都是酿酒厂自然使用的材料,但被转换为不同的用途。
▲立面图
在被田野包围的平静的水平线中产生了一个小的 “凸起”。我相信这反映了东家希望继续挑战新的远景,同时保留流传下来的悠久历史的愿望。我希望这些感受能像涟漪一样从新产生的隆起处扩散开来,像天线一样。
Tatsuya Tabii
Tatsuya Tabii
Tatsuya Tabii
Tatsuya Tabii
Tatsuya Tabii
Tatsuya Tabii
Tatsuya Tabii
Tatsuya Tabii
Tatsuya Tabii
Tatsuya Tabii
Tatsuya Tabii
Tatsuya Tabii
Tatsuya Tabii
项目信息
建筑师:FATHOM
面积:32 m²
年份:2021年
照片:Tatsuya Tabii
制造商:Clever, Karimoku New Standard, Tile life
设计:Hiroyuki Nakamoto
标识和标志设计:Akira Kubo, Guide
绿色展示:Kenzaburou Ooshio, Green Union
钢结构工程:KAMO CRAFT, Susumu Murata, Kamo Craft
建筑师:FATHOM
城市:Higashihiroshima
国家:日本
客服
消息
收藏
下载
最近

























