查看完整案例


收藏

下载
【项目名称】:一筴米粉
【项目地址】:中国·上海 嘉定
【建筑面积】:60㎡
【设计单位】:象蝶设计
【设计团队】:杨韬,蒋蒋
【 完成年份】:2020.10
【摄影版权】:Kevin
【创意阐述】
介入小型餐饮商业项目时,在满足合理的用餐位,翻台率,私人业主的个人喜好,投资成本控制这些问题之外,如何去寻找另外的设计出发点,如何从一个商业命题的本质去呈现一种简单的状态,是这次项目设计的初衷。
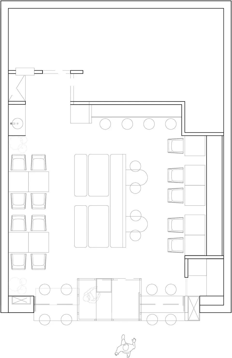
【设计图纸】
【空间简述】
原建筑场地是一个60平方米的商铺,入户的层高只有2.3米,而且是单面的采光,室内光线很弱,感官上比较压抑。这样的建筑结构显然是缺乏张力的。
▼前台,仓库,用餐功能的组合,形成的外立面
▼入口顶面使用镜面增加空间的纵向层次 ©Kevin
从理性角度分析:对于餐饮商业项目,主题性,商业性,功能性,体验性,依赖于建筑结构内部空间的划分或者是重新解构重组。随之而来也会有很多更加实际的问题,建筑结构的整改,灯光的运用,功能的分配等等。
从主观感性的设计维度出发:直觉的反应是米粉的晶莹剔透的干净的状态,思考项目的商业性和主题性能否就可以从这种状态里去延伸,带着这些问题去思考,首先想到的是材质,别的项目上我们是在材料加一层一层的工艺,就好像给材料穿上一层一层的衣服,然而如果我们反过来想,如果不需要这种“coating”,就是用一种直接的,简单的状态呢,最后选用不锈钢钢丝网作为吊顶的材料,材料的反射会在白天引入光线到室内,随着光线的变化,材料本身渗透着一种变化,呈现出一个透亮的顶面;
▼点状墙面增加视觉层次
▼自然光线引入室内,使不锈钢网顶面呈现光感
▼色块区分高桌用餐区和主要用餐区
其次空间的进门的层高不高,我们将前台和储物系统布置在了空间的最前端,在横向上两种功能形式的组合自然而然形成了有“体积感”的门面;
移窗和玻璃隔断拓展了视线的纵深感;
进门区域的镜面反射的顶面,削弱层高不足带来的压迫感。
▼插画师绘制的地图寓意迎接各地而来的顾客
▼洗手区域
▼现场制作的台盆
▼前台花灯,灵感来自米粉的外形
▼户外空间
时
系删除
:
---------------------------------
在变好
看
客服
消息
收藏
下载
最近

















