查看完整案例


收藏

下载
【项目名称】:酩悦海鲜餐厅【项目地址】:中国·浙江 嘉兴 桐乡【项目面积】:600㎡【设计公司】:象蝶设计【设计团队】:杨韬、蒋蒋【插画设计】:ZAMI【项目主材】:水磨石 不锈钢 钢板 大理石 玻璃砖 岩板 微水泥【空间摄影】:谭啸、康超凡
【创意阐述】项目位于浙江桐乡,原建筑餐厅包厢位置有很好的视野和景观,业主希望尽量保持原先包厢位置,后勤办公位置和户外绿化的前提下,进行室内改造升级。捏土造器,器的本质不在是土,而在它中产生了“无”的空间。空间的围是这次设计的出发点。从单体空间特征着手,空间可以是规则或者不规则,空间表情是硬朗或是柔软,单体和单体之间形成共存。【设计图纸】▼手绘概念
▼轴测图
▼模型平面图
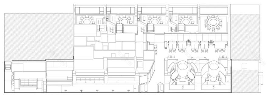
▼剖面透视图
▼餐桌细部图纸
【空间简述】在满足业主的需求下,通过纤薄的黑色钢板结构制造出多一层的交通空间,提供餐厅独立的行政动线。钢板上开出的洞口,增加韵律感。行政通道和规则的长方形用餐大厅之间,置入两个类似圆形的空间区域,表皮均为灰色的水磨石,弧形墙面阳角在不规则角度的情况下显得纤细,和本身石材的厚重感形成对比。
▼纤细的墙体阳角,拉开空间层次
▼黑色通道
▼圆形用餐区
圆形和方形空间连接
▼半开放式用餐区
▼室内一角&弧形墙细部
▼配合空间设计的椭圆桌&家具与墙的体块感
通过用餐大厅,包厢过道由一面不规则弧形墙和备餐台面的体块所组成,包厢入口故意内退一些,留出缓冲的空间,空间的节奏也由此产生。
▼红色的空间构成
▼用餐区
▼现场制作的调料台及餐桌
▼黑色体块下的卡座
▼边几细部
空间的感受,除了围合,设计上对光线和视线进行控制。
空间中加入的黑钢的行政通道,故意遮蔽掉了一些自然光线,希望通过暗色的调性来烘托空间的氛围;
而包厢外原本幽暗的走道,则选用了玻璃砖,让户外的景观和光线穿过包厢,隐约的穿透进来。
▼走廊&包厢入口
▼走廊看向包厢
▼私宴包厢1
▼私宴包厢2
▼私宴包厢3
▼竖向肌理增加空间层次&备餐柜细部
趣味和空间的结合,来自于二维的平面插画设计,类似于在白纸上画画,但是介质有所不同,入口处屏幕上的黑色海洋,过道发光幕上的鱼,呈现视觉上的不同感官,同时点明餐厅的主题。
▼带有等候的点单区
▼走道上的鱼&边几上的石材
▼包厢装饰
时系删除
看更多餐饮空间资讯!
在变好看
客服
消息
收藏
下载
最近
































