查看完整案例

收藏

下载
©Takumi Ota
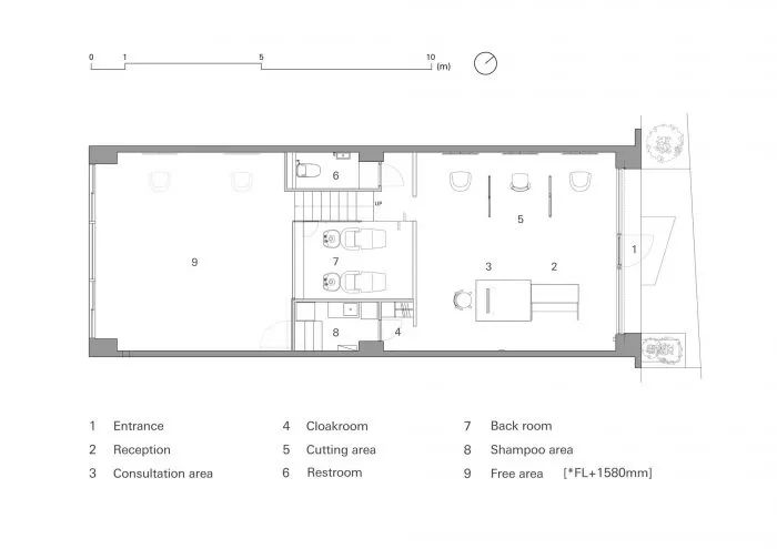
北面的入口面向一条主干道,具有一个宽阔的、开放的空间,天花板很高。沙龙的南端有一个夹层,高出主楼1580毫米。从高高的窗户可以看到镂空的天空景色。我们设计的这个沙龙充分利用了这个空间,它从北到南占据了整个建筑的长度。
Takumi Ota
Takumi Ota
▲平面图
Takumi Ota
Takumi Ota
Takumi Ota
再往里走,洗发区被安置在木板墙和夹层之间,它们的高度是一样的。山谷成为一个平静和安宁的空间。洗发区的两边是休息室和里屋,都是方方正正的封闭式空间。这种布置保留了该地点南北向的开放流线,这是它的决定性特征之一。
Takumi Ota
沙龙后面的夹层作为工作室空间,用于拍摄沙龙的发型设计。它也可以成为一个画廊。信使线允许未来扩展沙龙的功能空间。我们在设计沙龙的标志和柜台时,考虑到夹层的阶梯/水平,这是一个具有积极内涵的主题。
Takumi Ota
Takumi Ota
Takumi Ota
Takumi Ota
Takumi Ota
沙龙的名字 “笑声 “反映了业主的理想,即让沙龙成为一个能产生微笑和欢乐的地方。恰如其分的是,该沙龙自开业以来一直忙于接待客户。
Takumi Ota
Takumi Ota
Takumi Ota
Takumi Ota
Takumi Ota
Takumi Ota
Takumi Ota
Takumi Ota
Takumi Ota
Takumi Ota
Takumi Ota
Takumi Ota
Takumi Ota
Takumi Ota
项目信息
建筑师:SIDES CORE
面积:89 m²
年份:2021年
照片:Takumi Ota
制造商:Daiko
照明设计:DAIKO, Yoriaki Kokubu, DAIKO
空间设计:Sohei Arao
城市:品川市
国家:日本
客服
消息
收藏
下载
最近





























