查看完整案例


收藏

下载
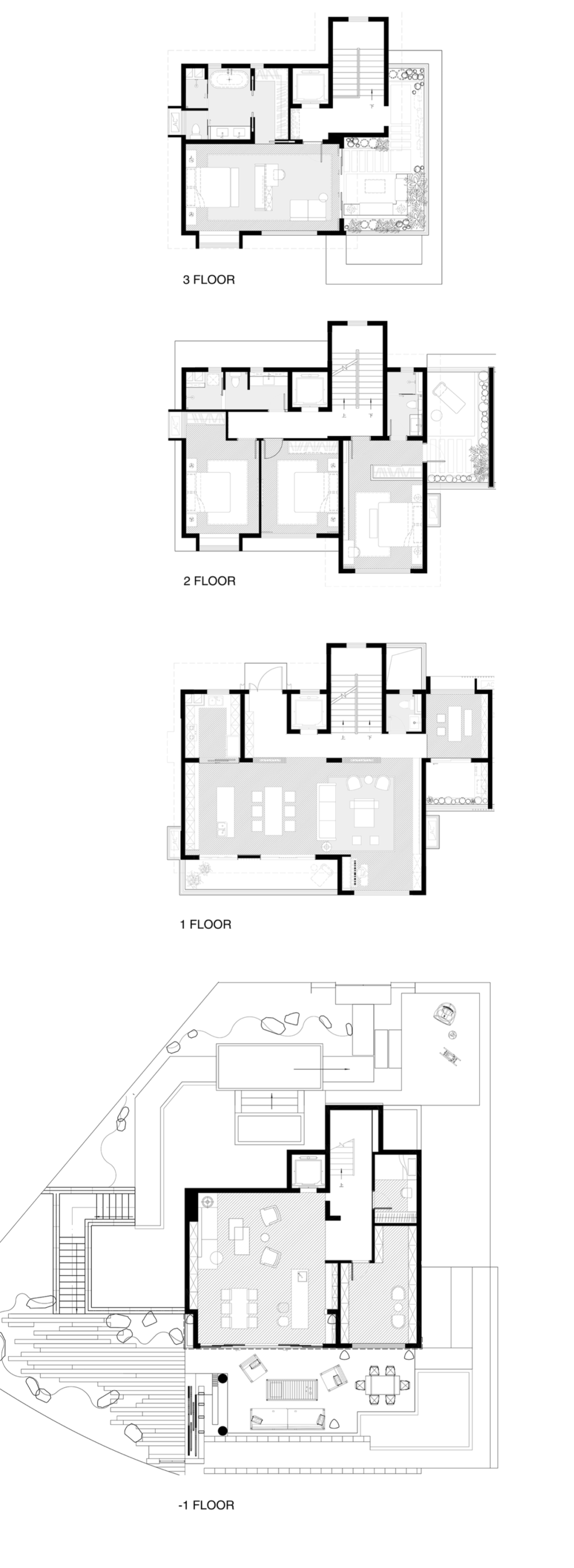
E 户型 323m²
项目名称|佛山美的山水半岛庄园别墅 E 户型
设计单位|广州共生形态工程设计有限公司
设计总监|彭征
设计管理|张博
方案设计|曾庆豪 参与设计|高颖颖
深化设计|朱国光、梁健宗 项目后期|朱云锋、朱文烽
项目业主|佛山市三水云东海花园房地产开发有限公司
业主代表|乐镇、廖锦周、张陶然、龚卓
平面图
现代气息下的东方气韵浓缩为特殊的视角,以充满质感的表达方式重塑空间。破题的时候,设计师希望多一些角度和方法。项目所在地“武术之城“与”陶瓷之都”的文化背景下,现代空间的几何化表现略显生硬,仿佛一段故事,总少了点因缘。
以现代性为基础的平面布局让空间呈现简单凝炼的基调,而古典的表达又让细节可堪赏玩。
客厅中玻璃的轻盈与石材的厚重形成主要的视觉对撞,粗糙与光滑之间揉合了传统园林中关于“石壁“与“瀑布”的直觉与想象。
△客厅
△餐厅
△地下室
卧室空间的布局动线流畅舒适,房间部分顶面的处理引入了自然光。
△主卧
△次卧
所有关于家的塑造,都应该有与之相关的情感和语境。
△次卧
古典与现代,即便再提炼,初心仍见。要知道,有关于建筑与生活的终极问题,永远蕴藏在小小的住宅空间里。
△建筑外观
C 户型
项目名称:美的山水半岛庄园别墅 C 户型
设计单位:广州共生形态工程设计有限公司
设计总监:彭征
主案设计:张博
参与设计:刘月儿、陈嘉谊
深化设计:朱国光、李露
项目后期:李永华、朱云锋、朱文烽
项目业主:佛山市三水云东海花园房地产开发有限公司
业主代表:乐镇、廖锦周、张陶然、龚卓
▽平面图
作为美的山水半岛庄园的样板房之一,站在在地元素深厚的文化上眺望,设计者通过对东方美学特征独有的呈现,将自然的人居概念延伸至生活深处。空间向家宅的梦想者开放,在此氛围之中,对生活与自然的记忆和想象相互交融,打开了家宅空间的核心价值和诗意深度。
△ 客厅
客餐厅合一的布局提供了最开敞的景观观赏面。室内与室外,大面积的木质温和呈现于空间中,不动声色地调节着情感,如诗般充满隐喻,同时也塑造着场所的时间维度。
△ 餐厅
二层练习室位于两个卧室之间,却聚集了“居之气韵”,形成一个开放、交流、灵活互动的空间。
△ 练习室
近旁的楼梯被木质墙板包裹,简洁朴素却暗藏十足匠心。梯级转角的低位开了一扇小窗,虽不在说茶,却有日式茶室的意蕴,柔和的光线和墙面的触感加入,结合自然采光和阴翳,将东方文化的美学娓娓道来。
△ 楼梯
主卧床头背景结合开窗形成了极具特色的娴静光影。背景窗的开合留下一线缝隙,轻而易举点燃了整个空间的情感,内里却充满了随性、温暖、活泼的意趣。
△ 主卧
△客卧
△客卧
负一层的茶室和户外院落的景观被塑造为一体,“门”在此并非一种建构要素,而是一道“屏风”。
作为风格鲜明的样板房,我们不想带着一种权威的语调去贩售美学观点、生活方式,而是希望能够创作出一些可以与生活相连接,与心灵相契的东西。
△茶室
△户外 / Outdoor
客服
消息
收藏
下载
最近









































































































