查看完整案例


收藏

下载
引言 Preface
村落向社区的转变已经成为一种必然,这是城市化与现代化发展不可逆的结果。新型的社群形态既承载着对传统村落文化的眷恋与期盼,又寄托了现代化的物质与精神基础。如何对抗乡村集体“失忆”,成为了每一个乡村改建项目的核心。
本案是位于广州城区东郊的火村旧改开发项目,此地原属广州市白云区萝岗镇,后随着广州市“东进”战略,于 2003 年划入广州经济技术开发区。
设计将当地文化、休闲社交、阅读品茗、运动健身等功能有机融合于一体的同时,还以集体记忆的提炼为设计思路,将社群的日常活动与当地的文化记忆勾连在一起,延续地域文化与个体生活之间关联。
01 飞花
白雪却嫌春色晚
故穿庭树作飞花
△传统村落屋檐(图源摄图网)原始的形体是最美的,因为它们使我们能够从中清晰地辨认出自己。
在大厅的设计中,我们从传统叠瓦成檐、檐上飞花的传统景观当中提炼出记忆的符号。通过结构性的设计和造型美学的把握,呈现出独特的文化呼应,从进入空间的第一时间便唤起人们对于地域传统的认同感与归属感。
△1F | 接待前厅
楼梯采用一内一外两种雾化金属拼贴,强化着空间的引导性与结构张力。
在外形上,通过流畅的旋转弧线,柔化着接待前厅硬朗的框型结构,给空间增加了一种古典的律动,并以静的姿态,启迪着动态的无限想象。
△1F | 旋转楼梯
02松色石激水流处天寒松色间清石灵韵,古树婆娑。在室内造景,从传统的文人书画中寻找乡野天地之间的集体记忆。于走道的尽头制造一个凝视的焦点,让“观”成为一种结构性的观看,带有文化的预设。
△元素提炼
△1F | 书吧
城市发展正在急速扩张,“物质化”不再成为唯一的发展标准。人们对于千篇一律的现代都市开始感到乏味,期待着重新建造一片连接自我与精神情感的“花园”。设计通过流线引导感受不同空间内在氛围,在有限的空间内构建起多重情境。
空间总体上呈对称式结构,各区域之间可以相互开敞,形成完整而流畅的延续空间。运用深浅两种石材营造传统水墨画中虚实浓淡的视觉感知意境,呈现出一种儒雅式的静谧。而工艺玻璃与雾化金属的应用,则给空间平添了几分现代美学氛围与轻奢品质感。
松石绿,作为软装的主色调,既来自原始自然之中,又来自文人山水之间。因其相对较低的饱和度,给人以松弛与沉稳的感受。也因其特有的中性气质与尺度感,舒展着空间的情绪与氛围,引导着空间中人与人之间的互动交流。
△1F | 洽谈区
03 芳草
未洗染尘缨 归来芳草平
所有的空间最终都要面对时间,接受时间的洗礼与岁月的沉淀。保持空间自我成长的可能性,是空间赢得时间尊重的重要因素。
△2F | 接待前厅
本案从历史文化的根基溯源,却始终面向当下与未来,满足当代社会人对于自我个体的发展与探索,为来来积蓄发展的能量。
△2F | 洽谈区
坚持运动并保持健康,是每一个生命个体对抗时间、拥抱未来的关键。不仅如此,运动也已经成为现代高品质生活的重要组成部分,其所代表的不断自我探索与超越,已经成为了现代都市群体对健康生活之美的重要参考标准。
△ 瑜伽室&健身房
在健身区的设计中,大面积的自然采光配合各区域不同健身主题的背景墙,再辅以顶部线条的运用,营造出一种缓缓流动的秩序感,在简单的符号语言之间,讲述空间的精神与状态。
△ 儿童舞蹈室
在本案中,设计师专注于空间气韵与当地文化之间的关系,在一形一构之间审慎得进行象征性表达。呼应当地历史文化的朴厚与雅致,唤醒当地的人文记忆与活力,并以润物无声的方式融入当代日常生活,构建令人期待的美好未来。
△ 建筑外观
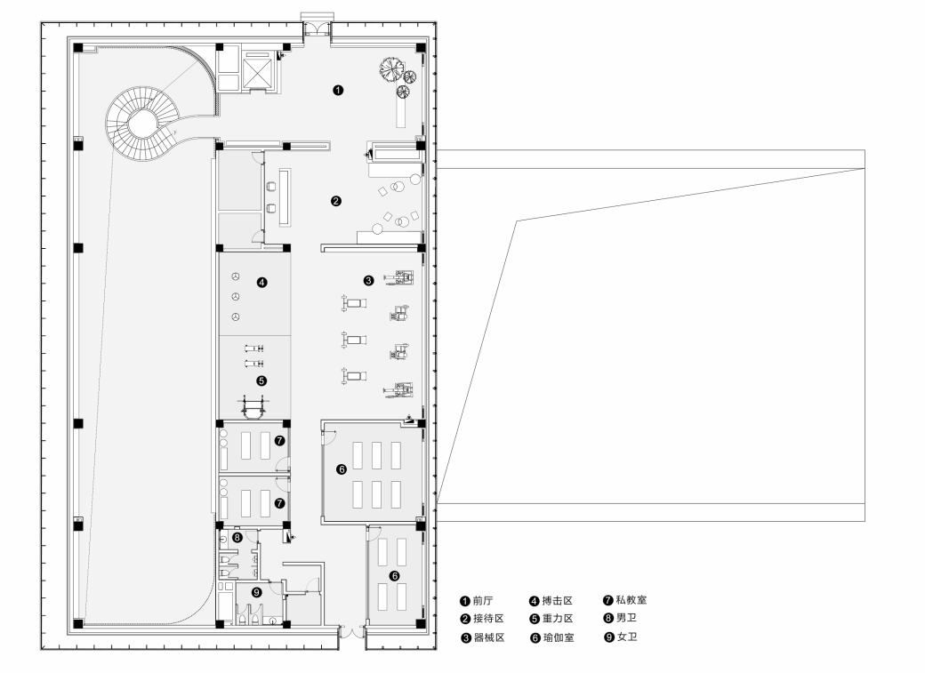
△ 平面图
1F
2F
项目信息
项目名称:广州合生黄埔中央城
设计单位:广州共生形态工程设计有限公司
设计内容:室内设计、软装设计及软装工程
设计总监:彭征
主案设计:张博、陈泳夏
参与设计:练金威、沈泽珍
深化设计:朱国光、梁健宗
项目后期:朱云锋、黄壕俊
项目业主:广州宏祥房地产有限公司
业主代表:甘剑雄、陶波、李跃、周凌、李长航
项目地点:广东 广州
设计时间:2020.7
竣工时间:2021.10
设计面积:2052㎡
如您需要设计
设计首发
更多精品案例
神州半岛天悦湾 | LSD 新作
西班牙极简主义的温和宁静 | Balzar Arquitectos
建筑 | 室内|| 设计|| 艺术
客服
消息
收藏
下载
最近





















































