查看完整案例


收藏

下载
该项目位于福冈市的一条主街,是为活动组织者们设计的白色方盒子空间。设计师的任务是打造一个多功能的展示店铺和出租空间,同时还可用于举办私人活动。设计的重点是提供一个足够舒适的空间,既要能够完全打开形成一个整体,又要能够被划分为几个不同的部分。
A project in Fukuoka city, to create a white cube space for event organizers in a building located along one of the citie‘s main streets. Our mission was to design a multi-functional place to be used as a gallery store / rental space, and also to host self organized events. The main task was to design a flexible space that can be used as one fully opened space, or divided into several sections.
▼空间概览,overview
▼窗户朝向街道的特征得到了保留,the overall original characteristics such as the openings towards the streets were maintained
▼必要时空间可完全打开形成一个整体的活动空间, when needed, the space can be fully opened as a large event venue
设计师为此打造了一个滑动系统,使三面白色的隔墙沿着一条“L”形的轨道移动。通过这些隔墙,空间可以被划分和布置为各种各样的场景。空间整体的原有特征(如窗户朝向街道)得到了保留,固定装置和设备等均达到了最简化的程度。设计师希望该空间能够在福冈市成为一处新文化的发源地。
As a result we created a system where three large white walls move across the space along a “L” shaped rail. By maneuvering the walls, various scenes can be created by the zoning and placement. The overall original characteristics such as the openings towards the streets were maintained, and fixtures / equipments were kept to its minimum. We are looking forward for this place to function as a hub to nourish new cultural scenes in Fukuoka city.
▼滑动墙系统可将空间划分为几个不同的部分,the wall system can divide the space into several sections
▼灵活的墙壁可实现各种不同的场景,various scenes can be created by the zoning and placement
▼三面白色的隔墙沿着“L”形的轨道移动, three large white walls move across the space along a “L” shaped rail
▼轨道细部,details of the rail
▼空间入口,entrance
▼大门细部,detail of the entrance door
▼交通空间,circulation
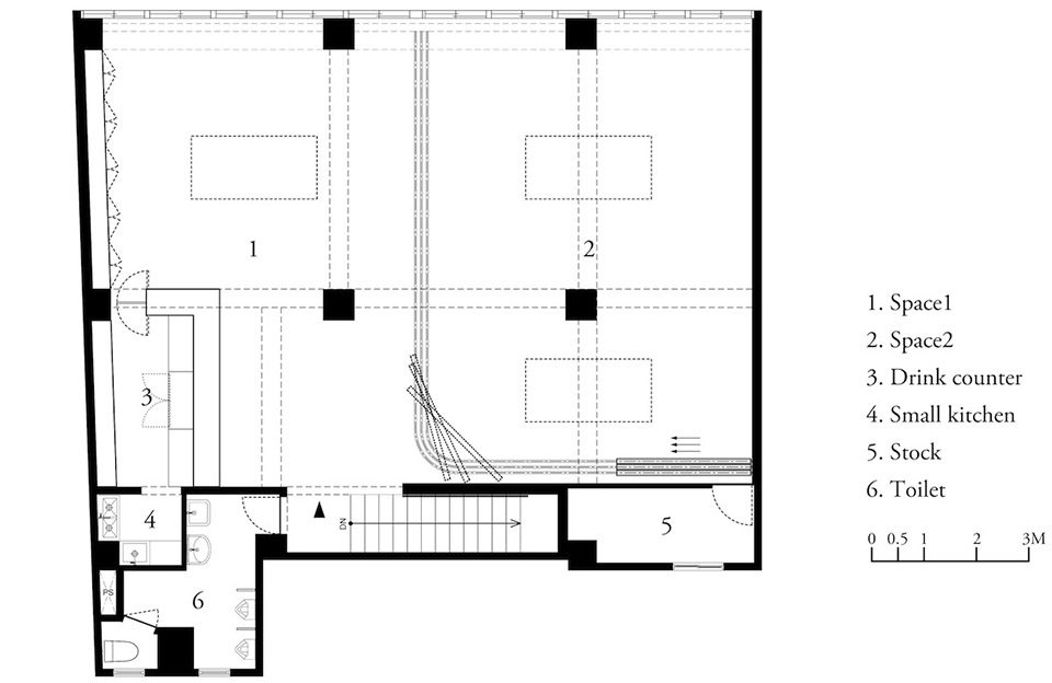
▼平面图,plan
Project name: UNION SODA (Fukuoka, 2017)
Client: SOUTHBOUND Co., Ltd.
Type of Project: Interior
Use: Rental space for exhibitions / promotions / events / galleries
Period: Dec 2016 – Feb 2017
Floor Area: 115.7m2
Location: Fukuoka, Japan
Design: Koichi Futatusmata, Yuki Onita (CASE-REAL)
Construction: Jikuu-kenchiku-koubou
Logo Design: Osamu Ohashi (thumb M)
Neonsign: KYNE & MAVERICK
Photo: Hiroshi Mizusaki
客服
消息
收藏
下载
最近



















