查看完整案例


收藏

下载
自20世纪80年代以来,毗邻港澳的南方城市珠海从一个小渔村发展成为中国最负盛名的度假胜地之一。珠海依山傍海,岛屿、海湾星罗棋布,吸引了国内外众多游客。同时,珠海在上世纪80年代就成为中国最早的自由贸易区之一,持续保持着经济高速发展。2009年,gmp·冯·格康,玛格及合伙人建筑师事务所赢得了珠海博物馆的设计竞赛,这座文化场馆将珠海的滨海文化历史与城市结构发展结合一体,将极大地丰富珠海市的文化生活资源。
▼项目外观,external view of the project ©CreatAR_Images
Since the 1980s, the southern Chinese city of Zhuhai, near Macao and Hong Kong, has developed from a fishing village into one of the most favored holiday destinations in China. The touristic success of Zhuhai is based on its location directly at the sea with its numerous islands and bays, and an impressive mountain range in the background. At the same time, the city which in the 1980s was declared one of the first free trade zones of China generates strong economic growth. These two aspects, the history of the city with its culture and maritime connection, and its urban development, are represented in the Zhuhai Museum. The intention is for the culture building, designed by architects von Gerkan, Marg and Partners (gmp), to extend and firmly anchor cultural facilities in the city.
▼项目鸟瞰,aerial view of the project©CreatAR_Images
这座新建成的城市博物馆位于珠海海滨,背山临水,毗邻郁郁葱葱的城市绿地公园,与珠海大剧院隔海相望。新两馆建筑,即博物馆和规划展览馆,与大剧院一起构成珠海市北侧的入口地标。
Located on Zhuhai’s coastal road, the new museum benefits from the proximity of the water as well as the mountains and a park in the background, whilst also being close to the opera house. Both buildings, the museum/exhibition complex and the opera house, represent a new statement for the entrance to Zhuhai city for travelers coming from the north.
▼博物馆毗邻城市绿地公园,museumadjacentto the city park©CreatAR_Images
▼博物馆前的景观,landscape in front of the museum©CreatAR_Images
博物馆的设计基于矩形的基本几何造型,整体建筑由两块体量组成,一个竖直向上,一个水平延展,共同打造出极具雕塑感的外观。这种极富张力的二元性既诠释了山脉与海岸之间的地理关系,又体现了博物馆的布展设置:在博物馆里,访客将在珠海的过去和未来之间自由游走。gmp的建筑师将这一二元性巧妙地融入统一的建筑构造中。
The design of the Zhuhai Museum comprises a vertical and a horizontal tract based on rectangular footprints. Together, they combine to form a sculptural ensemble. This contrasting duality reflects both the local situation between the mountains and the coast, and also the museum program the exhibition areas provide visitors with a view into the past and the future of the city. The architects of gmp synchronize both these aspects to create a uniform architectural gesture.
分析图,analysis©gmp Architekten
访客从沿海道路经两馆连接处的门厅进入博物馆。南部面山的水平建筑分为三个展览层,展示珠江三角洲沿海地区悠久的城市发展历史。而城市规划展览馆共有八层,展厅层叠排列,访客沿着螺旋上升的步道拾步而上,可进一步了解珠海的城市规划,参观流线的终点是容纳30 x 40米城市模型的展厅。内部的螺旋步道作为展览的一部分连接展厅各层,当然,访客也可从外部通过室外开阔的阶梯进入博物馆。
Visitors enter the museum from the coastal road via the foyer in the linking part between the two tracts. The horizontal part of the building to the south facing the mountains exhibits, on three exhibition levels, the history of the city’s development in this traditional coastal region at the Pearl River Delta. In the exhibition area dedicated to the planning of the town, visitors to the museum are guided upwards along a spiral gangway to explore the cascading sequence, over eight floors, of stacked exhibition rooms. The spiral terminates in a room exhibiting a 30 x 40-meter model of the city. Internally, the spiral is part of the exhibition and links the different levels, whilst on the outside open staircases provide access to the building sculpture.
▼两馆连接处设置门厅入口,entrance to the lobby at the linking part between the two tracts©CreatAR_Images
▼八层的城市规划展馆,eight-floor exhibition area dedicate to the planning of the town©CreatAR_Images
连接两个展馆的室外平台,outdoor platform connecting the two tracts©CreatAR_Images
大厅,lobby©CreatAR_Images
走廊和休息区,可以看到海面景色,corridor and resting area with panoramic view to the sea©CreatAR_Images
▼参观流线终点的城市模型,city model at the end of the spiral©CreatAR_Images
立面设计延用了二元性的基本设计理念。浅色天然石材的实体横向墙面与玻璃、金属立面部分在光线的明暗逆转间形成强烈对比,并清晰地勾勒出城市规划展览馆的螺旋外观。可移动式遮阳系统由铜黄色铝材构件组成,印刻出优雅传统的中式纹理。夜幕降临,柔和灯光点亮螺旋外观立面,弱化了石质水平墙面的厚重感,使建筑在夜色中更加剔透灵动。八层的建筑立面以全玻璃幕墙代替了石质幕墙,在此香洲湾的景致可以尽收眼底。
The facade has been designed following the basic idea of a mutually inspiring duality. Solid bands of light-colored granite and facade panels of glass and aluminum in a warm bronze shade create a play between light and dark and, in the exhibition area for the town planning, clearly replicate the ascent of the spiral. The movable solar screening panels with traditional Chinese patterns also consist of bronze-colored aluminum. At night, when parts of the facade are invitingly illuminated, the light follows the spiral, thus easing the solidity of the natural stone bands. On the 8th floor, floor-to-ceiling glazing opens up the natural stone facade, providing a view across Xiangzhou Bay.
立面细部,closer view to the facade©CreatAR_Images
夜景鸟瞰,aerial view in the night©CreatAR_Images
总平面图,site plan©gmp Architekten
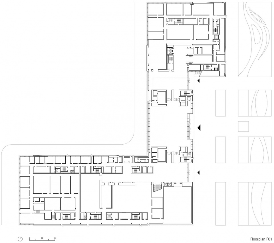
一层平面图,first floor plan©gmp Architekten
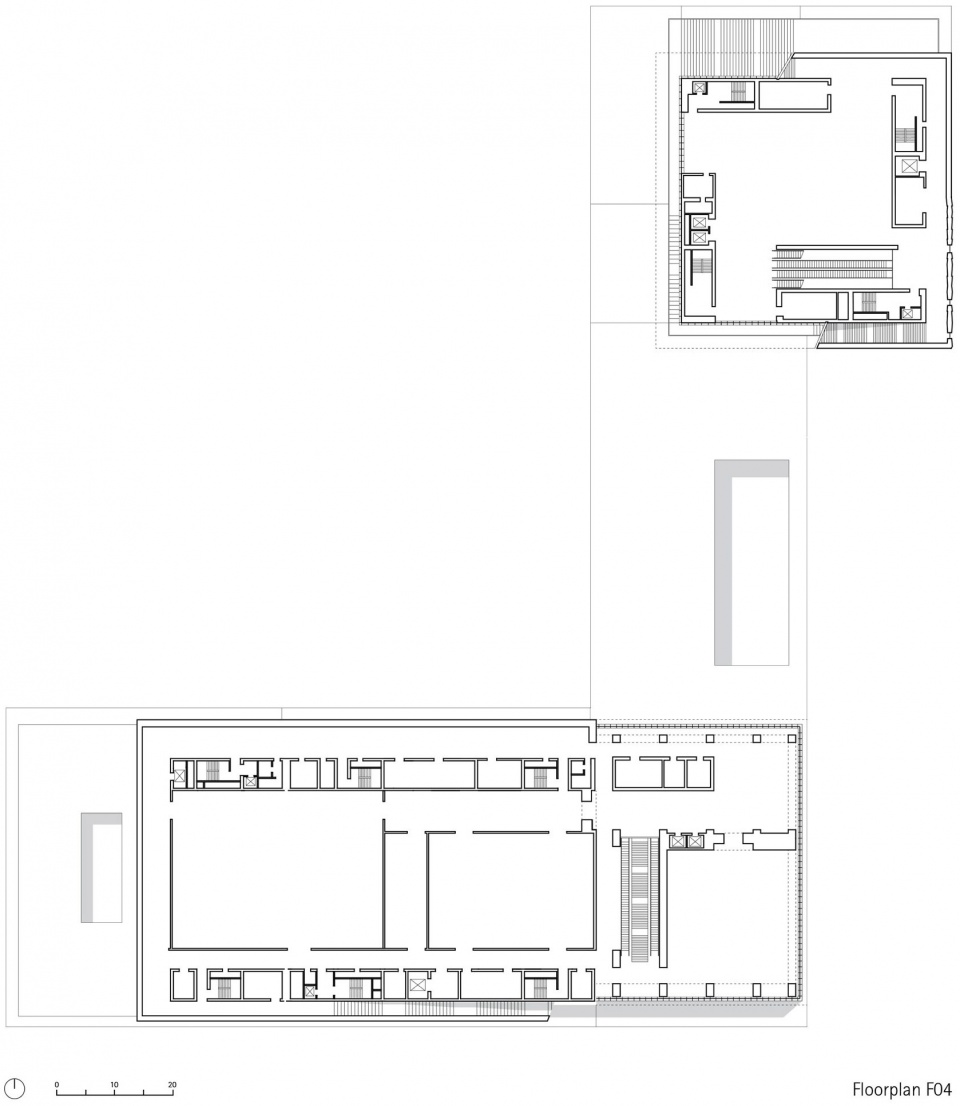
四层平面图,fourth floor plan©gmp Architekten
▼剖面图,section©gmp Architekten
设计竞赛:2009年一等奖
设计:曼哈德·冯·格康与施特凡·胥茨以及尼可拉斯·博兰克
竞赛阶段项目负责人:Clemens Kampermann
竞赛阶段设计团队:Verena Kiewardt, Michael Reiss, Jochen Sültrup, Thilo Zehme, 周斌
实施阶段项目负责人:Clemens Kampermann
实施阶段设计团队:Anna von Aulock, 李民, Andreas Maue, 潘昕, Michael Reiss, Kristin Schoyerer, Sabine Stage, JochenSültrup
中国项目管理:徐吉
业主:珠海华发集团有限公司
合作单位:中国建筑科学研究院 (CABR)
景观设计:Rehwaldt Landschaftsarchitekten
照明设计:Lichtvision Design GmbH, Schlotfeldt Licht
总建筑面积:约5.58万平方米
地上面积:约4.14万平方米
地下面积:约1.44万平方米
Competition 2009-1st prize
Design Meinhard von Gerkan and Stephan Schütz with Nicolas Pomränke
Competition Lead Clemens Kampermann
Competition Team Verena Kiewardt, Michael Reiss, Jochen Sültrup, Thilo Zehme, Bin Zhou
Project Lead, Detailed Design Clemens Kampermann
Detailed Design Team Anna von Aulock, Min Li, Andreas Maue, Xin Pan, Michael Reiss, Kristin Schoyerer, Sabine Stage, Jochen Sültrup
Project Management in China Ji Xu
Client HUAFA Group
Partner Office in China China Academy of Building Research (CABR)Landscape Architecture Rehwaldt Landschaftsarchitekten
Lighting Design Lichtvision Design GmbH, Schlotfeldt Licht
GFA 55,807 m², above ground 41,424 m², below ground 14,383 m
客服
消息
收藏
下载
最近






















