查看完整案例


收藏

下载
由gmp·冯·格康,玛格及合伙人建筑师事务所设计的天津滨海新区文化中心滨海美术馆正式落成。滨海美术馆是天津滨海新区文化中心“五馆一廊”文化设施的重要组成部分。美术馆将在未来举行多样的当代艺术展览。开放灵活的平面布局和可移动墙面系统为艺术提供了自由的舞台。
The Tianjin Binhai Cultural Center has been completed with a new museum building designed by Architects von Gerkan, Marg and Partners (gmp). The Museum of Modern Art is part of the art and cultural complex in the port city of Tianjin, which has been built to a masterplan by gmp. The new building will be used to show exhibitions of work by contemporary artists. With its open layout and mobile wall elements, the museum provides a flexible stage for the art.
美术馆外观,exterior view©Christian Gahl
西侧立面,west facade©Christian Gahl
建成后的天津滨海新区文化中心将成为崭新的热门文化地标,这里坐落着数座不同寻常的建筑。文化中心整体规划由gmp建筑师事务所完成,来自世界不同国家的设计师分别承担了其中博物院、剧院、活动中心等独立机构的设计任务,五座场馆通过一座由伞形钢柱支撑的文化长廊连为一体。
With the Tianjin Binhai Cultural Center, Binhai—the new quarter of the eastern Chinese metropolis Tianjin—has received a new cultural center. The special task of this project was gmp’s masterplan for this cultural quarter with its museums, theater, and events buildings, which were designed by various international architects’ practices. The five cultural institutions are connected by a “cultural concourse” that is covered by a series of inverted umbrella-like structures.
entrance from cultural concourse ©Christian Gahl
五座场馆通过一座由伞形钢柱支撑的文化长廊连为一体,five cultural institutions are connected by a “cultural concourse” that is covered by a series of inverted umbrella-like structures ©Christian Gahl
滨海美术馆位于天津滨海新区文化中心的西北角,滨海现代城市与工业探索馆的对面。美术馆高五层,总建筑面积26500平方米。建筑呈规则长方体体量,幕墙为浅色天然石材。建筑幕墙由下自上带有细长窗缝的封闭幕墙逐渐取代大面积横向玻璃幕墙。建筑面向艺术长廊和室外街道的一侧,玻璃幕墙与石材立面交接处呈现阶梯式退进结构,从而强调出美术馆的正门,玻璃幕墙实现了通透的视野,另来访者可以一窥馆内艺术展品的魅力。
The building occupies the north-western corner of the Tianjin Binhai Cultural Center opposite the Science & Technology Museum. The 26,500 square meters of gross floor area of the Museum of Modern Art is arranged over five floors. A cladding of light-colored natural stone panels has been used on the facade of this cube-shaped building. The number of slot-like story-high windows on each floor increases towards the top. Towards the road and the covered “cultural concourse”, the stone envelope is opened up with a stepped glass facade that recedes story by story and, as well as marking the main entrances, provides views to the inside allowing visitors glimpses of the art.
玻璃幕墙与石材立面交接处呈现阶梯式退进结构,the stone envelope is opened up with a stepped glass facade that recedes story by story©Christian Gahl
文化艺术长廊的巨大屋面将不同的文化设施连为一体,构成整个基地的背脊线。博物馆、展览馆和活动中心等空间密集分布于230米长、25米宽的南北轴线两侧。仅有100米长的东西轴线宽60米,是南北轴线宽度一倍,两条主轴交汇处形成一座中央广场,可举办大型的临时展览或演出活动。
The cultural buildings are connected by a roofed-over cultural concourse that functions as the spine of the Center. The museum, exhibition, and event buildings are placed on both sides of the 330 meter long and 25 meter wide main axis that runs from north to south. The east/west axis, with a length of 100 meters, is significantly shorter, although with a width of 60 meters it is more than twice as wide and is used as a central plaza for events and temporary exhibitions.
▼东西轴线与中央广场,east/west axis with central plaza©Christian Gahl
▼仰视柱结构,detail view of column©Christian Gahl
▼北侧入口,north entrance©Christian Gahl
▼室外柱结构,steel column©Christian Gahl
26个高30米的伞形钢柱结构拔地而起,撑起了整个艺术长廊,极富未来感的结构塑造了滨海新区文化中心的独特形象,同时令不同的文化建筑焕发出各自的光采。纤细的钢柱承担了玻璃平屋顶的荷载,屋面排水系统也被集成设计与其内。水平方向的铝合金百叶可以过滤光线,起到遮阳作用。来访者可以在文化艺术长廊的两个层面上漫步休憩,长廊上层连接了不同的文化建筑,与街道等高的底层设有文创产品商铺和餐饮休闲设施。两层空间之间设置了充足的楼梯,人们可以便利地在艺术和商业空间之间自由徜徉。
▼艺术长廊剖面图,Section through cultural concourse ©gmp Architekten
The cultural concourse is roofed over by 30 meter high inverted umbrella-like structures supported on 26 individual steel columns. The columns are retained in the ground at their base. This lofty construction provides the Tianjin Binhai Cultural Center with its own unique architectural feature whilst allowing the style of each of the different cultural buildings to shine. The slender steel columns support the loads from the glazed flat roof and contain the downpipes for draining the roof area. Horizontal aluminum louvers filter the incoming light and provide solar screening. Visitors can stroll along the concourse on two levels: the upper level connects the different cultural buildings and, at street level, shops and eateries round off the available services. The two levels are interconnected via numerous staircases, allowing visitors to move about horizontally and vertically along the cultural concourse and to choose between art and shops at their leisure.
▼26个高30米的伞形钢柱结构撑起了整个艺术长廊,the cultural concourse is roofed over by 30 meter high inverted umbrella-like structures supported on 26 individual steel columns
▼纤细的钢柱承担了玻璃平屋顶的荷载,the slender steel columns support the loads from the glazed flat roof©Christian Gahl
美术馆采用了古典的对称结构布局:两座侧翼连接围合一座宏大中央空间,其内可以陈列大型展品,也可以作为迎宾、拍卖或多功能厅使用。沿街一侧的西立面,一座大型室外楼梯直通位于二层的中央接待大厅,来访者可以通过一座中庭由此直接到达博物院前厅,同时这里也与同层之上的文化艺术长廊相连。
The concept of the design is based on a classical museum building; two symmetrical exhibition wings flank a central area which houses functions such as the formal reception area, an auction room, and a multifunctional hall. From the road entrance in the western facade, a wide staircase leads to the central foyer with reception area on the second floor, which is at the same level as the cultural concourse of the Tianjin Binhai Cultural Center. From the cultural concourse entrance, visitors reach the reception area directly via an atrium.
▼美术馆接待空间,reception area©Christian Gahl
美术馆的三层空间之上将举行多样的当代艺术展览。越层空间内的可移动展墙可根据不同主题自由分隔组合展览空间。灵活的平面组织和7米空间净高可以布置陈列大型展具。照明灯带被整合安装在屋面吊顶内,为展览空间提供多样的照明方式。可调节的射灯可以营造多种展览和空间的基调。
In future, the museum will show the work of contemporary artists on three of its floors. In the loft-like exhibition areas, the mobile wall elements can be used to subdivide the space and create rooms of varying sizes to suit the content of each particular exhibition. This flexible layout and a clear room height of seven meters make it possible to exhibit even large installations. Lighting frames are suspended from the ceiling, which provides flexible lighting for the exhibition areas. In addition, there are spotlights that can be variably positioned in order to highlight specific freestanding exhibits.
展览空间,exhibition area©Christian Gahl
▼展览空间内的可移动展墙,exhibition area with mobile wall elements©Christian Gahl
美术馆第五层之上为行政管理空间。这里设有办公室、会议室和公共活动空间,两座屋面庭院为周边室内空间带来了充足的采光,同时也为办公人员提供了休憩交流的场所。
The fifth floor of the building accommodates the administrative functions. Offices, conference rooms, and staff areas have been arranged around two roof gardens that provide daylight to the adjacent spaces and can be used by staff at break times.
▼总平面图,site plan ©gmp Architekten
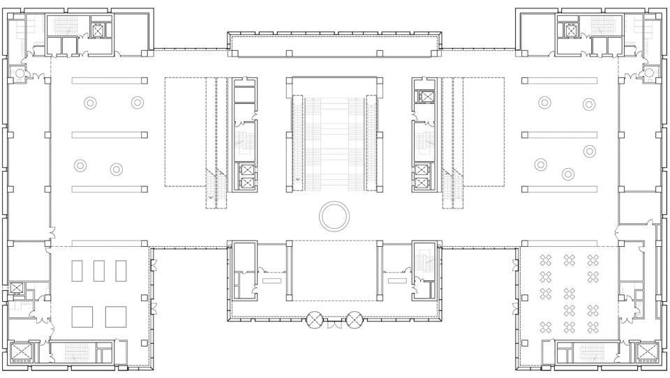
▼美术馆二层平面,plan level 2©gmp Architekten
▼西立面图,west elevation©gmp Architekten
▼剖面图,section©gmp Architekten
设计委托:2013年
设计:曼哈德·冯·格康和施特凡·胥茨以及施特凡·雷沃勒
项目负责人:隋锦赢,林赛博
设计团队:马可·阿桑德里,第纳·伯彦斯,穆杨托,迪米特里·菲利普
中国项目管理:吴镝,刘杨娇
中方合作设计单位:天津市建筑设计院
业主:天津市滨海新区文化中心投资管理有限公司
建造周期:2015—2017年
落成开幕:2017年10月
建筑面积:26500 m
Direct: commission 2013
Design: Meinhard von Gerkan und Stephan Schütz mit Stephan Rewolle
Project leader: Sui Jinying, Sebastian Linack
Design team: Marco Assandri, Dinah Borjans, Mulyanto, Dimitri Philippe
Project management: Wu Di, Liu Yangjiao
Partner practice: Tianjin Architectural Design Institute (TADI)Client: Tianjin Binhai New Area Cultural Center Cci Capital Ltd
客服
消息
收藏
下载
最近






















