查看完整案例


收藏

下载
Gafarim住宅是一个将本土原则与新造型主义对造型、场所、景观节制性表达紧密融合的二元性项目。在散落非连续性的自然景观中,Gafarim住宅采用了葡萄牙北部流行使用的简洁平行六面体形状和与环境协调的尺度,为街道呈现了一个整体不透明的体块外观。建筑仿佛在所处的环境中拥有自主权——一个在独立群体中的独立物体——它的形态秩序和细节与葡萄牙后乡村装饰主义不同。宽阔高屋顶的室内空间融合了远处的景观,与住宅外部秩序形成对比。入口是一个时间与空间上的漫长过渡。从外部到入口空间再到室内,从阴影到光线,从实体到透明,这种渐进的对比是项目双重性与对比性主题的重要体现。
▼住宅概览,view of Gafarim House ©João Morgado
This is a project of tense duality between vernacular principles and a neoplastic understating of shape, place and landscape. In a naturally fragmented and disconnected context, the Gafarim House offers monolithic, opaque volumes to the street, citing the compact, parallelepipedic masses of northern Portuguese popular architecture and adjusting its scale to the surroundings. It appears with autonomy in its context -an independent object among independent objects- and, in its economy of shape and detailing, it distances itself from the post-rural decorativism that is the norm in today’s Portuguese countryside. This exterior formal economy is contrasted with a generous, high-ceilinged, expansive interior space that incorporates the remote landscape.The entrance is a long transitional moment and a space in itself. Evolving from the exterior, covered arrival space to its interior extension, from shadow to light and from opaque to transparent, this progressive contrast is an important representation of the duplicities and contradictions that define the theme of the project.
▼住宅在街道角度呈现为一个实体体块,Gafarim House offers monolithic, opaque volumes to the street ©João Morgado
▼住宅入口,entrance of the house ©João Morgado
通过一个紧凑的空间步入室内,两层高的建筑体块容纳了住宅的社交空间,建筑师采用了当地家庭空间的组织方式,将厨房、餐厅和起居室容纳在一个屋顶空间中。这个非常通透的空间通过一面宽玻璃墙与场地及周边广阔的Minho景观建立了联系。尽管空间是透明的,开放的东北面墙体能够控制进入内部的自然光线,沐浴在水面反射的晨光下,夹层中渗透下来午后阳光照亮了空间,每年、每天,变化的自然光线为建筑注入了活力。室内没有明确的分隔,住宅内的私密空间自由延伸,内部所有的卧室都朝向东南方。内部小庭院可供主卧及洗手间使用,小庭院是虽然在住宅内部,却提供了一个象征性分离的空间。
After the compressed, conditioned entering movement the space expands to a double-height volume that houses the social program of the house, reuniting under a same roof kitchen, dining and living room, citing the domestic organization of this region’s vernacular homes.This is a space of great transparence, relating through a generous glass wall with the plot and the wide Minho views. In spite of its transparency, opening to the northeast allows for a controlled relationship with natural light. Bathing in the morning light reflected by the water mirror and backlit by the infiltrating afternoon sun descending from the mezzanine, the changing natural light animates the architecture throughout the day and throughout the year. Without any explicit separation, the private section of the house develops autonomously, with all bedrooms faced towards the southeast. A small interior patio serves both the master bedroom and the bathrooms. This patio is a device that allows the creation of a space that, though formally inside of the house, is symbolically apart.
▼厨房、餐厅和起居室容纳在一个2层高的通透空间中,kitchen, dining and living room contains in a double-height transparent volume ©João Morgado
在本土与现代之间,在实体与开放平面之间,Gafarim住宅是一个将对比、矛盾与对抗浓缩于简单实用结构中的项目。
Between vernacular and contemporary references, between blind volumes and open planes, the Gafarim House is a project about contradiction, opposition and provocation condensed in a simple, pragmatic structure.
▼从泳池看向室内社交空间、夹层和卧室走廊,view from the swimming pool to the interior social space, the mezzanine and corridor to the bedrooms ©João Morgado
▼从泳池看向室内和室外平台,view from the swimming pool to the interior and outdoor platform ©João Morgado
▼建筑夜景,night view ©João Morgado
▼自然景观中的住宅,the exterior view of Gafarim House in a nature context ©João Morgado
▼草图,sketch
▼场地平面,site plan
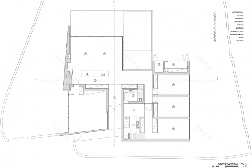
▼首层平面,ground floor plan
▼夹层平面,mezzanine plan
▼西南立面&东北立面,southwest & northeast elevation
▼西北立面&东南立面,northwest & southeast elevation
▼剖面,section
TECHNICAL SHEET
PROJECT NAME: Gafarim House
ARCHITECTURE TEAM: Tiago do Vale, María Cainzos Osinde, with Maria João Araújo, Camile Martin, Eva Amor, Hugo Quintela, Joanna Jakimiuk, Esra Arslam
PROJECT YEAR: 2014-2016
PROGRAM: Residential
LOCATION: Ponte de Lima, Portugal
CLIENT: Private
ENGINEERING: Daengstudio L.da
CONSTRUCTION: Casas do Lima, Limiavez L.da
CONSTRUCTION YEAR: 2016-2018
FOOTPRINT: 2713 ft2 (252 m2)
CONSTRUCTION AREA: 2949 ft2 (274 m2)
PHOTOGRAPHY: João Morgado
客服
消息
收藏
下载
最近






















