查看完整案例


收藏

下载
通常来讲,金融公司对空间的私密性非常看重。如何在保有足够私密性的同时兼顾空间的开放与共享,以及空间功能的可变与丰富,是此次百分金融办公室项目设计的重点。我们以“开放性”为题,进行了设计上的探索,通过一个简单有趣的方式,解决以下三个问题:1.空间的开放性与私密性的平衡;2.空间各功能区域的分与合;3.空间基本格调的规整与变化。
In general, finance companies value space privacy. The key to the project is to keep the space private while creating an open and sharing space contains variable and rich functions. Based on the theme of “openness,” we discussed the office design and solved three problems in a straightforward but interesting way: 1. the balance between public and private spaces 2. Integration and separation of different functions 3. the structure and variation of the spatial rhythm.
▼办公室空间概览,view of the office ©金伟琦©Jin Weiqi
打开的重要性|The Importance of “Opening”
Firstly, according to different functions, spaces are divided into the relatively private meeting rooms and the open working areas. With four moveable silkscreen printing glass walls, space can be freely converted based on different needs of openness and privacy. When the sliding wall is semi-opened, the glass wall is considered as screens. The quantity and position are adjustable to create various spaces according to the needs. When the sliding wall is completely closed, space is divided into multiple small private areas. When the sliding wall is completely opened, different areas are nested and merged into a free-flowing space.
▼开放的工作区,open working areas ©金伟琦©Jin Weiqi
“流动”的空间|A “Flowing” Space
The reception area is designed as a half-enclosed cube, which strengthening the safety and intimacy of a working area while keeping the function to host guests. The continuous cabinet penetrates through the multi-function room, the water bar, and the open working area, creating a deep and integrated space.
▼设置成方盒子的前台,reception area is designed as a half-enclosed cube ©金伟琦Reception©Jin Weiqi
“边界”与“融合”|“Boundary” and “Integration”
高管与员工混坐的开放办公区,呈现安静且自由的形态。集移动办公、小型会议、项目路演、节日派对等多功能的多功能室,结合推拉墙的开启,可与洽谈区融为一体,打开更多可能。
The open working area for both senior executives and all other employees is designed into a quiet and free space. Multi-function room contains various functions such as working, small conference, presentation and party. While sliding wall is open, it merges with the conference area to open more possibilities.
▼多功能室,multi-function room ©金伟琦Reception©Jin Weiqi
▼多功能室通过推拉墙的与洽谈区相融或分隔,
multi-function room connected or divided with meeting area through sliding walls ©金伟琦Reception©Jin Weiqi
“严谨”与“闲适”|“Rigor” and “Comfort”
Tearoom, a common space for both employees and clients, also serves as a small conference room. Tearoom presents itself as a cozy and serene space with its size of human scale and warm natural texture of wood. Professionalism is essential in the finance industry. Therefore, other than providing comfort, the precision and rigor of business is emphasized in the design for the negotiation area. Independent office is a minimalistic place where people can quickly focus on their work. The tone of black, white and grey, together with abundant storage units not only manages the spatial content but also the formal language.
▼黑白灰基调的内部空间,tone of black, white and grey ©金伟琦 Meeting room ©Jin Weiqi
▼总经理独立办公室,independent office of the manager ©金伟琦 Meeting room ©Jin Weiqi
探索,未知的边界|Explore Unknown Boundaries
此次的设计,我们尝试在隐与显、明与暗之间,平衡开放与私密的需求。在空间流动下的“深远不尽”中,赋予未来使用者更多的可能性。
In this design, we try to balance between the openness and privacy, the visible and invisible, bright and dark. In the deep, boundless and flowing space created, we hope to open up more possibilities for future users.
▼轴测图,axonometric
▼推拉墙系统轴测,axonometric of the sliding wall system
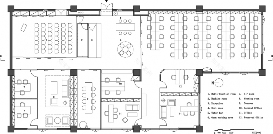
▼平面图,plan
▼aa剖面图,aa section
▼结构详图,structure detail
项目名称:百分金融办公室
设计:兼建筑
项目设计:2017
项目完成:2018
主创设计师:陈培新,陈真
项目地址:中国,北京
建筑面积:450㎡
摄影:金伟琦,陈培新
施工:徽玲珑(北京)建筑装饰工程有限公司
客户:百分金融
材料:1,丝网印刷玻璃 2,高强面层水泥自流平 3,氟碳喷涂钢板
Project name: Bestfen Office
Designed: Atelier Jian
Design year: 2017
Completion Year:2018
Leader designer: Chen Peixin, Chen Zhen
Project location: Beijing, China
Gross Built Area : 450㎡
Photo credits: Jin Weiqi, Chen Peixin
Construction company: Hui linglong (Beijing) architectural decoration engineering co., LTD
Client: Bestfen
Materials: 1. Silkscreen printing glass 2. High-strength self-leveling cement 3. Fluorocarbon spraying steel sheet
兼建筑
客服
消息
收藏
下载
最近



















