查看完整案例


收藏

下载
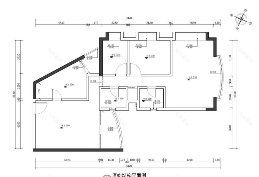
Before
After
从原始户型看出,公共空间是比较异性的,然后厨房占据的面积大+屋主不常做饭,其实利用率不高,再放一个餐厅的空间会显得拥挤。所以在客餐厅和厨房做了以下几点改造&调整:
1.将厨房移到生活阳台位,有足够的空间来设计餐厅,利用吧台的回字形动线手法,合理规划了客餐厅的联动性;
2.客餐厅的三面墙设计了超大隐形储物柜,解决储物空间不够的问题;
3.把阳台封进来,扩大室内面积并且增大采光面。客餐厅最大亮点是过道与阳台中间的墙面设计两扇木饰面大移门,平时充当装饰面墙,来挡住晾晒衣服暴露的问题,或者夜晚聚会派对时也可往过道这边移动挡住,避免影响小孩学习休息。
从入户到客餐厅,按照业主的多收纳空间要求,入户玄关墙+电视背景墙+冰箱收纳墙是三面超大隐形储物柜,每一面的收纳柜用了不同的装饰面,用色彩装饰来分隔空间的不同。玄关使用了棕色的木饰面,步入客厅看到洁白的墙面与黑色皮质沙发之间互相碰撞。
阳台是封起来的,在阳台与客厅之间的窗帘盒做了一个轨道设计,可以推动两大扇木饰门来遮挡阳台平时晾晒衣服暴露的问题。
餐厅这一块,一面墙是嵌入式冰箱的储物柜,一面是暗藏式线条灯突出展示餐厅的摆件。屋主可以选择添置和摆放餐具、生活用品作为 “藏起来”or“放出来”。
从餐厅到主卧的过道大概有五米长,避免通过空间的时候枯燥无聊。
在走廊两侧安装线性灯光,线条照明像电影里的酷炫X光线映在大理石地面上,有意引导我们通往各自的归属空间,在这个小小空间增加趣味性和延伸性。
主卧有一个视野好的大窗景,屋主每天早上起来可以看到窗外的晨光美景~
保留了衣帽间的位置,结合梳妆台设计一个L字形组合衣帽间,满足屋主衣帽收纳+梳妆的需求。
父母房间:素雅大方,简约有致
男孩房:雾蓝色温暖氛围,有孩子喜欢的篮球、航海元素
主卫则以黑白灰为主,显得干净利落,给人一种酷冷的感觉,特别是那吸引人目光的黑色马桶。
客服
消息
收藏
下载
最近






















