查看完整案例


收藏

下载
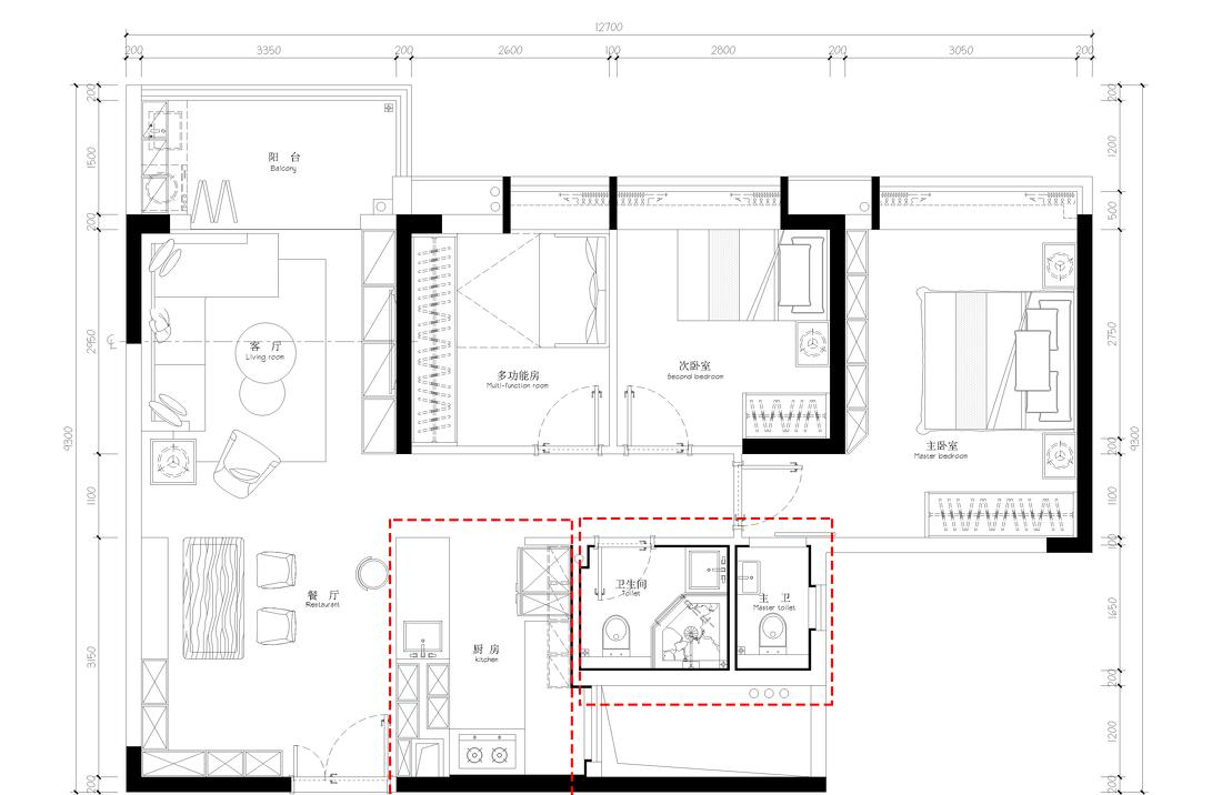
原始户型图:典型的三房两厅户型,套内面积98m,很多80后或90后的业主选择该类型的户型作为第一套房子,年青的3口之家
户型分析:
优点:1.原始结构的户型方正,没有多余的零碎空间
2.该户型南北通透,通风采光都很理想,动线布局合理。
不足之处:功能布局上,主卧没有配套功能,整个户型仅有一个卫生间。
前期沟通:
业主夫妇都是90后,比较年轻,他们都是从事服装设计,审美,对品味有着独到的见解,生活细节上的艺术有着敏锐的触觉。
男业主对于鞋有一定的执着,就目前仅收藏的就有两百多双的球鞋,所以这两百多双鞋应该怎么放置,是一个问题。
女业主对于厨房的要求就是不要千篇一律,不仅是柴米油盐,也要有生活的情调。
设计师的建议:考虑到主卧的私密性,加多一个卫生间。
最终确定的平面方案:
1.按男业主的需求,入户进门处左右两侧都加了隐形柜,专门放鞋。
2.厨房改为开放式,增加一个吧台。
3.把原本的卫生间一分为二,把一个纳入到主卧。
客厅看往进门视角
门两边的柜子主要用于放鞋,客餐厅都在同一水平线上。整体色调以白素为主搭配木地板,灰色艺术涂料,就营造出一种清新简洁的氛围。
从入户看客厅视角
我们可以看到整个空间是没有主灯的,客厅的人造光源主要是4盏射灯。射灯的一个主要作用就是以聚焦的形式突出要表达的事物,渲染氛围。这个设计智人见智,适合自己的才是最好的设计。
开放式厨房普遍都有一个油烟问题,该户型好的一点就是厨房位置通风比较好,所以油烟的困扰不是很大。闲暇的时候喝点小酒什么的,小资情调。
卧室还是和客厅统一的色调,简简单单,米你
的玻璃床头柜,原木的床又透漏着温馨,依旧
是摆放了很多超喜欢的玩偶。
儿童房放了上下铺,后期来了朋友也可以作为
临时的休息区。还有一些置物收纳盒,童趣满
满的凳子加上摆件
客服
消息
收藏
下载
最近
















