查看完整案例


收藏

下载
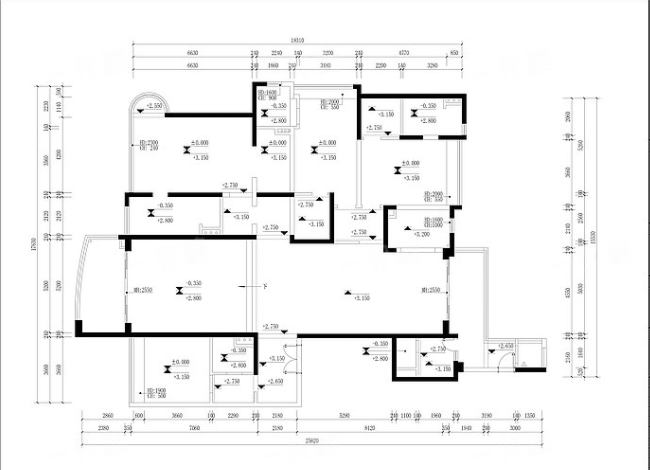
空间分析
原始户型方正,采光通风好,因此把更多的精力放在打造空间上面。
空间改造:
1. 公卫没有阳光照入,设计了室内落地窗,把光线引进来;
2. 打通了原始的卫生间和衣帽间格局,扩大业主夫人衣帽间的使用空间;
3. 增加很多立体空间的改造,例如天花板采用了胡桃木皮材质,与灯光的运用相互碰撞。
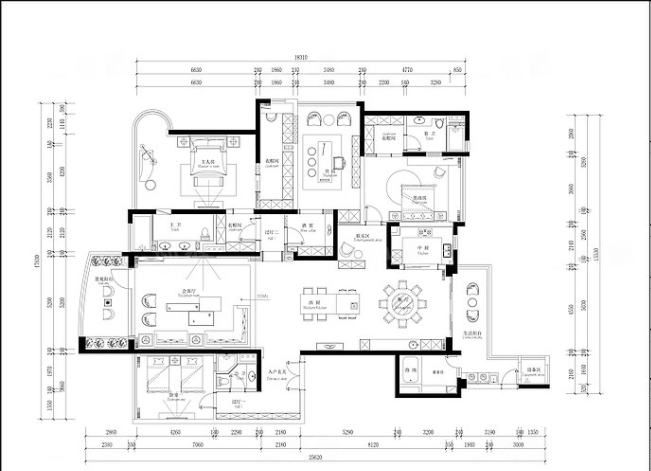
以大块面积的木饰板和个性挂画结合的形式出现,采用解构主义与偏心的设计手法,打破传统根深蒂固对建筑对称。
客厅背景采用反转手法,利用光线让整体视角更具穿透力,展现出材质的纯粹与肌理。电视背景墙与沙发木饰背景面给人营造出相融共生的视觉观感,既弱化了过道的纵深,又提升了空间与空间的延伸感。
西餐厅导台,闲时品品酒,吃吃早餐。
地窗窗帘颜色与床头背景颜色用来丰富空间层次、提升空间感,房间的绿植增添生活气息,床头柜复古黑,来打造出一间符合老人沉稳气质的主人房。
床头背景将天然“木”“与蓝色硬包”结合,让材质在碰撞与穿插中拉伸空间感来彰显品位,低调内敛却不失高贵优雅。这是对业主“返璞归真”的理想家居的最好诠释。
客服
消息
收藏
下载
最近

















