查看完整案例


收藏

下载
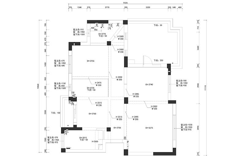
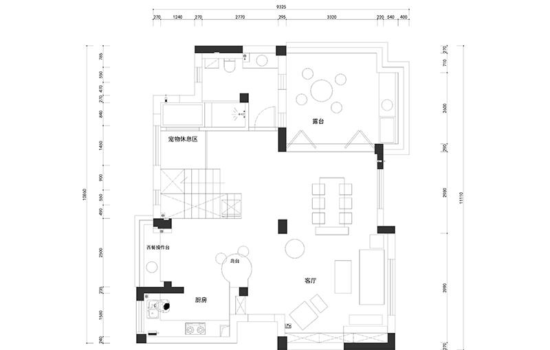
一楼:公共空间 91㎡
1.更改楼梯位置,将一楼全部打通,作为公共区域。
2.卫生间外扩一部分,可以同时摆放淋浴和业主心心念念的浴缸。
3.给宠物设立了休息区,让爱宠也有个舒适的小窝。
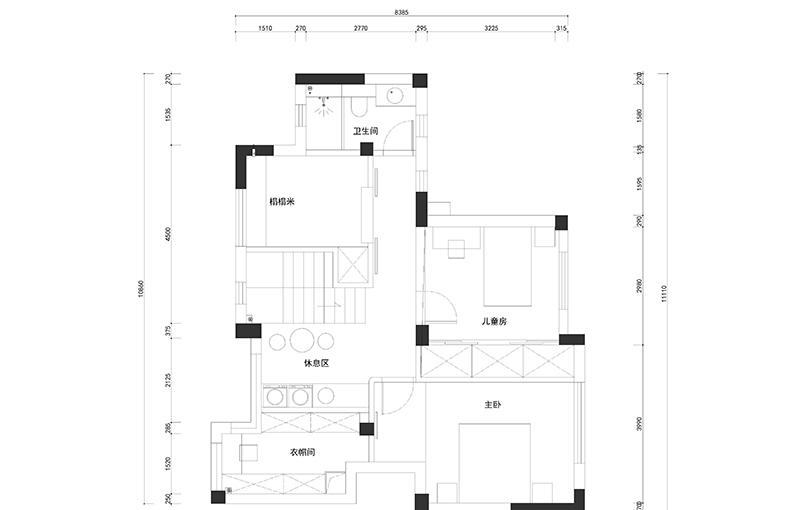
二楼:休息和休闲空间 78㎡
1.与一楼闹区隔开,二楼做睡眠区,动静分离,保障睡眠质量和隐私性。
2.将二楼露台拆分成了衣帽间和洗衣房,满足业主超多私人物品的收纳和清理。
皮质沙发的加入摩登又冷酷,让空间粗犷却不失时尚范儿。
打造了一整面的储物格,温润的木质中和整体冷硬的气息,屋主的书籍也有了容身之所。同时预留出钢琴的位置,给多才多艺的屋主一个最好舞台。
没有选择传统的电视柜,而是现砌的水泥基座。360°无死角旋转的电视机让两个空间都能成为娱乐圣地,无论是开party还是家庭聚会都能瞬间嗨起来。
细腿茶几更显空间的轻盈感,木色桌面与黑色桌腿的结合更呼应空间的色彩。
阳光懒洋洋的撒下来,坐在钢琴前轻轻弹奏一曲,客厅的光影仿佛跟着一起舞动,一室安然。
裸露的梁体带着原生态的粗糙感,还原它的本质,搭配着红砖与自流平,抛却沉重压抑,只剩下了高级感与硬朗。
沙发:IKEA
落地灯:Arco
茶几:MUMO
单人椅:The Mazay
边几:EVITA HOME
艺术装置:独立艺术家《行走的人》
统一的细腿餐椅让空间更加开阔,良好的采光和敞亮的布局令餐厅成为男主人的心头好。男屋主偶尔也会在这里工作看书,也可以和家人更好地沟通交流。
餐桌:MUMO
餐椅:淘宝/泉州朗天
裸露的红砖+水泥自流平,粗粝的工业风气息扑面而来,琳琅满目的储物格满载生活气息,多了一丝暖意。落地灯和黑色雕塑极具艺术感,各自占领着客厅一角,成为最亮眼的存在。
墙面的简单化衬托的空间愈发的简约与时尚,在狂野的梁体下,木质才能彰显出它的温和柔软。
水泥岛台是由桃弥施工团队现场制作,最原始的木材和水泥也能在师傅们的手中呈现细腻的一面,温和且有质感。
水泥自流平与仿木纹砖相贴合,不同材质分割区域,一面粗犷狂野,一面美观整洁,也更便于日常的清洁和打扫。
简单的黑白配碰撞出时髦感,内嵌的柜体与家具提升空间利用率。用粗糙的水泥砌成台面,表面光滑,质感细腻。简约的空间里,处处都是对生活美学精雕细琢的打磨。
时代气息浓厚的吊灯和壁灯,铁盒开关、裸露的电线管,描绘出工业风的细节。
简单的横铺瓷砖排列有序,整齐划一,避免了空间的逼仄感。洞洞板悬挂物件灵活又实用,黑白间洋溢着工业的复古。
吧凳:MUMO
木质搁板:MUMO
二楼的走廊增设了储物间和洗衣房,充分满足屋主的收纳需求。合理预留出洗衣机的存放位置,为日常生活提供便利性。
延续工业风的冷硬,黑色带着酷感席卷了整个楼梯,加上坚硬的铁质,更加硬朗与帅气!
走廊铺设的木地板,为二楼创造一个安静舒适的睡眠环境。全房的门都是师傅打造的,门上定制的铁件,两种材质碰撞出的冲突感蕴含着十足的腔调!
木质谷仓门的纹路与肌理,搭配简洁的室内装饰,让空间不再平淡。
为营造良好的睡眠环境,卧室选择删繁就简,干净舒适,身心放松。壁灯与床头柜营造复古的气息,搭配床头的画,令人心旷神怡。
在以水泥灰、木色、白色为主的空间里注入一抹复古绿,与精致的黄铜镜前灯、蒸汽感爆棚的裸露水管相结合,令卫生间仿若一幅耐人寻味的画。
浴室的台面由泥工师傅现砌,流畅的转角和细腻的表面让粗糙的水泥也变得美观实用。并且嵌入了木质搁板,以便存放日常杂物。裸露的水管是大胆的尝试,也是独特的设计,突出强烈的工业感与个性化。
吧凳:MUMO
镜子:BOLEN
空间里的每一处黑色,
都在散发着神秘的力量感。
每一处裸露的梁与砖,
都在诉说着工业风的魅力。
时尚感与冷硬感之间,
也能有粗犷与舒适的平衡,
客服
消息
收藏
下载
最近




























