查看完整案例


收藏

下载
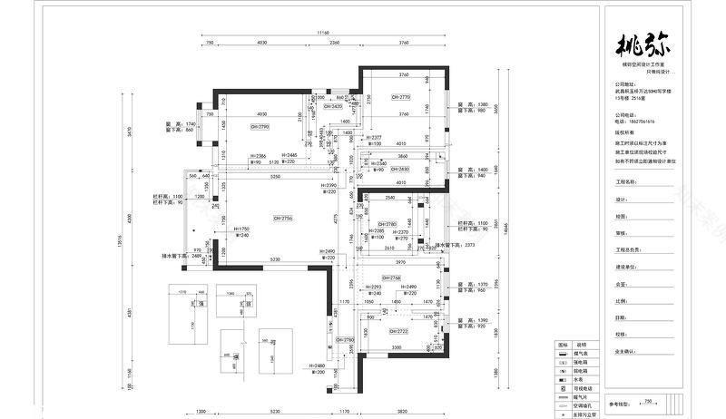
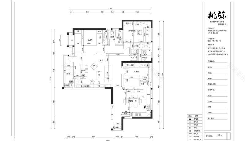
【布局优化】在客厅和主卧的超长隔墙上,我们采取了打破常规的布局,主卧套间两边的门同时打开后,形成了房屋中心的环形动线。谷仓门的移动变换中,又拥有了一个可变性的多功能房。由于平时业主在家用餐的时间也不是很多,把餐厨合为一体。这样在视觉上既缩短了走道的距离,也使空间更为紧密一些。
铁管射灯,水泥墙面,复古的挂钟。地面则延用厨房的六角砖与水泥地完美的结合,再搭配一把红色的换鞋凳,是不是觉得整个空间都变得活泼了起来?
餐厅的主灯是我们特地寻来的钢架灯,配上涂鸦形式的墙绘及挂画,也有点小酒吧的氛围哈!其实开放式厨房不仅仅只针对于少烹饪的家庭,勤快的整理收拾比什么都重要~
烟道上的手绘黑板墙配合家里的涂鸦元素形成了独特的风景。
从厨房望向窗外的风景很赞有没有!早晨的阳光洒进来是很惬意的~
厨房一角,冰箱贴是自行DIY家人的名字,为家里增添一些温馨的味道。
餐桌的桌面采用皮革和实木相结合的处理,Y先生在设计之初就一眼相中,之后念念不忘,一定要我们把这个大家伙考虑进来。看到照片之后感觉和风格还真搭,不得不佩服我们的客户品位越来越高啦~
再看上面,把完全裸露的横梁人工敲出原始粗犷的感觉。油漆师傅刚开始做的时候还碎碎念:抹的好好的干嘛要敲破。结果效果出来之后自己却还嫌不够粗犷,又亲自上手抹了几把,我们躲在旁边偷笑,他倒是一本正经的说:我觉得我手动处理的特别好,哈哈。
正因为特意把家里的梁体全部裸露在外,又苦于风管机又是一个令人头疼的大件,当时苦苦寻找合适的材料一直没有寻到。正好用防腐木做阳台的时候剩了一些,于是乎全部利用上把风管机包了个严严实实,没有想到还效果还出奇的好,内心狂喜啊····哈哈。
吧台这块是客厅里我最爱的一个地方,千方百计淘来了这个汽油桶,当时运到现场的时候里面还有剩余汽油!原本的颜色其实是深蓝色,不过由于上方正好是水盆,就在下面做了水满溢出来的一个效果,再配合上主电视柜的色彩把它刷成了黑色,使得整个空间有个呼应。夫妻二人在早晨可以在吧台上做一个简餐,平时再来点小酒,迎着阳光可以说是非常惬意了!
左边这个灰蓝色大型的集装箱造型位居整个家里的中心,你们一定猜不到这个背后其实是一间儿童房吧!为了使他有工业铁皮的效果,我们其实是用木作来完成的这个造型哦,每一根板材都是木工师傅在现场加工成45度角再装上去的,在这里真的要为我们的师傅点个赞。每个角落上方铸铁的零件,也是特意去工厂定制回来刷漆的。再加上正真的集装箱房门,还真有那么融为一体,以假乱真的感觉呢!
从户型看,分隔卧室和客厅的这面墙是特别特别的长。我们虽然选用了极具年代感的红砖,但是又担心他所带来的厚重感。为了打破这个局面,我们用槽钢代替了过河,在左边给主卧开了两扇具有王者气场的大铝门,右边则用方钢现场焊接了一个造型墙。并且这个造型墙也大有玄机,如果我不说你一定看不出来最右边其实是一个通往影音房的隐形门。三门同时开启之后,在整个房间的中心形成了一个环形动线。这也是这套房子平面优化的最大亮点哦~~
客厅这个多功能柜可以说是满足家里刚需的主力骨了。以电视柜为中心,左边是鞋柜,右边是餐边柜。毕竟是黑色嘛,家里乌泱泱一大片黑还是不太好。所以我们在鞋柜柜门的处理上采用了钢网。既可以看透柜体的木色,也代替平常鞋柜柜门用百叶的功能。
客厅通往卧室的门我们做成了可以完全打开的两扇大的铝皮门,当门打开主人就可以在卧室床上看客厅电视了。如果从卧室看这两扇门还是铝皮门的话就有些怪异的,所以我们在这个门上处理成了正反两面各不相同的造型,主卧对着的那边是原木本身的颜色,相对于休息的空间会增加一些温馨的感觉。
一整面的落地窗让阳光充分的洒进来,在这里看书学习真是无比的舒适~~~
床头的这个时钟造型,灵感源自于英国大笨钟的表面设计。随着时针的转动,可以静静感受时光给你带来的独特味道。再由于主卫生间在这个套间的中心地段,全部用墙体来处理又觉得实在是憋屈的慌,就在浴缸上部开了一个造型窗,让两个空间有一个互通性,也为生活更加增添了一丝情调。
水泥悬空浴室让有些拥挤的空间变得开阔起来。而主卫墙砖拼花的款式和餐厨地面也有呼应,使空间整体化一。
次卫我们选用了黑白调子的浴帘,房门则采用门套和门分色处理的手法,让卫生间也不再冷冰冰,变得活泼起来。
到了儿童房,看到这么大一面满墙的储物柜真是心水。为了不使整个空间过于饱满,我们在靠窗户那边截了半截柜子下来,作为展示他们平时收集的复古小玩意儿。看到这个墙纸是不是很有亲切感呢?上面马里奥的蘑菇加红白机那就是童年的味道啊~
客服
消息
收藏
下载
最近
























