查看完整案例


收藏

下载
该项目对万达大都会球场平台下方的西北角空间进行整体改造,用作马德里竞技俱乐部的新办公室。建筑面积约为5000平方米,占据了两个矩形平面的楼层以及小部分平台区域。
The project consists of the integral reform of the space located in the northwest corner, under the platform on which the ‘Wanda Metropolitano’ stadium is located for its adaptation to the new offices of the Club Atlético de Madrid. The approximate area is 5,000 m2 distributed in two rectangular floors, plus a small surface area on the platform level.
▼项目外观,external view ©Manolo Espaliú
改造保留了交流中心和中庭,并使其成为新项目的独特元素之一。中庭使两个办公楼层上方可以设置天窗,将自然光引入新的办公空间。
The intervention preserves the communication centers and the existing central courtyard, which will become one of the unique elements of the new project. The patio that allows the configuration of the two office floors is crowned by a skylight that introduces natural light into the new workspace.
▼室内概览,overall view of interior ©Manolo Espaliú
▼等候区,waiting area ©Manolo Espaliú
一层除了入口外,还容纳多种公共用途:接待和交通、会议室、位于中庭内的等候区以及食堂。二层则汇集了办公区、中庭旁开放而灵活的空间、设置在外围的办公室。这种布局使该项目具备了办公项目通常所需的多功能性。此外,二层还设置了客户服务区和体育场主售票处,体育场入口独立于俱乐部办公室设置。
The ground floor of the project, in addition to the access points, houses the most public uses: reception and circulation, meeting rooms, a waiting room in the main courtyard or the canteen. For its part, the first floor concentrates the offices, combining an open and flexible central space around the patio and a series of offices that configure the perimeter of this floor. This configuration of applications gives the project the versatility that an office project currently needs. In this level there is also the customer service area and the main ticket offices of the stadium, whose access is made independently of the Club offices.
▼交通空间,circulation ©Manolo Espaliú
▼空间细节,detail ©Manolo Espaliú
▼二层办公区,office area on the first floor ©Manolo Espaliú
▼中庭旁开放而灵活的空间,open and flexible space around the patio ©Manolo Espaliú
▼办公室,offices ©Manolo Espaliú
▼楼梯,staircase ©Manolo Espaliú
▼总平面图,site plan ©Cruz y Ortiz Architects
▼地下一层平面图,B1 plan ©Cruz y Ortiz Architects
▼一层平面图,ground floor plan ©Cruz y Ortiz Architects
▼二层平面图,first floor plan ©Cruz y Ortiz Architects
▼屋顶平面,roof plan ©Cruz y Ortiz Architects
▼南立面图,south elevation ©Cruz y Ortiz Architects
▼西立面图,west elevation ©Cruz y Ortiz Architects
▼纵剖面图,longitudinal section ©Cruz y Ortiz Architects
▼横剖面图,cross section ©Cruz y Ortiz Architects
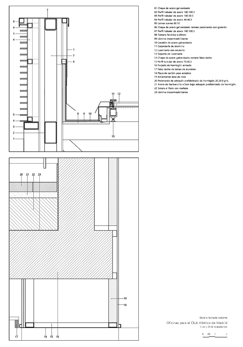
▼构造细部,details ©Cruz y Ortiz Architects
Client: Club Atlético de Madrid
Address: Avda. Luis Aragonés, 4
Typology: Interior Design, Offices
Status: Built
Collaborators: Blanca Sánchez, David de Cos, Juan B. García, Óscar Mínguez, Sergio Mota
Interiorismo: Cruz y Ortiz Arquitectos
Lightning design: Cruz y Ortiz Arquitectos
Fotografía: Manolo Espaliú
Ingeniería de estructuras: MC2 Typsa
Ingeniería de clima: IS Ingenieros
Protección contra Incendios: Cruz y Ortiz Arquitectos
Survey: Cruz y Ortiz Arquitectos
Control de Obra: Análisis de Edificación y Construcción
Constructoras: FCC
客服
消息
收藏
下载
最近






















