查看完整案例


收藏

下载
CreatAR_Images
新建筑高 50 米、长 201 米、进深 75 米,体量比例源于对原仰山文化带上的城市更新,即奥林匹克公园文化综合区的城市规划设计要求。建筑在结构和尺度上被划分为彼此贴合的三部分:浅色锈石花岗岩基座、玻璃幕墙的透明平台层和漂浮在上方的铜色主体建筑。通过这种三段式布局,在 13.5 米的高度上形成了一个有屋顶的城市露台,以公共空间的形式环绕着建筑。6 米悬挑的屋顶也为玻璃幕墙后面的展览区提供了遮阳保护。
感谢 gmp 由 gmp·冯·格康,玛格及合伙人建筑师事务所和中国建筑科学研究院有限公司合作设计实施的这一国家级博物馆将两座博物馆的功能集为一体,它的落成为北京奥林匹克公园新文化区增添了又一座重要的新建筑。建筑外观设计与其内容相辅相成,雕塑般的幕墙结构富于色彩、深度与光泽效果的变化,使博物馆无论从近处还是远处看都极具特色。
▲博物馆外观
© CreatAR_Images
新的博物馆建筑比邻国家体育场(鸟巢)以及由 gmp 于 2021 年设计建成的亚洲金融大厦暨亚洲基础设施投资银行总部,并与这些新建筑一起重构了北京中轴线的北端。在新的博物馆中,众多的中国工艺美术品和非物质文化遗产的珍品首次以国家级高度向公众展示。
▲位置示意
© gmp Architekten
▲从博物馆露台望向国家体育场(鸟巢)
© CreatAR_Images
▲夜间,整个博物馆熠熠生辉
© CreatAR_Images
新建筑高 50 米、长 201 米、进深 75 米,体量比例源于对原仰山文化带上的城市更新,即奥林匹克公园文化综合区的城市规划设计要求。建筑在结构和尺度上被划分为彼此贴合的三部分:浅色锈石花岗岩基座、玻璃幕墙的透明平台层和漂浮在上方的铜色主体建筑。通过这种三段式布局,在 13.5 米的高度上形成了一个有屋顶的城市露台,以公共空间的形式环绕着建筑。6 米悬挑的屋顶也为玻璃幕墙后面的展览区提供了遮阳保护。
轴测图
© gmp Architekten
▲建筑立面近景
© CreatAR_Images
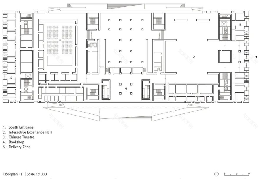
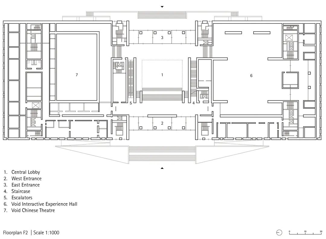
博物馆的两个入口位于建筑的中轴线上,既面向东侧的广场,也面向西边的河岸开放。两个入口通向共同的中央入口大厅。毗邻大厅的是有约 400 个座位的大型多功能报告厅,以及可灵活使用的互动体验展厅。
▲入口门廊
© CreatAR_Images
中央大厅通高的开放空间通过屋顶的正方形天窗自然采光。在前往展厅的路上,可以从环绕大厅的公共环廊获取更宽阔的视觉体验。公共环廊的墙面和吊顶的设计,从节点构造、色彩造型上都与建筑外幕墙的设计元素相呼应。环廊上六边形的背光吊顶让人联想到中国传统手工艺的编织结构,为走廊带来静谧的空间效果。
▲中央大厅
© CreatAR_Images
▲正方形天窗自然采光
© CreatAR_Images
▲环绕大厅的公共环廊
© CreatAR_Images
▲楼梯© CreatAR_Images
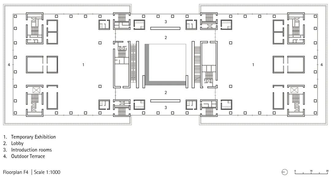
博物馆区分布在三个楼层,临时展厅设置在玻璃幕墙的平台层,常设展厅在两层高的主体建筑里。建筑结构采用大面积无柱空间,可以容纳多样化的展览方式。落地展墙单元可以灵活划分展览区,这也使得这两个主题迥异的博物馆可以在同一个屋檐下和谐共存:一方面是传统技艺等门类的非物质文化遗产展览,另一方面是琳琅满目、典雅精致的中国工艺美术展览。
▲展厅© CreatAR_Images
具有遮阳效果的外立面幕墙通过光影效果创造出一个新的光影空间,这个新的光影空间是对中国古代建筑花窗、中式室内空间氛围的转译。外层幕墙与内层幕墙之间近 1.5 米的灰空间一起营造了有深度的建筑外表皮。
外层立面本身由带有哑光铜色涂层的铝型材制成,这些型材交织在一起,构成了格栅状的浮雕。格栅型材的水平构件向外突出、竖向构件向内偏移,双向叠加实现了立体的三维效果。
▲遮阳幕墙创造的光影空间是对中国古代建筑花窗、中式室内空间氛围的转译。
© CreatAR_Images
幕墙格栅图案是由一个 3.00 x 2.20 米的基本模块生成的,通过模块竖向的有节奏的重复延展成 22 米高的两层顶部建筑,由此产生了面子和里子既统一又各具特点的外立面效果。
▲幕墙设计示意
© gmp Architekten
▲格栅状的浮雕
© CreatAR_Images
夜间,在背光照明的作用下,立面装饰格栅的结构和深度显得格外突出。从远处观望,整个博物馆熠熠生辉,像是漂浮在奥林匹克公园之上。
▲幕墙夜间点亮效果
© CreatAR_Images
▲奥林匹克公园夜景
© CreatAR_Images
项目图纸
▲场地平面图
© gmp Architekten
▲一层平面图
© gmp Architekten
▲二层平面图
© gmp Architekten
▲四层平面图
© gmp Architekten
▲五层平面图
© gmp Architekten
▲西立面图
© gmp Architekten
▲南立面图
© gmp Architekten
▲横剖面图
© gmp Architekten
▲纵剖面图
© gmp Architekten
设计竞赛:2013 年,一等奖
设计:曼哈德·冯·格康与施特凡·胥茨及尼古拉斯·博兰克
竞赛阶段项目负责人:David Schenke,徐山,帕特里克·弗莱德勒
竞赛阶段中国项目管理:吴镝,王征,王珏,吴迪
竞赛阶段设计团队:Sebastian Brecht,Verena Coburger,Bernd Gotthardt,Martin Gänsicke,Stefan Hornscheidt,Michael Reiss,Plamen Stamatov,Elsa Tang,Katya Vangelova,解力,张旋,周斌,Jan-Peter Deml,Thilo Zehme,Florian Langer
实施阶段项目负责人:帕特里克·弗莱德勒,吴镝,马迪亚斯·魏格曼,李昕明
实施阶段中国项目管理:田雨欣,穆森
实施阶段设计团队:包望韬,Anvina Devi Canakiah,曹平,Fahriye Gürsoy,郭福慧,Hayashi Kohei,Stefan Hornscheidt,Charles Howard,Mauricio Müller,Filippo Ragusa,Nikolas Rekoutis,汤子泓,Immanuel Tashiro,解力,张弛,朱世游,Joanna Zielinska,Jan-Peter Deml,Thilo Zehme,摆健鹏,王珊,王亚增
业主:中国艺术研究院
中方合作设计:中国建筑科学研究院有限公司
照明设计:Conceptlicht GmbH
幕墙顾问:华纳工程咨询(北京)有限公司
建筑面积:91126 平方米
展览面积:38400 平方米
竣工时间:2022 年
客服
消息
收藏
下载
最近




























