查看完整案例

收藏

下载
© Kim Donggyu
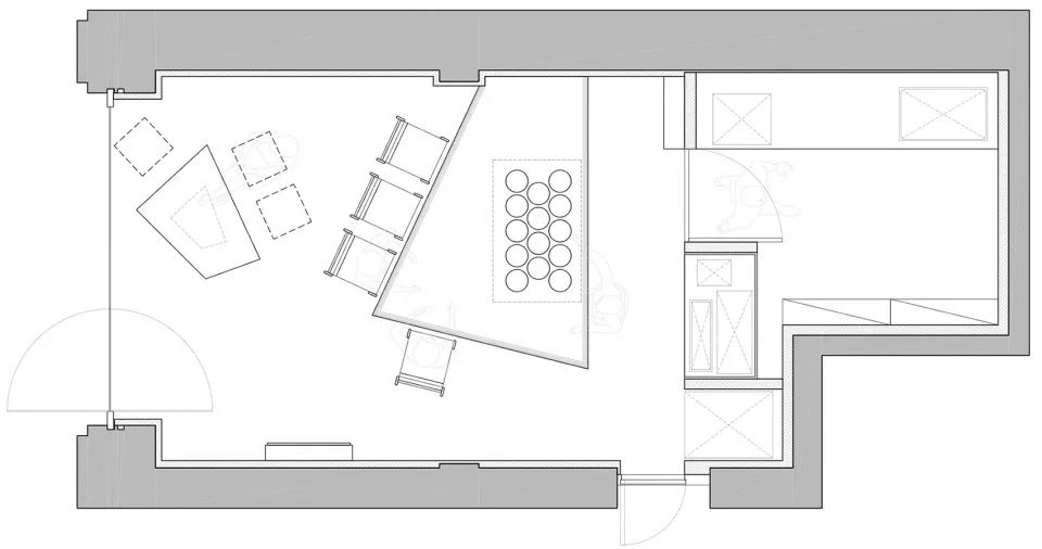
室内空间较小,因此改造不涉及竖立墙壁,而是围绕如何合理地布置家具进行的。家具造型采用斜线,而非直线,这自然地划分了顾客停留空间和行走空间。在该空间中,我们希望人们的活动可以使其充满活力和多样性。
感谢
WARP AND WOOF
Pinocchio是一家冰淇淋店,位于首尔法国人最多的Seorae Village街区。业主希望同当地人交流,从他们如何制作原材料开始讲起,而不仅仅是卖冰淇淋给顾客。时至今日,业主还对小时候经常去的那家氛围温馨的餐厅保留美好的回忆,因此希望Pinocchio也能够成为居民们长久而温馨的回忆。
▲临街外观
©Kim Donggyu
▲立面内置灯光营造出温馨感
©Kim Donggyu
▲入口区域
©Kim Donggyu
▲家具边角均采用圆角
©Kim Donggyu
▲主要用餐空间
©Kim Donggyu
▲斜角桌子
©Kim Donggyu
▲室内材料与色调同既有建筑保持一致
©Kim Donggyu
室内空间较小,因此改造不涉及竖立墙壁,而是围绕如何合理地布置家具进行的。家具造型采用斜线,而非直线,这自然地划分了顾客停留空间和行走空间。在该空间中,我们希望人们的活动可以使其充满活力和多样性。
▲空间细节
©Kim Donggyu
项目图纸
▲平面图
©WARP AND WOOF
Project name: PINOCCHIO
Design: WARP AND WOOF
Location: 42, Sapyeong-daero 22-gil, Seocho-gu, Seoul, Republic of Korea
Type: Architecture
Materials: Wood, Perforated Plate, Metal, Glass, Furniture
Tags: Interior Design, Seoul, Gelato
Category: Cafe
Completion Year: 2022
Area: 35m2
Photographer: Kim Donggyu
小号
小号
客服
消息
收藏
下载
最近














